FBM says ..
Oak Tree Cottage, Summerhill – Moments from Amroth Beach Key Features: Ideal Coastal Holiday Let or Second Home Immaculately Presented & Stylishly Finished Throughout Spacious, Flexible Living Accommodation Fully Enclosed Rear Garden Prime Location Ne...
Property Oracle says ..
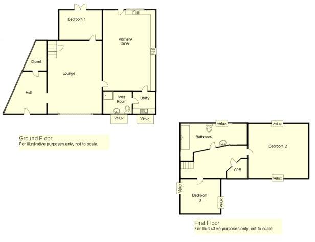
The property is a 3 bedroom, 2 bathroom bungalow located in Amroth, Pembrokeshire. It is listed at £315,000 and has 1,425 sqft of living space. The plot size is not specified. The bungalow appears to be in good condition based on the provided images. The interior is modern and well-maintained, with a recently updated kitchen and bathrooms. There is evidence of tasteful renovations throughout. The exterior also appears to be in good condition. The property benefits from a garden, which is visible in the provided images. While the exact size isnt given, it appears to be of a reasonable size for a bungalow of this type. The garden includes a shed and patio area. Amroth is a coastal village in Pembrokeshire, West Wales. The area is known for its beautiful scenery and proximity to the coast. The provided data indicates that there are several schools and train stations within a reasonable distance of the property. This suggests that the location is desirable, particularly for families. Considering the average house price in the area is £290,250 and the average price per sqft is £288, the listed price of £315,000 for this 1,425 sqft property seems reasonable. The property’s modern condition, inclusion of a garden, and desirable location in Amroth all contribute to justifying the asking price. The higher price per sqft compared to the area average is likely due to the property’s condition and features.
Therefore, we give this property 8 / 10. *Disclaimer: This is our option and does constitute a recommendation or financial advice. Do your own research. *
- Price
- 8
- Condition
- 9
- Location
- 8
- Land
- 7
- Bedrooms
- 3
- Bathrooms
- 2
- Sqft (est)
- 1,425.00
The heatmap indicates the level of crime in the area. The color of the heatmap indicates the crime severity and recency.
Metrics Year-on-Year
- Average area value
- 278,905.00 £Increased by 2.67 %
- Est sale value
- 391,875.00 £Increased by 50.27 %
- Average area rental value
- 800.00 £/moDecreased by 34.53 %
- Est letting value
- 0.00 £/mo
- Est rental Yield
- 3.44 %Decreased by 36.30 %
- Crime Rate
- 105.00 %Unchanged by 0.00 %
Agent Activity
FBM created the listing.
Nearby Schools
| Name | Type | Ofsted | Distance |
|---|---|---|---|
| Saundersfoot C.P. School | Welsh Establishment | 3.68 KM | |
| Stepaside C.P. School | Welsh Establishment | 4.00 KM | |
| Tavernspite C.P. School | Welsh Establishment | 6.54 KM | |
| St Teilos V.R.C. School | Welsh Establishment | 7.52 KM | |
| Templeton C.P. School | Welsh Establishment | 7.95 KM |
Images
Nearby Streets
| Name | Average Price | Average Sqft | Distance |
|---|---|---|---|
| Summerhill Park | £ 0 | 0 | 0.00 KM |
| Roslyn Hill | £ 0 | 0 | 0.00 KM |
| Seaview | £ 572,475 | 0 | 0.00 KM |
Nearby Transport
| Name | NLC | TLC | Distance |
|---|---|---|---|
| Kilgetty | 4083 | KGT | 4.42 KM |
| Saundersfoot | 4108 | SDF | 4.79 KM |
| Tenby | 4110 | TEN | 7.75 KM |
| Narberth | 4098 | NAR | 9.13 KM |
| Penally | 4129 | PNA | 9.93 KM |
Nearby Listings
| Address | Price | Type | Score | Distance |
|---|---|---|---|---|
| Summerhill, Amroth, SA67 | £ 315,000 | BUY | 8 / 10 | 0.00 KM |
| Summerhill, Amroth, Narberth, Pembrokeshire, SA67 | £ 430,000 | BUY | 7 / 10 | 0.08 KM |
| Summerhill, Amroth, Narberth, Pembrokeshire, SA67 | £ 410,000 | BUY | 6 / 10 | 0.08 KM |
| Morgans Way, Stepaside, Narberth, Pembrokeshire, SA67 | £ 450,000 | BUY | 7 / 10 | 0.11 KM |
| Church View, Summerhill, Narberth, SA67 | £ 475,000 | BUY | 6 / 10 | 0.30 KM |
Nearby Properties
| Address | Price | Distance |
|---|---|---|
| The Chapel | £ 75,000 | 0.08 KM |
| Silvretta | £ 179,000 | 0.08 KM |
| Glengarth | £ 219,000 | 0.08 KM |
| Drifters End | £ 390,000 | 0.08 KM |
| The Malthouse | £ 237,500 | 0.08 KM |