Southampton Drive, Kelvindale, Glasgow
RE

Southampton Drive, Kelvindale, Glasgow

By Rettie & Co

£ 289,000

Reviews

3 out of 5 stars

Rettie & Co says ..

Tucked away in an exceptionally peaceful and leafy street in the ever-popular West End district of Kelvindale, this bright and spacious three-bedroom mid-terraced villa offers comfortable family accommodation with a beautiful, elevated position and impressive open views. With homes only lining on...

Property Oracle says ..

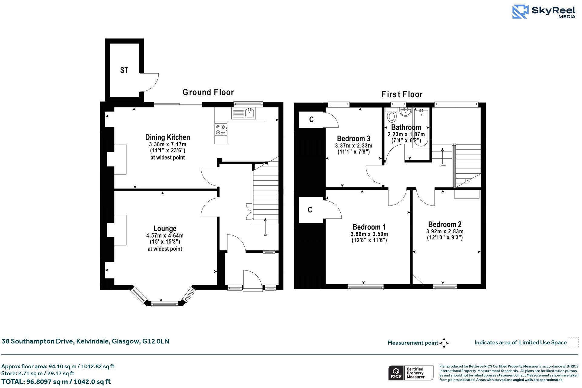
This is a terraced property in Kelvindale, Glasgow. It features three bedrooms and one bathroom. The property appears to be well-maintained, with a modern kitchen. It also benefits from a garden. The property is located in a desirable residential area, close to local amenities and transportation links. The property retains some of its original period features, such as the stained glass windows.

Therefore, we give this property 6 / 10. *Disclaimer: This is our option and does constitute a recommendation or financial advice. Do your own research. *

Price
7
Condition
7
Location
7
Land
6
Bedrooms
3
Bathrooms
1
Sqft (est)
229.59

The heatmap indicates the level of crime in the area. The color of the heatmap indicates the crime severity and recency.

Metrics Year-on-Year

Average area value
273,565.00 £
Increased by 3.79 %
from 263,578.00 £
Est sale value
64,744.38 £
Increased by 9.73 %
from 59,004.63 £
Average area rental value
1,350.00 £/mo
Decreased by 11.01 %
from 1,517.00 £/mo
Est letting value
229.59 £/mo
Unchanged by 0.00 %
from 229.59 £/mo
Est rental Yield
5.92 %
Decreased by 14.33 %
from 6.91 %
Crime Rate
0.00 %
from 0.00 %

Agent Activity

  • Rettie & Co created the listing.

Images

Picture No. 43 Picture No. 46 Picture No. 02 Picture No. 07 Picture No. 06 Picture No. 01 Picture No. 03 Picture No. 04 Picture No. 10 Picture No. 08 Picture No. 11 Picture No. 14 Picture No. 16 Picture No. 19 Picture No. 20 Picture No. 21 Picture No. 22 Picture No. 23 Picture No. 24 Picture No. 25 Picture No. 27 Picture No. 09 Picture No. 13 Picture No. 15 Picture No. 17 Picture No. 26 Picture No. 48 Picture No. 38 Picture No. 39 Picture No. 28 Picture No. 29 Picture No. 30 Picture No. 31 Picture No. 32 Picture No. 33 Picture No. 34 Picture No. 35 Picture No. 36 Picture No. 37 Picture No. 40 Picture No. 41 Picture No. 44

Nearby Streets

NameAverage PriceAverage SqftDistance
Endfield Avenue £ 000.00 KM
Highfield Place £ 000.00 KM
Leicester Avenue £ 445,00000.00 KM
Innellan Place £ 000.00 KM
Baronald Drive £ 276,25000.00 KM

Nearby Transport

NameNLCTLCDistance
Kelvindale1655KVD0.47 KM
Hyndland9845HYN1.17 KM
Anniesland9972ANL1.27 KM
Maryhill9957MYH1.41 KM
Jordanhill9995JOR1.76 KM

Nearby Listings

AddressPriceTypeScoreDistance
Southampton Drive, Kelvindale, Glasgow £ 289,000BUY6 / 100.00 KM
Nottingham Avenue, Kelvindale £ 315,000BUYUnknown0.12 KM
Northampton Drive, Glasgow, G12 £ 320,000BUY6 / 100.18 KM
Weymouth Drive, Kelvindale, G12 0ET £ 265,000BUY6 / 100.22 KM
38 Weymouth Drive, Kelvindale, G12 0LX £ 380,000BUY7 / 100.22 KM