Peter Alan says ..
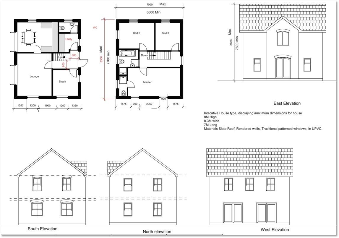
A Freehold Parcel of Land with detailed planning permission for the erection of a 3 bedroom detached house.
Property Oracle says ..
This is a plot of land on Ystrad Road in Pentre. The listing is handled by Peter Alan. The land requires significant renovation or development. The plot size is quite large. The location offers proximity to schools and transportation, but being roadside may present some drawbacks. The asking price of £60,000 appears reasonable given the land size and the work required.
Therefore, we give this property 5 / 10. *Disclaimer: This is our option and does constitute a recommendation or financial advice. Do your own research. *
- Price
- 8
- Condition
- 1
- Location
- 6
- Land
- 7
- Bedrooms
- 0
- Bathrooms
- 0
- Sqft (est)
- 101,988.06
The heatmap indicates the level of crime in the area. The color of the heatmap indicates the crime severity and recency.
Metrics Year-on-Year
- Average area value
- 242,000.00 £Decreased by 4.05 %
- Est sale value
- 23,967,194.10 £Increased by 10.85 %
- Average area rental value
- 437.00 £/moDecreased by 50.79 %
- Est letting value
- 0.00 £/mo
- Est rental Yield
- 2.17 %Decreased by 48.70 %
- Crime Rate
- 4.00 %Unchanged by 0.00 %
Agent Activity
Peter Alan created the listing.
Nearby Schools
| Name | Type | Ofsted | Distance |
|---|---|---|---|
| Ysgol G.G. Bronllwyn | Welsh Establishment | 0.55 KM | |
| Gelli Primary School | Welsh Establishment | 0.55 KM | |
| Ton Infants School | Welsh Establishment | 0.60 KM | |
| Ton Pentre Junior School | Welsh Establishment | 1.05 KM | |
| Bodringallt Primary School | Welsh Establishment | 1.68 KM |
Images
Nearby Streets
| Name | Average Price | Average Sqft | Distance |
|---|---|---|---|
| Smith Street | £ 163,450 | 0 | 0.00 KM |
| Union Street | £ 0 | 0 | 0.00 KM |
| Lon-y-Parc | £ 0 | 0 | 0.00 KM |
| Farm Road | £ 264,998 | 0 | 0.00 KM |
| Alexandra Road | £ 131,250 | 0 | 0.00 KM |
Nearby Transport
| Name | NLC | TLC | Distance |
|---|---|---|---|
| Ton Pentre | 3897 | TPN | 0.55 KM |
| Ystrad Rhondda | 3871 | YSR | 1.67 KM |
| Treorchy | 3891 | TRY | 2.96 KM |
| Llwynypia | 3852 | LLY | 3.38 KM |
| Tonypandy | 3882 | TNP | 4.66 KM |
Nearby Listings
| Address | Price | Type | Score | Distance |
|---|---|---|---|---|
| Ystrad Road, Pentre | £ 60,000 | BUY | 5 / 10 | 0.00 KM |
| Smith Street, Gelli, Pentre, Rhondda Cynon Taf, CF41 | £ 149,995 | BUY | Unknown | 0.12 KM |
| Smith Street, Gelli, Pentre | £ 84,995 | BUY | 4 / 10 | 0.12 KM |
| Church Road, Pentre, Rhondda, Cynon, Taff. CF41 7EA | £ 79,995 | BUY | 4 / 10 | 0.14 KM |
| Uplands, Pentre, CF41 | £ 259,950 | BUY | 6 / 10 | 0.17 KM |
Nearby Properties
| Address | Price | Distance |
|---|---|---|
| 80 Ystrad Road | £ 84,950 | 0.00 KM |
| 71 Ystrad Road | £ 66,000 | 0.00 KM |
| 78 Ystrad Road | £ 82,000 | 0.02 KM |
| 99 Ystrad Road | £ 95,000 | 0.02 KM |
| 91 Ystrad Road | £ 80,000 | 0.02 KM |