Lady Bailey Residential Park, Winterborne Whitechurch, Blandford Forum, Dorset, DT11
By Vivien Horder
£ 142,500
Reviews
3 out of 5 stars
Vivien Horder says ..
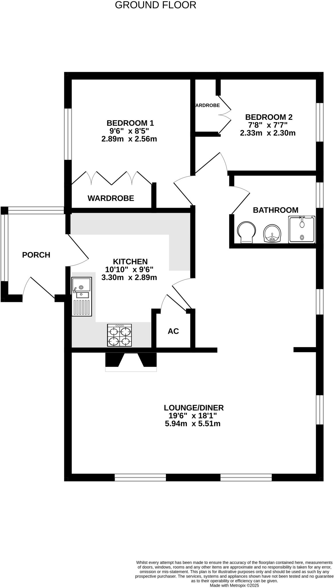
Nestled on a popular site on the outskirts of Winterborne Whitechurch, this well-presented two-bedroom park home offers comfortable living with attractive views to the front. Originally built in 2004 by Wessex, the property has recently been upgraded with external insulation
Property Oracle says ..
This detached property is located in Lady Bailey Residential Park in Winterborne Whitechurch, Dorset. It features two bedrooms and one bathroom. The interior appears to be well-maintained and modern. The property includes a small, private garden. The location is rural, offering a quiet environment, but may require travel for amenities. The price seems competitive for the area, making it a potentially good value for those seeking a peaceful residential park setting. Dunbury Church Of England Academy is located within walking distance.
Therefore, we give this property 6 / 10. *Disclaimer: This is our option and does constitute a recommendation or financial advice. Do your own research. *
- Price
- 7
- Condition
- 8
- Location
- 6
- Land
- 5
- Bedrooms
- 2
- Bathrooms
- 1
The heatmap indicates the level of crime in the area. The color of the heatmap indicates the crime severity and recency.
Metrics Year-on-Year
- Average area value
- 400,000.00 £Decreased by 14.31 %
- Average area rental value
- 1,515.00 £/moDecreased by 21.30 %
- Est rental Yield
- 4.55 %Decreased by 8.08 %
- Crime Rate
- 329.00 %Unchanged by 0.00 %
Agent Activity
Vivien Horder created the listing.
Nearby Schools
| Name | Type | Ofsted | Distance |
|---|---|---|---|
| Dunbury Church Of England Academy | Academy Sponsor Led | Good | 0.55 KM |
| Bere Regis Primary And Preschool | Academy Sponsor Led | 5.47 KM | |
| Milborne St Andrew First School | Academy Converter | Good | 5.57 KM |
| Milton Abbey School | Other Independent School | 5.97 KM | |
| Knighton House School | Other Independent School | 9.20 KM |
Images
Nearby Streets
| Name | Average Price | Average Sqft | Distance |
|---|---|---|---|
| St Mary's Close | £ 0 | 0 | 0.00 KM |
| Dolway Lane | £ 0 | 0 | 0.00 KM |
| Field's Close | £ 325,000 | 0 | 0.00 KM |
| Rook Lane | £ 0 | 0 | 0.00 KM |
| Rose Cottages | £ 400,000 | 0 | 0.00 KM |
Nearby Listings
| Address | Price | Type | Score | Distance |
|---|---|---|---|---|
| Lady Bailey Residential Park, Winterborne Whitechurch, Blandford Forum, Dorset, DT11 | £ 142,500 | BUY | 6 / 10 | 0.00 KM |
| Winterborne Whitechurch, Blandford Forum, Dorset, DT11 | £ 125,000 | BUY | 5 / 10 | 0.00 KM |
| Winterborne Whitechurch, Blandford Forum, Dorset, DT11 | £ 140,000 | BUY | Unknown | 0.00 KM |
| Winterborne Whitechurch, Blandford Forum, Dorset, DT11 | £ 97,500 | BUY | 5 / 10 | 0.00 KM |
| Lady Bailey Park, Winterborne Whitechurch | £ 120,000 | BUY | 6 / 10 | 0.00 KM |
Nearby Properties
| Address | Price | Distance |
|---|---|---|
| 12 St Marys Close | £ 318,000 | 0.28 KM |
| 13 St Marys Close | £ 244,000 | 0.28 KM |
| 16 St Marys Close | £ 305,000 | 0.28 KM |
| 9 St Marys Close | £ 463,250 | 0.28 KM |
| 2 St Marys Close | £ 269,000 | 0.28 KM |