Luscombe Maye says ..
A brand new two-bedroom detached home with off street parking for two cars, a southerly facing rear garden, lovely countryside views and walk into town . Up to £20,000 Stamp Duty Incentive.
Property Oracle says ..
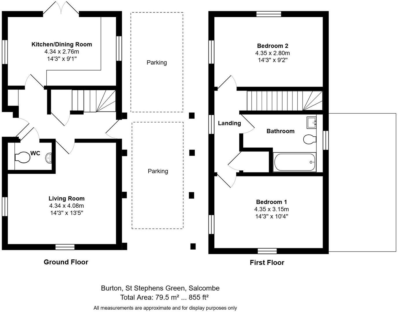
This is a modern, detached property located in the desirable coastal town of Salcombe. The property is in excellent condition and has a garden. The price is slightly above average for the area, but this is justified by the property’s condition and location. The property is located close to local amenities and schools. The nearby school, Salcombe Church Of England Primary School, has a ‘Good’ Ofsted rating. The property is approximately 855.73 sqft with 2 bedrooms and 1 bathroom. The listing agent is Luscombe Maye.
Therefore, we give this property 7 / 10. *Disclaimer: This is our option and does constitute a recommendation or financial advice. Do your own research. *
- Price
- 7
- Condition
- 9
- Location
- 7
- Land
- 6
- Bedrooms
- 2
- Bathrooms
- 1
- Sqft (est)
- 855.73
The heatmap indicates the level of crime in the area. The color of the heatmap indicates the crime severity and recency.
Metrics Year-on-Year
- Average area value
- 504,375.00 £Decreased by 47.90 %
- Est sale value
- 468,940.04 £Decreased by 36.35 %
- Average area rental value
- 1,350.00 £/moDecreased by 5.40 %
- Est letting value
- 855.73 £/moUnchanged by 0.00 %
- Est rental Yield
- 3.21 %Increased by 81.36 %
- Crime Rate
- 34.00 %Unchanged by 0.00 %
Agent Activity
Luscombe Maye created the listing.
Nearby Schools
| Name | Type | Ofsted | Distance |
|---|---|---|---|
| Salcombe Church Of England Primary School | Academy Converter | Good | 0.20 KM |
| Malborough With South Huish Church Of England Primary School | Voluntary Controlled School | Good | 3.88 KM |
| Kingsbridge Academy | Academy Converter | 4.73 KM | |
| Charleton Church Of England Academy | Academy Converter | Good | 4.88 KM |
| West Alvington Church Of England Academy | Academy Converter | Good | 4.95 KM |
Images
Nearby Streets
| Name | Average Price | Average Sqft | Distance |
|---|---|---|---|
| Orchard Drive | £ 0 | 0 | 0.00 KM |
| St Dunstan's Road | £ 0 | 0 | 0.00 KM |
| Grenville Road | £ 1,250,000 | 0 | 0.00 KM |
| Buckley | £ 0 | 0 | 0.00 KM |
| Malt Cottages | £ 0 | 0 | 0.00 KM |
Nearby Listings
| Address | Price | Type | Score | Distance |
|---|---|---|---|---|
| Salcombe | £ 535,000 | BUY | 7 / 10 | 0.00 KM |
| Salcombe | £ 625,000 | BUY | 7 / 10 | 0.03 KM |
| Little Hill, Salcombe | £ 595,000 | BUY | 7 / 10 | 0.07 KM |
| Beadon Road, Salcombe | £ 695,000 | BUY | 7 / 10 | 0.12 KM |
| Onslow Road, Salcombe | £ 375,000 | BUY | 7 / 10 | 0.16 KM |
Nearby Properties
| Address | Price | Distance |
|---|---|---|
| 6 Little Hill | £ 242,000 | 0.09 KM |
| 9 Little Hill | £ 630,000 | 0.09 KM |
| 10a Little Hill | £ 535,000 | 0.09 KM |
| 7 Little Hill | £ 330,000 | 0.10 KM |
| 5 Little Hill | £ 385,000 | 0.10 KM |