Westfields Avenue, 'Little Chelsea' Barnes
By Sceon + Berne
£ 1,650,000
Reviews
4 out of 5 stars
Sceon + Berne says ..
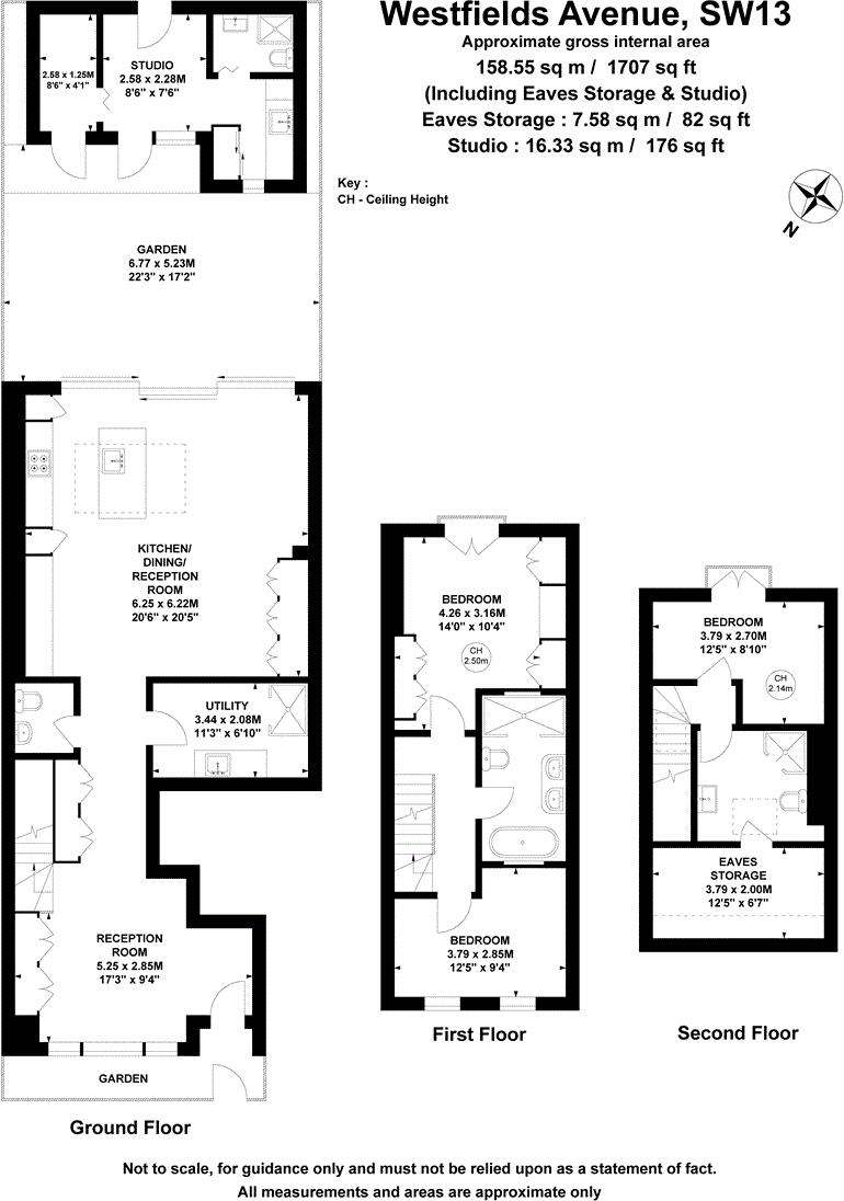
Nestled in the heart of Little Chelsea, Barnes, SW13, this Westfield Avenue house is a truly sensational 3-4 bedroom period home that has undergone a meticulous transformation, blending contemporary luxury with timeless charm.
Property Oracle says ..
This is a well-presented terraced house in the desirable location of Barnes, London. The property has been recently renovated to a high standard and features a modern kitchen and bathrooms. The property also benefits from a garden with a separate outbuilding. The location is ideal for families, with excellent schools and transport links nearby. The price is higher than average for the area, but reflects the quality and location of the property.
Therefore, we give this property 8 / 10. *Disclaimer: This is our option and does constitute a recommendation or financial advice. Do your own research. *
- Price
- 7
- Condition
- 9
- Location
- 9
- Land
- 7
- Bedrooms
- 4
- Bathrooms
- 3
The heatmap indicates the level of crime in the area. The color of the heatmap indicates the crime severity and recency.
Metrics Year-on-Year
- Average area value
- 754,167.00 £Decreased by 18.85 %
- Average area rental value
- 3,542.00 £/moIncreased by 18.22 %
- Est rental Yield
- 5.64 %Increased by 45.74 %
- Crime Rate
- 7.00 %Unchanged by 0.00 %
Agent Activity
Sceon + Berne created the listing.
Nearby Schools
| Name | Type | Ofsted | Distance |
|---|---|---|---|
| Barnes Primary School | Community School | Outstanding | 0.09 KM |
| Paddock School | Community Special School | Outstanding | 0.66 KM |
| East Sheen Primary School | Community School | Outstanding | 0.70 KM |
| Roehampton Hospital School | Other Independent School | 0.77 KM | |
| Roehampton Gate School | Other Independent Special School | Good | 0.77 KM |
Images
Nearby Streets
| Name | Average Price | Average Sqft | Distance |
|---|---|---|---|
| St John's Grove | £ 0 | 0 | 0.00 KM |
| Brook Gardens | £ 0 | 0 | 0.00 KM |
| Buxton Road | £ 0 | 0 | 0.00 KM |
| Dukes Meadows Footbridge | £ 0 | 0 | 0.00 KM |
| Small Profits Dock | £ 0 | 0 | 0.00 KM |
Nearby Transport
| Name | NLC | TLC | Distance |
|---|---|---|---|
| Barnes Bridge | 5580 | BNI | 0.33 KM |
| Barnes | 5551 | BNS | 1.03 KM |
| Mortlake | 5600 | MTL | 1.77 KM |
| Chiswick | 5583 | CHK | 2.26 KM |
| Gunnersbury | 5588 | GUN | 3.64 KM |
Nearby Listings
| Address | Price | Type | Score | Distance |
|---|---|---|---|---|
| Westfields Avenue, 'Little Chelsea' Barnes | £ 1,650,000 | BUY | 8 / 10 | 0.00 KM |
| Westfields Avenue, SW13 | £ 1,400,000 | BUY | 7 / 10 | 0.00 KM |
| Westfields Avenue, 'Little Chelsea' SW13 | £ 1,895,000 | BUY | 7 / 10 | 0.03 KM |
| Westfields Avenue, Barnes, SW13 | £ 1,835,000 | BUY | 7 / 10 | 0.05 KM |
| Archway Street, Barnes, SW13 | £ 1,450,000 | BUY | 7 / 10 | 0.06 KM |
Nearby Properties
| Address | Price | Distance |
|---|---|---|
| 84 Westfields Avenue | £ 920,000 | 0.00 KM |
| 92 Westfields Avenue | £ 1,165,500 | 0.00 KM |
| 108 Westfields Avenue | £ 491,000 | 0.00 KM |
| 78 Westfields Avenue | £ 775,000 | 0.00 KM |
| 102 Westfields Avenue | £ 1,352,000 | 0.00 KM |