South Road, Ash Vale, GU12
Gascoigne-Pees logo

South Road, Ash Vale, GU12

By Gascoigne-Pees

£ 190,000

Reviews

3 out of 5 stars

Gascoigne-Pees says ..

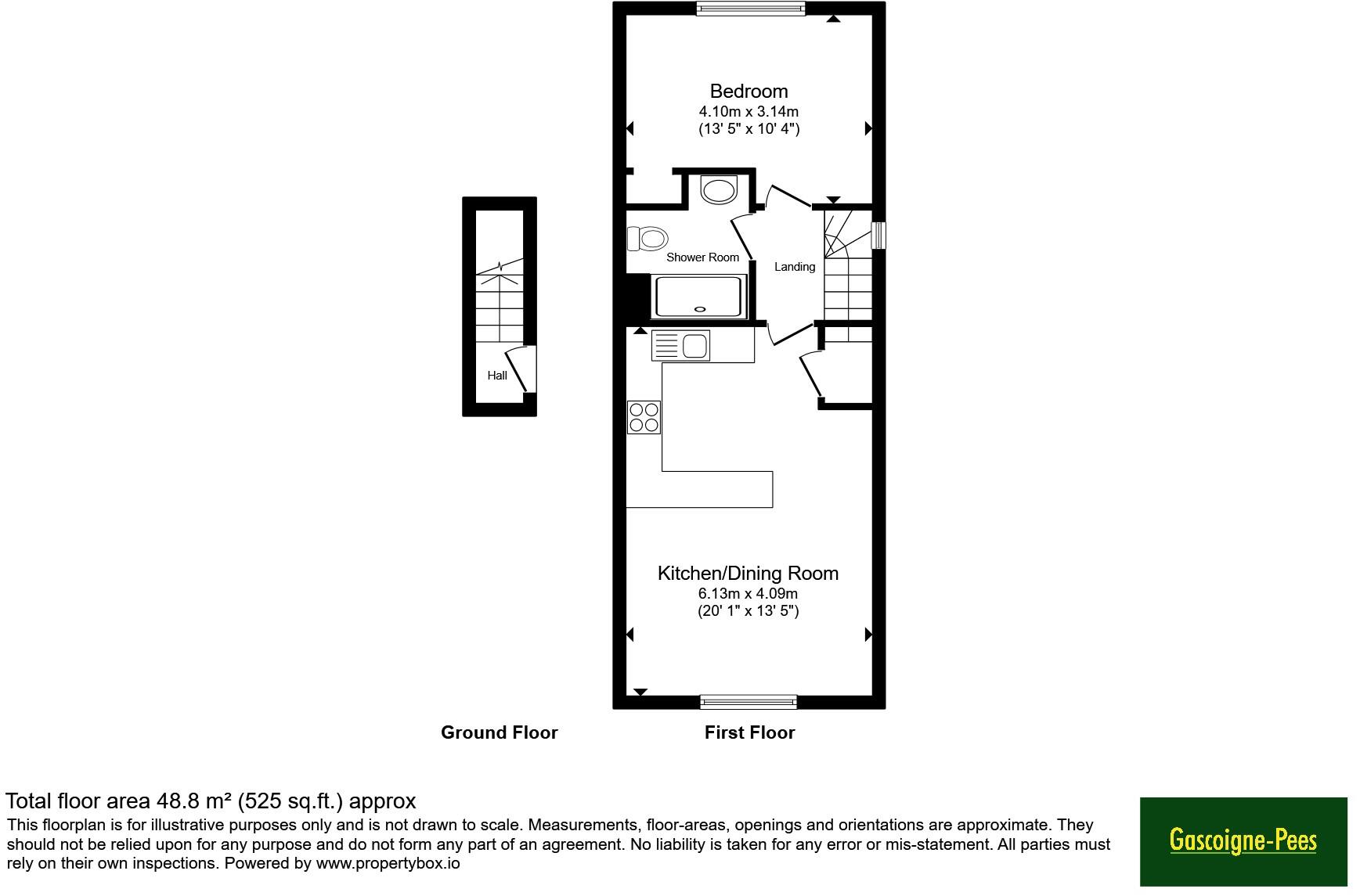
An ideal one bedroom 1st floor maisonette with communal garden and allocated parking for one vehicle. Situated on a popular residential development the property sits within reach of larger neighbouring towns of Farnborough, Aldershot and Farnham, with access to Guildford within a 20 mi...

Property Oracle says ..

This is a one-bedroom maisonette in Ash Vale, Surrey. The property is in reasonable condition and benefits from a garden. It is located near schools and transportation links. The property is competitively priced for the area. The maisonette offers a blend of modern living with proximity to essential amenities and transport links, making it an attractive option for first-time buyers or investors. While the property is in good order, there’s room for personalization to enhance its appeal further. The presence of a garden adds significant value, providing outdoor space often lacking in similar properties.

Therefore, we give this property 7 / 10. *Disclaimer: This is our option and does constitute a recommendation or financial advice. Do your own research. *

Price
8
Condition
7
Location
6
Land
7
Bedrooms
1
Bathrooms
1
Sqft (est)
525.28

The heatmap indicates the level of crime in the area. The color of the heatmap indicates the crime severity and recency.

Metrics Year-on-Year

Average area value
325,000.00 £
Increased by 41.85 %
from 229,118.00 £
Est sale value
157,058.72 £
Increased by 32.30 %
from 118,713.28 £
Average area rental value
473.00 £/mo
Decreased by 55.08 %
from 1,053.00 £/mo
Est letting value
0.00 £/mo
Decreased by 100.00 %
from 525.28 £/mo
Est rental Yield
1.75 %
Decreased by 68.30 %
from 5.52 %
Crime Rate
13.00 %
Unchanged by 0.00 %
from 13.00 %

Agent Activity

  • Gascoigne-Pees created the listing.

Nearby Schools

NameTypeOfstedDistance
Shawfield Primary SchoolCommunity SchoolGood0.56 KM
Ash Grange Nursery And Primary SchoolCommunity SchoolGood1.42 KM
Ash Grange Sure Start Children'S CentreChildren's Centre1.60 KM
Walsh Cofe Junior SchoolVoluntary Controlled SchoolRequires improvement1.61 KM
Walsh Memorial Cofe Controlled Infant SchoolVoluntary Controlled SchoolOutstanding1.61 KM

Images

Picture No. 17 Picture No. 20 Picture No. 18 Picture No. 08 Picture No. 06 Picture No. 02 Picture No. 13 Picture No. 09 Picture No. 01 Picture No. 07 Picture No. 03 Picture No. 16 Picture No. 19 Picture No. 10 Picture No. 11 Picture No. 15 Picture No. 04 Picture No. 14 Picture No. 05 Picture No. 12

Nearby Streets

NameAverage PriceAverage SqftDistance
Stirling Close £ 475,00000.00 KM
Balmoral Road £ 800,00000.00 KM
Heather Close £ 550,00000.00 KM
Lea Way £ 350,00000.00 KM
Newfield Road £ 000.00 KM

Nearby Transport

NameNLCTLCDistance
Ash Vale5547AHV1.50 KM
Ash5641ASH1.73 KM
North Camp5636NCM1.97 KM
Aldershot5623AHT4.10 KM
Farnborough North5688FNN5.16 KM

Nearby Listings

AddressPriceTypeScoreDistance
South Road, Ash Vale, GU12 £ 190,000BUY7 / 100.00 KM
South Road, Ash Vale, Aldershot, Surrey, GU12 £ 200,000BUY7 / 100.01 KM
South Road, Ash Vale, Surrey, GU12 £ 190,000BUY7 / 100.06 KM
South Road, Ash Vale, Guildford, Surrey, GU12 £ 375,000BUY7 / 100.13 KM
Derwent Avenue, Ash Vale, Guildford, Surrey, GU12 £ 350,000BUY6 / 100.13 KM

Nearby Properties

AddressPriceDistance
Levarn £ 245,0000.04 KM
Primrose Cottage £ 75,9500.04 KM
Homefield Lodge £ 483,0000.04 KM
21 Oaklea £ 213,5000.17 KM
15 Oaklea £ 380,0000.17 KM