Leg of Mutton Road, Glastonbury, BA6
By Cooper & Tanner
£ 130,000
Reviews
2 out of 5 stars
Cooper & Tanner says ..
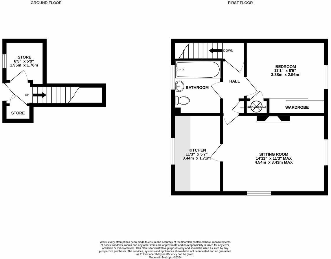
This purpose built first floor flat enjoys an elevated position with outside space, and offers plenty of scope for improvement.
Property Oracle says ..
This one-bedroom, one-bathroom flat located on Leg of Mutton Road in Glastonbury, Somerset, is listed at £130,000. The property shows its age with dated decor and fittings. The images reveal a living area, bedroom, and bathroom, all in need of some degree of modernisation or refurbishment. The kitchen, while functional, also displays a dated design. The flat benefits from a small garden area, providing some outside space. The location is advantageous, with proximity to several well-regarded schools, which would be highly appealing to families. However, information regarding nearby transportation links is absent from the provided data. The price point, considering the condition and market trends in nearby streets such as Breynton Road and Buckton Close (though sqft data is unavailable for comparison), appears reasonably priced, though not necessarily an exceptional bargain, given the required upgrades. More precise data on the square footage of nearby comparable properties would enable a more accurate valuation. Potential buyers should factor in renovation costs when considering this property.
Therefore, we give this property 5 / 10. *Disclaimer: This is our option and does constitute a recommendation or financial advice. Do your own research. *
- Price
- 7
- Condition
- 5
- Location
- 7
- Land
- 3
- Bedrooms
- 1
- Bathrooms
- 1
- Sqft (est)
- 847.87
The heatmap indicates the level of crime in the area. The color of the heatmap indicates the crime severity and recency.
Metrics Year-on-Year
- Crime Rate
- 7.00 %Unchanged by 0.00 %
Agent Activity
Cooper & Tanner marked this listing as sold.
Cooper & Tanner created the listing.
Nearby Schools
| Name | Type | Ofsted | Distance |
|---|---|---|---|
| St Dunstan'S School | Academy Converter | Good | 0.74 KM |
| St John'S Church Of England Voluntary Controlled Infants School | Voluntary Controlled School | Good | 0.95 KM |
| Mendip West | Children's Centre | 1.25 KM | |
| St Benedict'S Church Of England Voluntary Aided Junior School | Voluntary Aided School | Good | 1.32 KM |
| Tor School | Pupil Referral Unit | Good | 2.58 KM |
Images
Nearby Streets
| Name | Average Price | Average Sqft | Distance |
|---|---|---|---|
| Cox's Close | £ 0 | 0 | 0.00 KM |
| Saint Dunstans Close | £ 0 | 0 | 0.00 KM |
| Breynton Road | £ 251,250 | 0 | 0.00 KM |
| Launder Close | £ 0 | 0 | 0.00 KM |
| Saint Edmund's Road | £ 0 | 0 | 0.00 KM |
Nearby Listings
| Address | Price | Type | Score | Distance |
|---|---|---|---|---|
| Leg of Mutton Road, Glastonbury, BA6 | £ 130,000 | BUY | 5 / 10 | 0.00 KM |
| Leg of Mutton Road, Glastonbury, BA6 | £ 260,000 | BUY | 7 / 10 | 0.05 KM |
| Leg of Mutton Road, Glastonbury | £ 240,000 | BUY | 5 / 10 | 0.06 KM |
| 5 Fielding Path, Glastonbury, Somerset, BA6 | £ 120,000 | BUY | 5 / 10 | 0.12 KM |
| Gunwyn Close, Glastonbury, BA6 | £ 330,000 | BUY | 6 / 10 | 0.13 KM |
Nearby Properties
| Address | Price | Distance |
|---|---|---|
| 39 Leg Of Mutton Road | £ 220,000 | 0.05 KM |
| 13 Leg Of Mutton Road | £ 92,000 | 0.05 KM |
| 18 Folliott Road | £ 235,000 | 0.06 KM |
| 11 Folliott Road | £ 128,000 | 0.06 KM |
| 3 Folliott Road | £ 188,000 | 0.06 KM |