Burlington Lane London
By Andrew Nunn & Associates
£ 1,095,000
Reviews
3 out of 5 stars
Andrew Nunn & Associates says ..
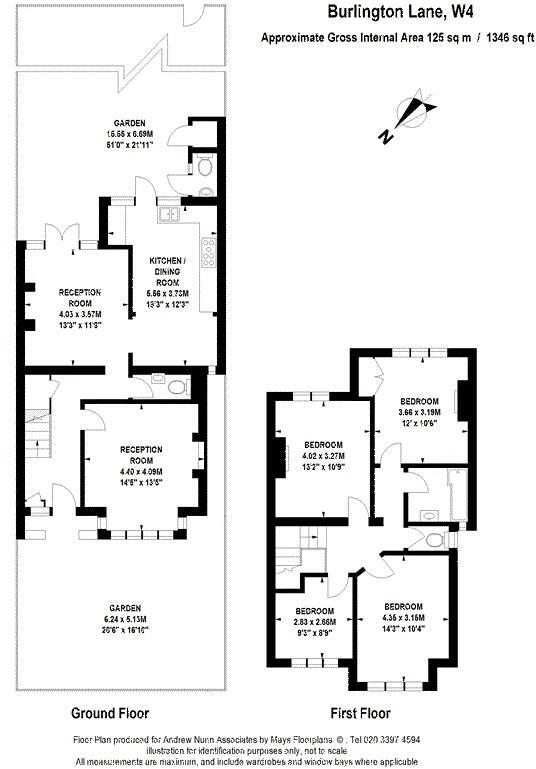
A wide four bedroom Edwardian semi detached family home offering well balanced accommodation over two floors whilst having tremendous potential to extend both at the rear on the ground floor and also into the loft (subject to permissions).Offering period detail the accommodation comprises; spacio...
Property Oracle says ..
The property is located in Chiswick Homefields, Hounslow, a desirable area in West London. The area benefits from excellent transport links, with several train stations and the London Underground within a reasonable distance. There are also a number of highly-rated schools nearby, making it an attractive location for families. The property itself is a semi-detached house with four bedrooms and one bathroom. Based on the images provided, the property appears to have been recently renovated to a good standard. The kitchen and bathrooms look modern and well-maintained. The property also benefits from a garden, although it appears to be relatively small. The list price of £1,095,000 is slightly below the average price for the area (£1,347,876), and the price per square foot (£1,005) is also lower than the average. Considering the property’s location, condition, and the inclusion of a garden, the list price appears to be reasonable, potentially representing good value for money. However, it is important to note that the plot size is very small.
Therefore, we give this property 7 / 10. *Disclaimer: This is our option and does constitute a recommendation or financial advice. Do your own research. *
- Price
- 8
- Condition
- 9
- Location
- 9
- Land
- 4
- Bedrooms
- 4
- Bathrooms
- 1
- Sqft (est)
- 1,345.49
The heatmap indicates the level of crime in the area. The color of the heatmap indicates the crime severity and recency.
Metrics Year-on-Year
- Average area value
- 953,000.00 £Decreased by 11.81 %
- Est sale value
- 902,823.79 £Decreased by 19.45 %
- Average area rental value
- 1,783.00 £/moDecreased by 30.51 %
- Est letting value
- 1,345.49 £/moUnchanged by 0.00 %
- Est rental Yield
- 2.25 %Decreased by 21.05 %
- Crime Rate
- 4.00 %Unchanged by 0.00 %
Agent Activity
Andrew Nunn & Associates created the listing.
Nearby Schools
| Name | Type | Ofsted | Distance |
|---|---|---|---|
| Cavendish Primary School | Community School | Good | 0.21 KM |
| Chiswick School | Academy Converter | Good | 0.41 KM |
| Chiswick Children'S Centre | Children's Centre Linked Site | 0.56 KM | |
| St Mary'S Catholic Primary School ,Chiswick | Voluntary Aided School | Good | 0.57 KM |
| The William Hogarth Primary School | Community School | Good | 0.59 KM |
Images
Nearby Streets
| Name | Average Price | Average Sqft | Distance |
|---|---|---|---|
| The Axis | £ 0 | 0 | 0.00 KM |
| Wood Street | £ 0 | 0 | 0.00 KM |
| Barrowgate Road | £ 2,106,667 | 0 | 0.00 KM |
| Dan Mason Drive | £ 0 | 0 | 0.00 KM |
| Barnes Passage | £ 0 | 0 | 0.00 KM |
Nearby Transport
| Name | NLC | TLC | Distance |
|---|---|---|---|
| Chiswick | 5583 | CHK | 1.29 KM |
| Barnes Bridge | 5580 | BNI | 1.29 KM |
| Mortlake | 5600 | MTL | 2.05 KM |
| Gunnersbury | 5588 | GUN | 2.31 KM |
| Barnes | 5551 | BNS | 2.37 KM |
Nearby Listings
| Address | Price | Type | Score | Distance |
|---|---|---|---|---|
| Burlington Lane London | £ 1,095,000 | BUY | 7 / 10 | 0.00 KM |
| Grantham Road, Chiswick, London, W4 | £ 850,000 | BUY | Unknown | 0.07 KM |
| Grantham Road, Chiswick | £ 1,200,000 | BUY | 7 / 10 | 0.12 KM |
| Grantham Road, Chiswick, London | £ 1,350,000 | BUY | 8 / 10 | 0.16 KM |
| Grantham Road, Chiswick, London | £ 1,100,000 | BUY | Unknown | 0.17 KM |
Nearby Properties
| Address | Price | Distance |
|---|---|---|
| 45 Grantham Road | £ 675,000 | 0.05 KM |
| 77 Grantham Road | £ 1,150,000 | 0.05 KM |
| 73 Grantham Road | £ 439,500 | 0.05 KM |
| 37 Grantham Road | £ 1,200,000 | 0.05 KM |
| 19a Grantham Road | £ 229,999 | 0.05 KM |