Braxton says ..
SHOW HOME LAUNCH 17 MAY, VIEWING BY APPOINTMENT ONLY - CALL TO REGISTER YOUR INTEREST - The Old Stables, in Littlewick Green, is an exclusive gated collection of four beautiful 5 and 6 bedroom homes with picturesque views of the surrounding countryside. Each is of unique design, crafted to the hi...
Property Oracle says ..
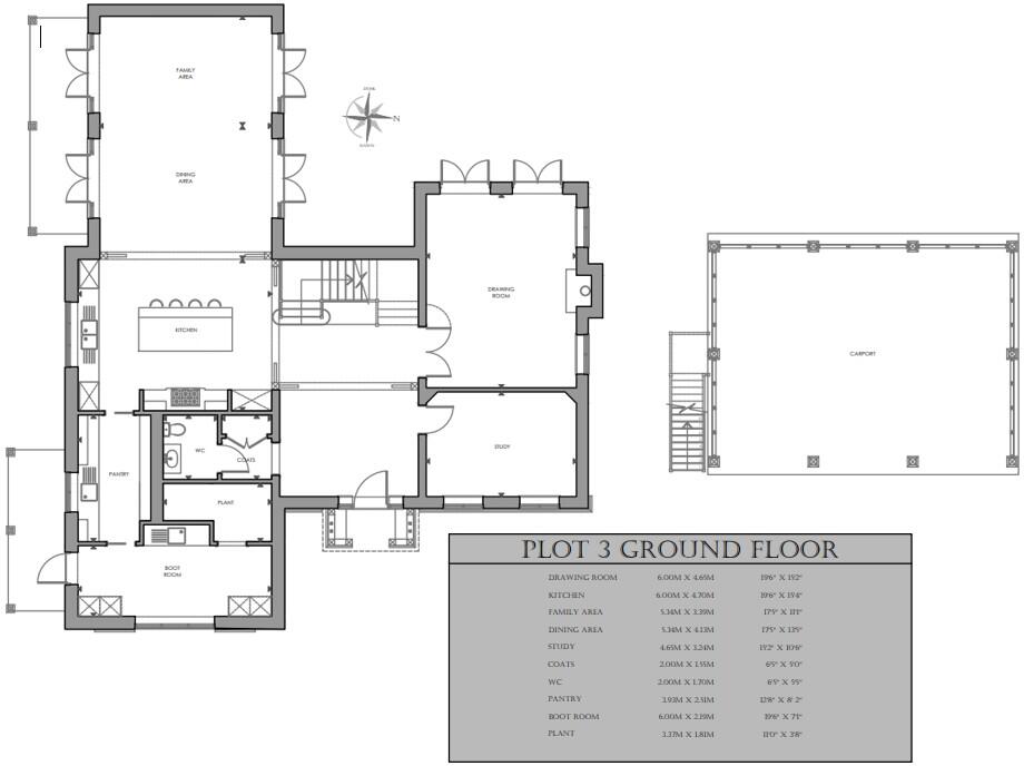
This property is a detached house located in Cherry Garden Lane, Maidenhead, Berkshire. The house is presented in excellent condition and boasts a modern, yet traditional design. The interior is well-maintained and finished to a high standard, with a spacious kitchen and living area. The property includes a substantial garden and what appears to be a detached garage. The location is desirable, close to several highly-rated schools and within reasonable proximity to Maidenhead train station. Given the average house price in the area and the size and quality of this property, the asking price appears to be in line with, or potentially slightly above, market value for similar properties in the area. However, the lack of plot size data in square feet makes a definitive statement on value difficult. The property benefits from being in a quiet, residential area, yet is still conveniently located near transport links and amenities.
Therefore, we give this property 8 / 10. *Disclaimer: This is our option and does constitute a recommendation or financial advice. Do your own research. *
- Price
- 7
- Condition
- 10
- Location
- 9
- Land
- 8
- Bedrooms
- 5
- Bathrooms
- 4
- Sqft (est)
- 1,472.93
The heatmap indicates the level of crime in the area. The color of the heatmap indicates the crime severity and recency.
Metrics Year-on-Year
- Average area value
- 208,333.00 £Decreased by 17.92 %
- Est sale value
- 565,605.12 £Increased by 51.78 %
- Average area rental value
- 806.00 £/moDecreased by 15.34 %
- Est letting value
- 1,472.93 £/mo
- Est rental Yield
- 4.64 %Increased by 3.11 %
- Crime Rate
- 28.00 %Unchanged by 0.00 %
Agent Activity
Braxton created the listing.
Nearby Schools
| Name | Type | Ofsted | Distance |
|---|---|---|---|
| Beech Lodge School | Other Independent Special School | 0.99 KM | |
| Manor Green School | Community Special School | Good | 1.69 KM |
| Newlands Girls' School | Academy Converter | Outstanding | 2.07 KM |
| Cox Green School | Academy Converter | Good | 2.12 KM |
| Woodlands Park Village Children'S Centre | Children's Centre | 2.23 KM |
Images
Nearby Streets
| Name | Average Price | Average Sqft | Distance |
|---|---|---|---|
| The Shires | £ 0 | 0 | 0.00 KM |
| Grange Walk | £ 900,000 | 0 | 0.00 KM |
| The Frantons | £ 0 | 0 | 0.00 KM |
| Silver Close | £ 0 | 0 | 0.00 KM |
| Elizabeth Hawkes Way | £ 0 | 0 | 0.00 KM |
Nearby Transport
| Name | NLC | TLC | Distance |
|---|---|---|---|
| Furze Platt | 3144 | FZP | 5.53 KM |
| Maidenhead | 3147 | MAI | 5.80 KM |
| Marlow | 3021 | MLW | 6.35 KM |
| Cookham | 3019 | COO | 7.55 KM |
| Bourne End | 3018 | BNE | 9.96 KM |
Nearby Listings
| Address | Price | Type | Score | Distance |
|---|---|---|---|---|
| Cherry Garden Lane, Maidenhead | £ 3,375,000 | BUY | 8 / 10 | 0.00 KM |
| Cherry Garden Lane, Maidenhead | £ 4,750,000 | BUY | Unknown | 0.00 KM |
| Cherry Garden Lane, Maidenhead | £ 3,650,000 | BUY | 7 / 10 | 0.00 KM |
| Mawson Avenue, Littlewick Green, Maidenhead, Berkshire, SL6 | £ 1,150,000 | BUY | Unknown | 0.30 KM |
| Littlewick Green, Maidenhead | £ 5,750,000 | BUY | 7 / 10 | 0.30 KM |
Nearby Properties
| Address | Price | Distance |
|---|---|---|
| Deep Well Cottage | £ 467,500 | 0.09 KM |
| Lavender Cottage | £ 534,950 | 0.09 KM |
| Heathside Cottage | £ 1,165,000 | 0.09 KM |
| Wheelwright Cottage | £ 980,000 | 0.20 KM |
| 15 Grange Walk | £ 1,304,000 | 0.55 KM |