Downs Hill Road, Epsom, KT18
By Cairds The Estate Agents
£ 345,000
Reviews
3 out of 5 stars
Cairds The Estate Agents says ..
Impressive 2-bed apartment in sought-after development near Epsom town centre. Features spacious rooms, garage, and convenient location with easy access to shops, transport, and schools. Don't miss out, book your viewing today!
Property Oracle says ..
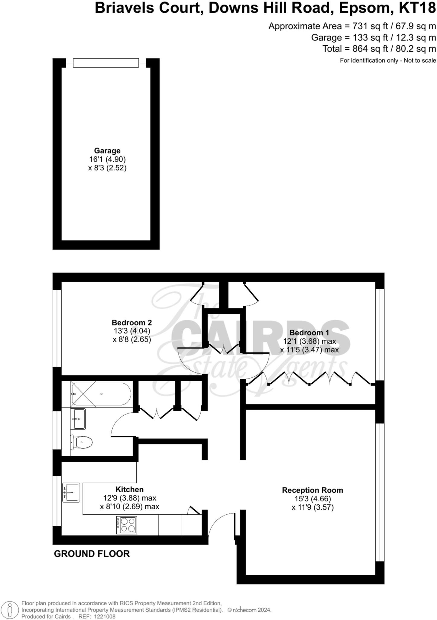
This 2-bedroom, 1-bathroom apartment in Epsom, Surrey, is presented in generally good condition. The photos show a recently updated bathroom, a modern kitchen, and well-maintained living spaces. The property benefits from access to communal gardens and is located conveniently close to Epsom town centre and its mainline railway station. While lacking a private garden, the communal area provides some outdoor space. The proximity to Epsom Downs and several highly-rated schools makes this a potentially appealing location for families and commuters. The list price falls within the range of similar properties in the vicinity, making it a potentially competitive offering in the local market. Further investigation into the specifics of the leasehold (if applicable) and any associated service charges would be recommended to provide a more comprehensive evaluation.
Therefore, we give this property 6 / 10. *Disclaimer: This is our option and does constitute a recommendation or financial advice. Do your own research. *
- Price
- 7
- Condition
- 7
- Location
- 7
- Land
- 4
- Bedrooms
- 2
- Bathrooms
- 1
- Sqft (est)
- 864.00
The heatmap indicates the level of crime in the area. The color of the heatmap indicates the crime severity and recency.
Metrics Year-on-Year
- Average area value
- 366,367.00 £Decreased by 13.34 %
- Est sale value
- 296,352.00 £Increased by 0.29 %
- Average area rental value
- 1,298.00 £/moIncreased by 6.13 %
- Est letting value
- 864.00 £/mo
- Est rental Yield
- 4.25 %Increased by 22.48 %
- Crime Rate
- 0.00 %
Agent Activity
Cairds The Estate Agents created the listing.
Nearby Schools
| Name | Type | Ofsted | Distance |
|---|---|---|---|
| St Martin'S Sure Start Children'S Centre | Children's Centre | 0.24 KM | |
| St Christopher'S School Trust (Epsom) Ltd | Other Independent School | 0.34 KM | |
| St Joseph'S Catholic Primary School | Voluntary Aided School | Outstanding | 1.42 KM |
| Little Downsend Epsom | Other Independent School | 1.55 KM | |
| Rosebery School | Academy Converter | Outstanding | 1.67 KM |
Images
Nearby Streets
| Name | Average Price | Average Sqft | Distance |
|---|---|---|---|
| St. Martin's Avenue | £ 591,667 | 0 | 0.00 KM |
| Woodcote Grove | £ 303,833 | 0 | 0.00 KM |
| Ladbroke Road | £ 425,000 | 0 | 0.00 KM |
| Heathcote Road | £ 0 | 0 | 0.00 KM |
| Talbot Row | £ 675,000 | 0 | 0.00 KM |
Nearby Transport
| Name | NLC | TLC | Distance |
|---|---|---|---|
| Epsom | 5360 | EPS | 1.12 KM |
| Epsom Downs | 5361 | EPD | 2.67 KM |
| Ewell West | 5586 | EWW | 2.75 KM |
| Tattenham Corner | 5387 | TAT | 2.93 KM |
| Ewell East | 5415 | EWE | 3.19 KM |
Nearby Listings
| Address | Price | Type | Score | Distance |
|---|---|---|---|---|
| Downs Hill Road, Epsom, KT18 | £ 345,000 | BUY | 6 / 10 | 0.00 KM |
| Downs Hill Road, Epsom | £ 335,000 | BUY | 6 / 10 | 0.00 KM |
| Downs Hill Road, Epsom, KT18 | £ 350,000 | BUY | 7 / 10 | 0.04 KM |
| Downs Hill Road, Epsom, KT18 | £ 350,000 | BUY | Unknown | 0.04 KM |
| Downs Hill Road, Epsom, KT18 | £ 350,000 | BUY | 6 / 10 | 0.04 KM |
Nearby Properties
| Address | Price | Distance |
|---|---|---|
| 9 Downs Hill Road | £ 497,000 | 0.13 KM |
| 11 Downs Hill Road | £ 190,000 | 0.13 KM |
| 28 Downs Hill Road | £ 482,000 | 0.13 KM |
| 30 Downs Hill Road | £ 249,000 | 0.13 KM |
| 1a Downs Hill Road | £ 410,000 | 0.13 KM |