Plot 4 Land At Wakefield Road, Copley
By Property @ Kemp and Co
£ 150,000
Reviews
2 out of 5 stars
Property @ Kemp and Co says ..
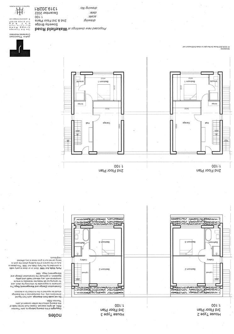
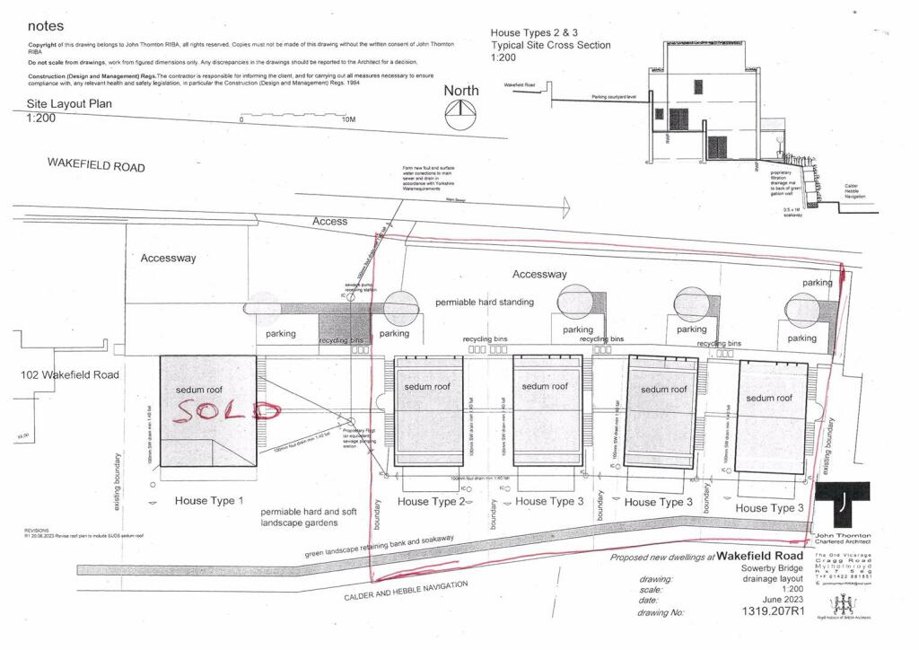
An excellent opportunity to purchase this single building land with full planning permission for an executive detached property in this highly desirable residential location overlooking the Norland Hillside. The present planning permission is for 5 executive detached four bedroomed family homes ...
Property Oracle says ..
This property listing is for a plot of land at Wakefield Road, Copley, Sowerby Bridge, with full planning permission for the construction of five executive detached, four-bedroom family homes. The land itself is situated in a relatively desirable location, with easy access to Sowerby Bridge’s amenities and train station providing links to other towns, including Halifax. Several good primary schools are nearby, making the area potentially appealing to families. The site plans reveal the layout for the planned houses, with each unit designed to incorporate private gardens. While the lack of a pre-existing structure means we cannot comment on condition, the fact it comes with planning permission mitigates this to an extent. The price point needs further investigation as the value is potentially high given current construction costs and current property prices in the area; however, it is important to note that land prices generally reflect the building opportunity and potential return from the property development. While there is a lack of precise square footage data for the land itself, the overall value proposition depends entirely on the successful execution of building the planned houses. Therefore, potential buyers should proceed with a thorough review of planning documents and financial projections before purchase. The property is a good investment opportunity for a developer.
Therefore, we give this property 4 / 10. *Disclaimer: This is our option and does constitute a recommendation or financial advice. Do your own research. *
- Price
- 6
- Condition
- 1
- Location
- 7
- Land
- 2
- Bedrooms
- 0
- Bathrooms
- 0
- Sqft (est)
- 839.59
The heatmap indicates the level of crime in the area. The color of the heatmap indicates the crime severity and recency.
Metrics Year-on-Year
- Average area value
- 225,000.00 £Increased by 3.20 %
- Est sale value
- 155,324.15 £Decreased by 26.29 %
- Average area rental value
- 809.00 £/moIncreased by 21.84 %
- Est letting value
- 0.00 £/mo
- Est rental Yield
- 4.31 %Increased by 18.08 %
- Crime Rate
- 3.00 %Unchanged by 0.00 %
Agent Activity
Property @ Kemp and Co created the listing.
Nearby Schools
| Name | Type | Ofsted | Distance |
|---|---|---|---|
| Bolton Brow Primary Academy | Academy Converter | Good | 0.22 KM |
| Compass Community School Willow Park | Other Independent Special School | 0.48 KM | |
| Christ Church Cofe Va Junior School, Sowerby Bridge | Voluntary Aided School | Good | 0.80 KM |
| Warley Road Primary Academy | Academy Converter | 0.98 KM | |
| Norland Ce School | Voluntary Controlled School | Good | 1.31 KM |
Images
Nearby Streets
| Name | Average Price | Average Sqft | Distance |
|---|---|---|---|
| Upper Bolton Brow | £ 170,000 | 0 | 0.00 KM |
| Park Street | £ 0 | 0 | 0.00 KM |
| Nelson Place | £ 0 | 0 | 0.00 KM |
| Woodland Drive | £ 325,000 | 0 | 0.00 KM |
| Milner Royd Lane | £ 700,000 | 0 | 0.00 KM |
Nearby Transport
| Name | NLC | TLC | Distance |
|---|---|---|---|
| Sowerby Bridge | 8527 | SOW | 1.16 KM |
| Halifax | 8411 | HFX | 4.93 KM |
| Mytholmroyd | 8526 | MYT | 9.54 KM |
| Slaithwaite | 8450 | SWT | 9.85 KM |
Nearby Listings
| Address | Price | Type | Score | Distance |
|---|---|---|---|---|
| Plot 4 Land At Wakefield Road, Copley | £ 150,000 | BUY | 4 / 10 | 0.00 KM |
| Plot 3 Land At Wakefield Road, Copley | £ 150,000 | BUY | 4 / 10 | 0.10 KM |
| Plot 5 Land At Wakefield Road, Copley | £ 150,000 | BUY | 4 / 10 | 0.14 KM |
| Plot 2 Land At Wakefield Road, Copley | £ 150,000 | BUY | 4 / 10 | 0.14 KM |
| Arlington Crescent, Halifax | £ 180,000 | BUY | 6 / 10 | 0.16 KM |
Nearby Properties
| Address | Price | Distance |
|---|---|---|
| 30 Norland View | £ 138,000 | 0.02 KM |
| 26 Norland View | £ 125,000 | 0.02 KM |
| 5 Norland View | £ 85,000 | 0.02 KM |
| 7 Norland View | £ 98,000 | 0.02 KM |
| 12 Norland View | £ 95,000 | 0.02 KM |