Lindel Court, Kings Hill, ME19 4HQ
By Kings Hill Properties
£ 295,000
Reviews
3 out of 5 stars
Kings Hill Properties says ..
A modern, second floor apartment located in a quiet court yard just a short walk from the local shops & amenities of Liberty Square and Kings Hill golf course. NO ONWARD CHAIN. Boasts ground floor STORAGE CAGE and SECURE PARKING. This apartment is a must to view to appreciate the beautifully ...
Property Oracle says ..
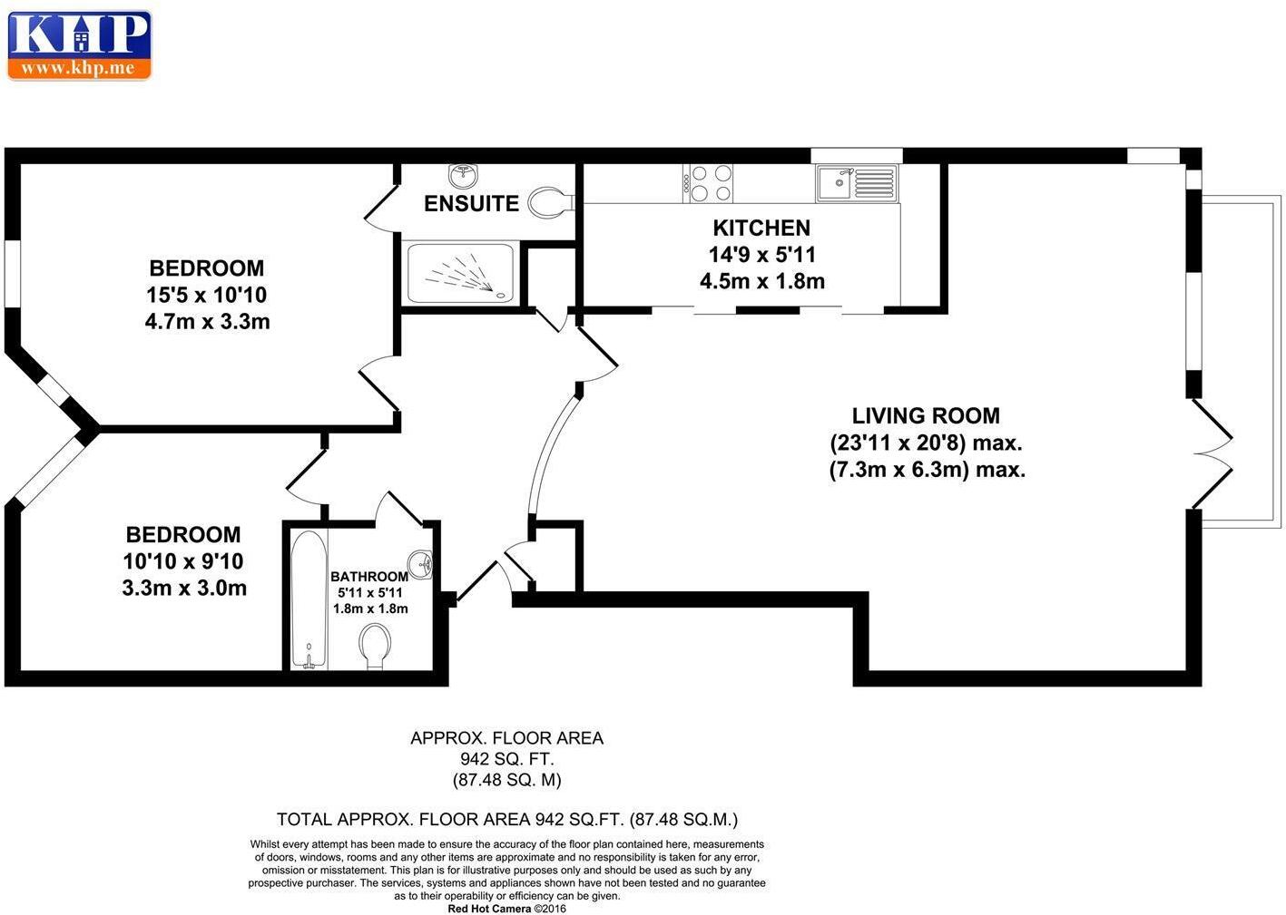
This property is a two bedroom, two bathroom apartment located in Kings Hill, Kent. Kings Hill is a popular development known for its attractive environment and convenient location. The apartment itself appears modern and well-maintained, based on the provided images. The property benefits from allocated parking, which is a significant advantage in this area. While the plot size is zero, the development offers communal green spaces, as seen in the exterior photos. The list price of £295,000 is significantly lower than the average price for the area (£592,031), and the price per square foot is also below average. However, it is important to note that the average price and price per square foot are calculated based on all property types, and apartments typically command lower prices than detached or semi-detached houses. Considering the condition, location, and amenities, the price appears reasonable.
Therefore, we give this property 7 / 10. *Disclaimer: This is our option and does constitute a recommendation or financial advice. Do your own research. *
- Price
- 8
- Condition
- 9
- Location
- 8
- Land
- 3
- Bedrooms
- 2
- Bathrooms
- 2
- Sqft (est)
- 942.00
The heatmap indicates the level of crime in the area. The color of the heatmap indicates the crime severity and recency.
Metrics Year-on-Year
- Average area value
- 562,188.00 £Increased by 0.28 %
- Est sale value
- 583,098.00 £Increased by 40.68 %
- Average area rental value
- 2,283.00 £/moIncreased by 15.48 %
- Est letting value
- 1,884.00 £/moIncreased by 100.00 %
- Est rental Yield
- 4.87 %Increased by 15.13 %
- Crime Rate
- 17.00 %Unchanged by 0.00 %
Agent Activity
Kings Hill Properties created the listing.
Nearby Schools
| Name | Type | Ofsted | Distance |
|---|---|---|---|
| Kings Hill School Primary And Nursery | Community School | Good | 0.54 KM |
| Valley Invicta Primary School At Kings Hill | Academy Sponsor Led | Good | 0.76 KM |
| The Discovery School | Community School | Outstanding | 1.62 KM |
| West Malling Church Of England Primary School And Mcginty Speech And Language Centre | Academy Converter | Good | 2.77 KM |
| Wateringbury Church Of England Primary School | Voluntary Aided School | Good | 3.06 KM |
Images
Nearby Streets
| Name | Average Price | Average Sqft | Distance |
|---|---|---|---|
| Cabusse Close | £ 422,623 | 0 | 0.00 KM |
| Royal Crescent | £ 295,000 | 0 | 0.00 KM |
| Orchard Way | £ 312,998 | 0 | 0.00 KM |
| Hamilton Way | £ 0 | 0 | 0.00 KM |
| Viollette Close | £ 0 | 0 | 0.00 KM |
Nearby Transport
| Name | NLC | TLC | Distance |
|---|---|---|---|
| West Malling | 5129 | WMA | 2.94 KM |
| Wateringbury | 5241 | WTR | 3.14 KM |
| East Malling | 5134 | EML | 4.33 KM |
| Yalding | 5232 | YAL | 5.00 KM |
| Beltring | 5227 | BEG | 7.33 KM |
Nearby Listings
| Address | Price | Type | Score | Distance |
|---|---|---|---|---|
| Lindel Court, Kings Hill, ME19 4HQ | £ 295,000 | BUY | 7 / 10 | 0.00 KM |
| Ames Way, Kings Hill, ME19 4HT | £ 450,000 | BUY | 7 / 10 | 0.04 KM |
| Ames Way | £ 585,000 | BUY | 7 / 10 | 0.07 KM |
| Niagara Close, Kings Hill, West Malling | £ 489,995 | BUY | 6 / 10 | 0.07 KM |
| Spencer Place, Kings Hill, West Malling, Kent | £ 325,000 | BUY | 6 / 10 | 0.10 KM |
Nearby Properties
| Address | Price | Distance |
|---|---|---|
| 2 Lindel Court | £ 210,000 | 0.01 KM |
| 3 Lindel Court | £ 215,000 | 0.01 KM |
| 12 Lindel Court | £ 249,995 | 0.01 KM |
| 1 Lindel Court | £ 282,000 | 0.01 KM |
| 11 Lindel Court | £ 232,500 | 0.01 KM |