Bingham Crescent, Barnstaple, EX32
By John Smale & Co
£ 275,000
Reviews
4 out of 5 stars
John Smale & Co says ..
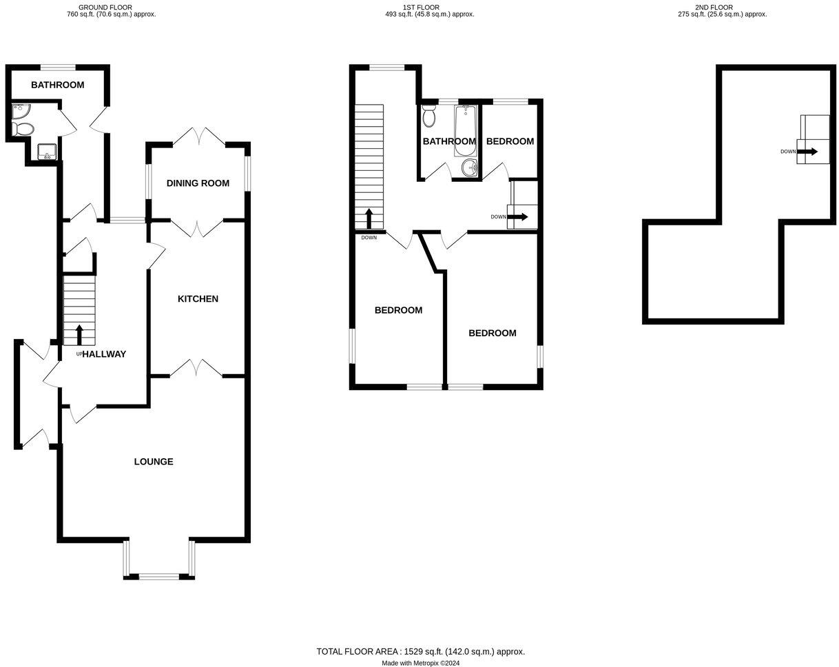
A delightful family residence providing 3 bedroomed, 2 reception roomed double glazed gas centrally heated accommodation with garden, parking for a number of vehicles and views and within walking distance of Barnstaple town centre.
Property Oracle says ..
This property is a 3-bedroom, 2-bathroom end of terrace house located in Barnstaple, North Devon. The asking price of £275,000 is below the average price for the area (£451,562), and the property itself is smaller than the average size (700 sqft vs 1107 sqft). However, the property benefits from a modern kitchen and bathroom, as well as a recently added garden room/office. The location is close to several schools, and Barnstaple train station is within walking distance. While there is limited information on the overall condition of the property, the images suggest it is in good condition and has been recently renovated or updated. The property also includes a good-sized garden.
Therefore, we give this property 8 / 10. *Disclaimer: This is our option and does constitute a recommendation or financial advice. Do your own research. *
- Price
- 9
- Condition
- 8
- Location
- 8
- Land
- 7
- Bedrooms
- 3
- Bathrooms
- 2
- Sqft (est)
- 700.00
- Lot (est)
- 1,529.00
The heatmap indicates the level of crime in the area. The color of the heatmap indicates the crime severity and recency.
Metrics Year-on-Year
- Average area value
- 661,000.00 £Increased by 29.29 %
- Est sale value
- 379,400.00 £Increased by 47.28 %
- Average area rental value
- 2,410.00 £/moIncreased by 120.90 %
- Est letting value
- 700.00 £/mo
- Est rental Yield
- 4.38 %Increased by 71.09 %
- Crime Rate
- 4.00 %Unchanged by 0.00 %
Agent Activity
John Smale & Co created the listing.
Nearby Schools
| Name | Type | Ofsted | Distance |
|---|---|---|---|
| Our Lady'S Catholic Primary School, Barnstaple | Academy Converter | Good | 0.54 KM |
| Eden Park Academy | Academy Converter | 0.57 KM | |
| Newport Community School Primary Academy | Academy Converter | Outstanding | 0.86 KM |
| Ashleigh Cofe Primary School | Academy Converter | 0.91 KM | |
| The Lampard Community School | Foundation Special School | Good | 0.94 KM |
Images
Nearby Streets
| Name | Average Price | Average Sqft | Distance |
|---|---|---|---|
| Kings Road | £ 195,000 | 0 | 0.00 KM |
| Barbican Lane | £ 740,000 | 0 | 0.00 KM |
| Jingles Place | £ 0 | 0 | 0.00 KM |
| Jingles Lane | £ 150,000 | 0 | 0.00 KM |
| Eddy's Lane | £ 0 | 0 | 0.00 KM |
Nearby Transport
| Name | NLC | TLC | Distance |
|---|---|---|---|
| Barnstaple | 5725 | BNP | 2.15 KM |
| Chapelton (Devon) | 5820 | CPN | 7.23 KM |
Nearby Listings
| Address | Price | Type | Score | Distance |
|---|---|---|---|---|
| Bingham Crescent, Barnstaple, EX32 | £ 275,000 | BUY | 8 / 10 | 0.00 KM |
| Chanters Hill, Barnstaple, Devon, EX32 | £ 315,000 | BUY | 7 / 10 | 0.08 KM |
| Brahms Way, Barnstaple, Devon, EX32 | £ 285,000 | BUY | 7 / 10 | 0.15 KM |
| Brahms Way, Barnstaple | £ 329,950 | BUY | 6 / 10 | 0.16 KM |
| Lauderdale, Barnstaple | £ 350,000 | BUY | 6 / 10 | 0.17 KM |
Nearby Properties
| Address | Price | Distance |
|---|---|---|
| 20 Bingham Crescent | £ 160,500 | 0.00 KM |
| 21 Bingham Crescent | £ 155,000 | 0.00 KM |
| 6 Bingham Crescent | £ 163,000 | 0.00 KM |
| 8 Bingham Crescent | £ 142,000 | 0.00 KM |
| 3 Bingham Crescent | £ 230,000 | 0.00 KM |