Purplebricks says ..
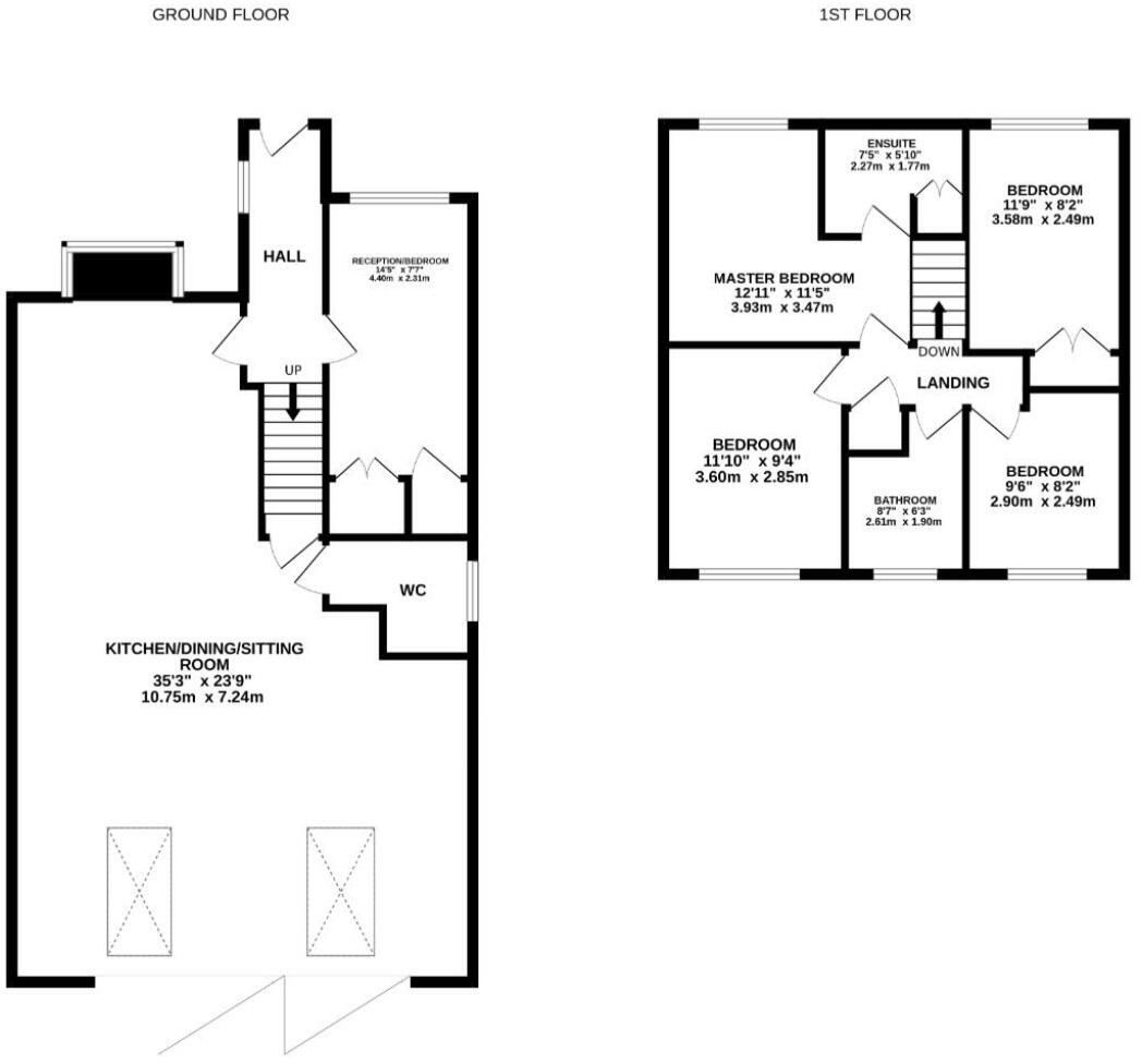
Exceptional 5-bedroom detached family residence in desirable Bearsted. Boasts solar panels (earning over £1k annually), underfloor heating, flowing open plan layout, stunning 5m Origin bifold doors, dedicated gym/home office, and a spacious driveway. The entrance hall, featuring marble-effect por...
Property Oracle says ..
Therefore, we give this property 7 / 10. *Disclaimer: This is our option and does constitute a recommendation or financial advice. Do your own research. *
- Price
- 7
- Condition
- 9
- Location
- 8
- Land
- 7
- Bedrooms
- 5
- Bathrooms
- 3
- Sqft (est)
- 1,375.20
The heatmap indicates the level of crime in the area. The color of the heatmap indicates the crime severity and recency.
Metrics Year-on-Year
- Average area value
- 812,500.00 £Increased by 46.80 %
- Est sale value
- 741,232.80 £Increased by 8.67 %
- Average area rental value
- 1,223.00 £/moDecreased by 43.04 %
- Est letting value
- 0.00 £/moDecreased by 100.00 %
- Est rental Yield
- 1.81 %Decreased by 61.08 %
- Crime Rate
- 5.00 %Unchanged by 0.00 %
from 553,478.00 £
from 682,099.20 £
from 2,147.00 £/mo
from 1,375.20 £/mo
from 4.65 %
from 5.00 %
Agent Activity
Purplebricks created the listing.
Nearby Schools
| Name | Type | Ofsted | Distance |
|---|---|---|---|
| Roseacre Junior School | Foundation School | Outstanding | 0.77 KM |
| Bearsted Primary Academy | Free Schools | 0.80 KM | |
| Snowfields Academy | Free Schools Special | 0.80 KM | |
| Thurnham Church Of England Infant School | Voluntary Controlled School | Outstanding | 0.84 KM |
| Madginford Primary School | Community School | Good | 1.58 KM |
Images
Nearby Streets
| Name | Average Price | Average Sqft | Distance |
|---|---|---|---|
| Averenches Road | £ 525,000 | 0 | 0.00 KM |
| Pope's Wood | £ 987,500 | 0 | 0.00 KM |
| Birling Close | £ 0 | 0 | 0.00 KM |
| Ash Tree Gardens | £ 585,000 | 0 | 0.00 KM |
| Mount Pleasant Drive | £ 885,000 | 0 | 0.00 KM |
Nearby Transport
| Name | NLC | TLC | Distance |
|---|---|---|---|
| Bearsted | 5091 | BSD | 1.32 KM |
| Maidstone East | 5115 | MDE | 4.91 KM |
| Maidstone West | 5222 | MDW | 5.58 KM |
| Maidstone Barracks | 5237 | MDB | 5.72 KM |
| Hollingbourne | 5141 | HBN | 7.01 KM |
Nearby Listings
| Address | Price | Type | Score | Distance |
|---|---|---|---|---|
| Port Close, Maidstone, ME14 | £ 725,000 | BUY | 7 / 10 | 0.00 KM |
| Port Close, Maidstone | £ 625,000 | BUY | 8 / 10 | 0.00 KM |
| Port Close, Bearsted, Maidstone | £ 625,000 | BUY | 7 / 10 | 0.04 KM |
| Port Close, Bearsted, ME14 | £ 650,000 | BUY | 8 / 10 | 0.05 KM |
| Port Close, Bearsted, Maidstone | £ 625,000 | BUY | Unknown | 0.08 KM |
Nearby Properties
| Address | Price | Distance |
|---|---|---|
| 7 Port Close | £ 115,500 | 0.02 KM |
| 3 Port Close | £ 550,000 | 0.02 KM |
| 2 Port Close | £ 395,000 | 0.02 KM |
| 8 Port Close | £ 285,000 | 0.02 KM |
| 8 Creve Coeur Close | £ 410,000 | 0.14 KM |