Sun Moor Drive, Skipton, North Yorkshire, BD23
By Dale Eddison
£ 265,000
Reviews
3 out of 5 stars
Dale Eddison says ..
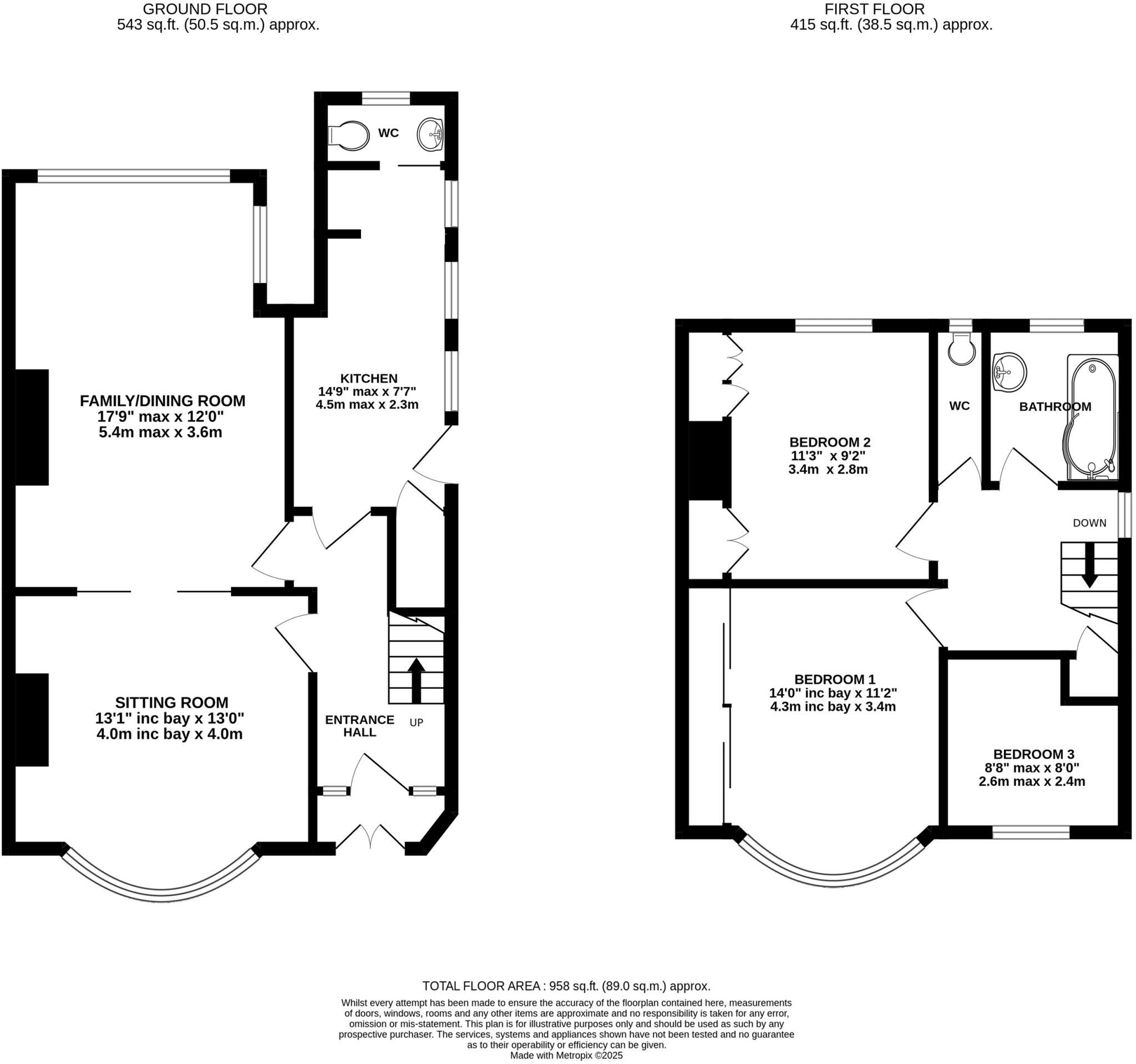
*** NO ONWARDS CHAIN *** A WELL-KEPT THREE BEDROOM SEMI-DETACHED HOME IN A POPULAR RESIDENTIAL AREA OF SKIPTON, OFFERING SPACIOUS LIVING SPACES, PRIVATE GARDEN WITH A SOUTHERLY ASPECT, DRIVEWAY, AND CARPORT STORAGE.
Property Oracle says ..
This is a three-bedroom semi-detached property located in a popular residential area of Skipton. The property is well-presented and benefits from a modern kitchen and bathroom. There is also a good-sized garden and off-street parking. The property is within walking distance of local amenities and schools, and is also close to Skipton town centre. The property is likely to appeal to a wide range of buyers, including families, first-time buyers, and investors.
Therefore, we give this property 7 / 10. *Disclaimer: This is our option and does constitute a recommendation or financial advice. Do your own research. *
- Price
- 8
- Condition
- 7
- Location
- 7
- Land
- 7
- Bedrooms
- 3
- Bathrooms
- 1
The heatmap indicates the level of crime in the area. The color of the heatmap indicates the crime severity and recency.
Metrics Year-on-Year
- Average area value
- 1,245,000.00 £Increased by 45.13 %
- Average area rental value
- 2,513.00 £/moIncreased by 0.60 %
- Est rental Yield
- 2.42 %Decreased by 30.66 %
- Crime Rate
- 4.00 %Unchanged by 0.00 %
Agent Activity
Dale Eddison created the listing.
Nearby Schools
| Name | Type | Ofsted | Distance |
|---|---|---|---|
| Brougham Street Nursery School | Local Authority Nursery School | Good | 0.49 KM |
| Otley Street Community Nursery School | Local Authority Nursery School | Outstanding | 0.55 KM |
| Skipton Parish Church Of England Primary School | Academy Sponsor Led | 0.56 KM | |
| Skipton Children'S Centre | Children's Centre | 0.60 KM | |
| Greatwood Community Primary School | Academy Converter | 0.89 KM |
Images
Nearby Streets
| Name | Average Price | Average Sqft | Distance |
|---|---|---|---|
| Rankin's Well Road | £ 289,950 | 0 | 0.00 KM |
| Regent Avenue | £ 0 | 0 | 0.00 KM |
| Moor View Road | £ 0 | 0 | 0.00 KM |
| The Paddock | £ 850,000 | 0 | 0.00 KM |
| Greenacres | £ 375,000 | 0 | 0.00 KM |
Nearby Transport
| Name | NLC | TLC | Distance |
|---|---|---|---|
| Skipton | 2728 | SKI | 2.08 KM |
| Cononley | 8470 | CEY | 4.89 KM |
| Steeton And Silsden | 8469 | SON | 9.70 KM |
Nearby Listings
| Address | Price | Type | Score | Distance |
|---|---|---|---|---|
| Sun Moor Drive, Skipton, North Yorkshire, BD23 | £ 265,000 | BUY | 7 / 10 | 0.00 KM |
| 27 Hurrs Road, Skipton, BD23 2JX | £ 385,000 | BUY | 7 / 10 | 0.08 KM |
| Springfields, Skipton, BD23 | £ 219,950 | BUY | Unknown | 0.10 KM |
| 10 King Street, Skipton, BD23 1HD | £ 195,000 | BUY | 6 / 10 | 0.10 KM |
| Kings Street, Skipton | £ 175,000 | BUY | Unknown | 0.10 KM |
Nearby Properties
| Address | Price | Distance |
|---|---|---|
| 2 St James Court | £ 302,000 | 0.07 KM |
| 7 Springfields | £ 157,000 | 0.08 KM |
| 10 Springfields | £ 171,000 | 0.08 KM |
| 16 Springfields | £ 237,500 | 0.08 KM |
| 3 Springfields | £ 165,000 | 0.08 KM |