Midway Terrace, Alphington, EX2
By Fraser & Wheeler
£ 300,000
Reviews
3 out of 5 stars
Fraser & Wheeler says ..
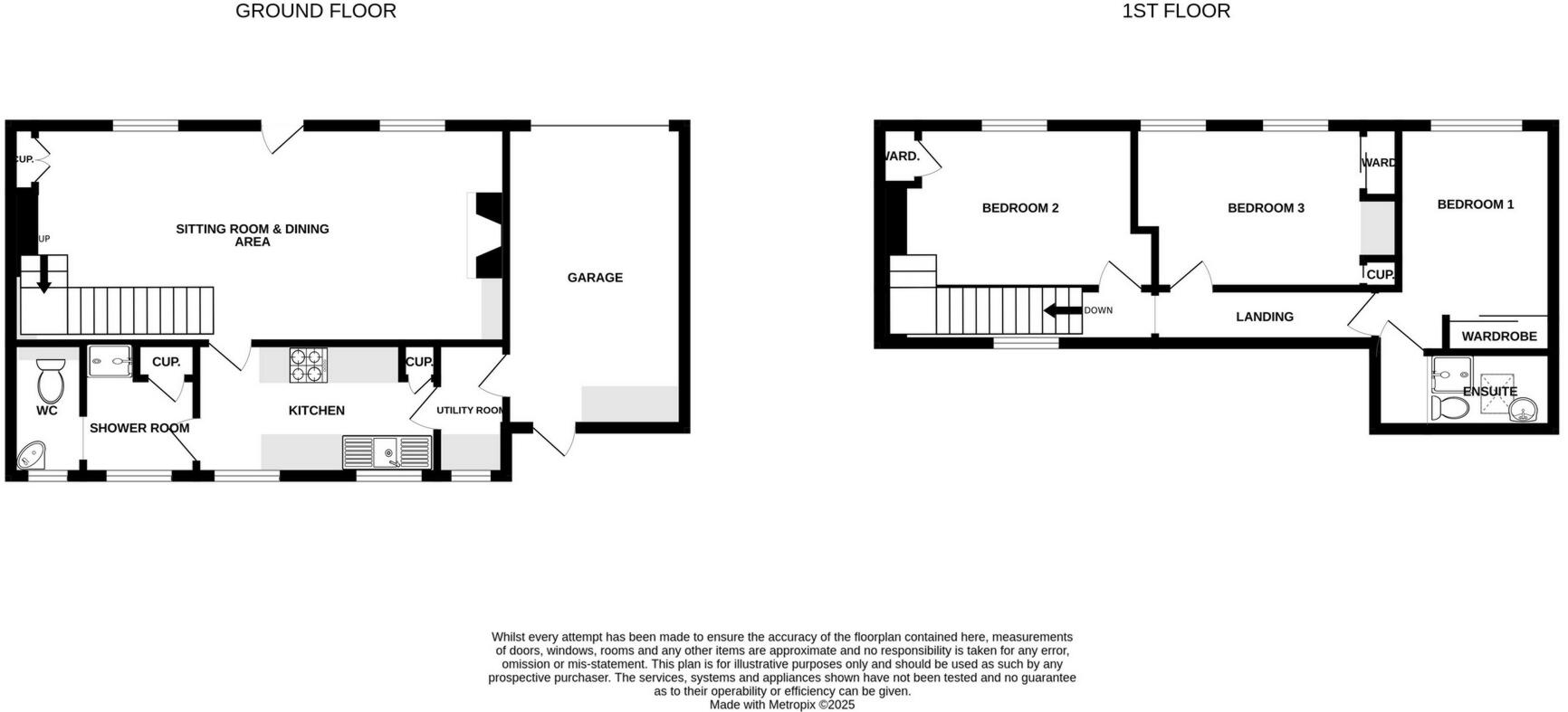
A charming three bedroom end of terrace cottage situated in the popular village location of Alphington. The property is well positioned for local school, shop, doctors surgery, public house, supermarkets, bus route and main commuter links and benefits from an enclosed garden and a garage. EPC D, ...
Property Oracle says ..
Therefore, we give this property 7 / 10. *Disclaimer: This is our option and does constitute a recommendation or financial advice. Do your own research. *
- Price
- 8
- Condition
- 7
- Location
- 8
- Land
- 7
- Bedrooms
- 3
- Bathrooms
- 1
- Sqft (est)
- 1,281.00
The heatmap indicates the level of crime in the area. The color of the heatmap indicates the crime severity and recency.
Metrics Year-on-Year
- Average area value
- 298,045.00 £Decreased by 18.28 %
- Est sale value
- 424,011.00 £Decreased by 4.61 %
- Average area rental value
- 1,425.00 £/moIncreased by 1.79 %
- Est letting value
- 1,281.00 £/moUnchanged by 0.00 %
- Est rental Yield
- 5.74 %Increased by 24.51 %
- Crime Rate
- 3.00 %Unchanged by 0.00 %
from 364,698.00 £
from 444,507.00 £
from 1,400.00 £/mo
from 1,281.00 £/mo
from 4.61 %
from 3.00 %
Agent Activity
Fraser & Wheeler created the listing.
Nearby Schools
| Name | Type | Ofsted | Distance |
|---|---|---|---|
| Alphington Primary School | Academy Converter | Good | 0.42 KM |
| West Exe School | Academy Sponsor Led | 0.84 KM | |
| The Outdoors School | Other Independent Special School | Requires improvement | 1.49 KM |
| West Exe Nursery School | Local Authority Nursery School | Outstanding | 1.70 KM |
| St Thomas Primary School | Academy Converter | Good | 1.73 KM |
Images
Nearby Streets
| Name | Average Price | Average Sqft | Distance |
|---|---|---|---|
| Fairfield Road | £ 286,488 | 0 | 0.00 KM |
| Shillingford Road | £ 0 | 0 | 0.00 KM |
| Shillingford Road | £ 900,000 | 0 | 0.00 KM |
| Richard Court | £ 0 | 0 | 0.00 KM |
| Admiral Vernon Close | £ 0 | 0 | 0.00 KM |
Nearby Transport
| Name | NLC | TLC | Distance |
|---|---|---|---|
| Exeter St Thomas | 3414 | EXT | 1.95 KM |
| Exeter Central | 5755 | EXC | 3.10 KM |
| Exeter St David'S | 3410 | EXD | 3.28 KM |
| St James Park (Exeter) | 5751 | SJP | 4.11 KM |
| Polsloe Bridge | 3422 | POL | 5.62 KM |
Nearby Listings
| Address | Price | Type | Score | Distance |
|---|---|---|---|---|
| Midway Terrace, Exeter, Devon | £ 217,750 | BUY | Unknown | 0.00 KM |
| Midway Terrace, Alphington, EX2 | £ 300,000 | BUY | 7 / 10 | 0.00 KM |
| Midway Terrace, Exeter, Devon | £ 350,000 | BUY | Unknown | 0.10 KM |
| Bate Close, Alphington, EX2 | £ 529,950 | BUY | 6 / 10 | 0.11 KM |
| Bate Close, Alphington, EX2 | £ 550,000 | BUY | 6 / 10 | 0.11 KM |
Nearby Properties
| Address | Price | Distance |
|---|---|---|
| 8 Midway Terrace | £ 218,000 | 0.01 KM |
| 5 Midway Terrace | £ 188,000 | 0.01 KM |
| 4 Midway Terrace | £ 137,500 | 0.01 KM |
| 7 Midway Terrace | £ 220,000 | 0.01 KM |
| 3a Midway Terrace | £ 219,995 | 0.01 KM |