BO
Newhall Street, Cannock, Staffordshire, WS11
By Boot & Son Chartered Surveyors
£ 250,000
Reviews
3 out of 5 stars
Boot & Son Chartered Surveyors says ..
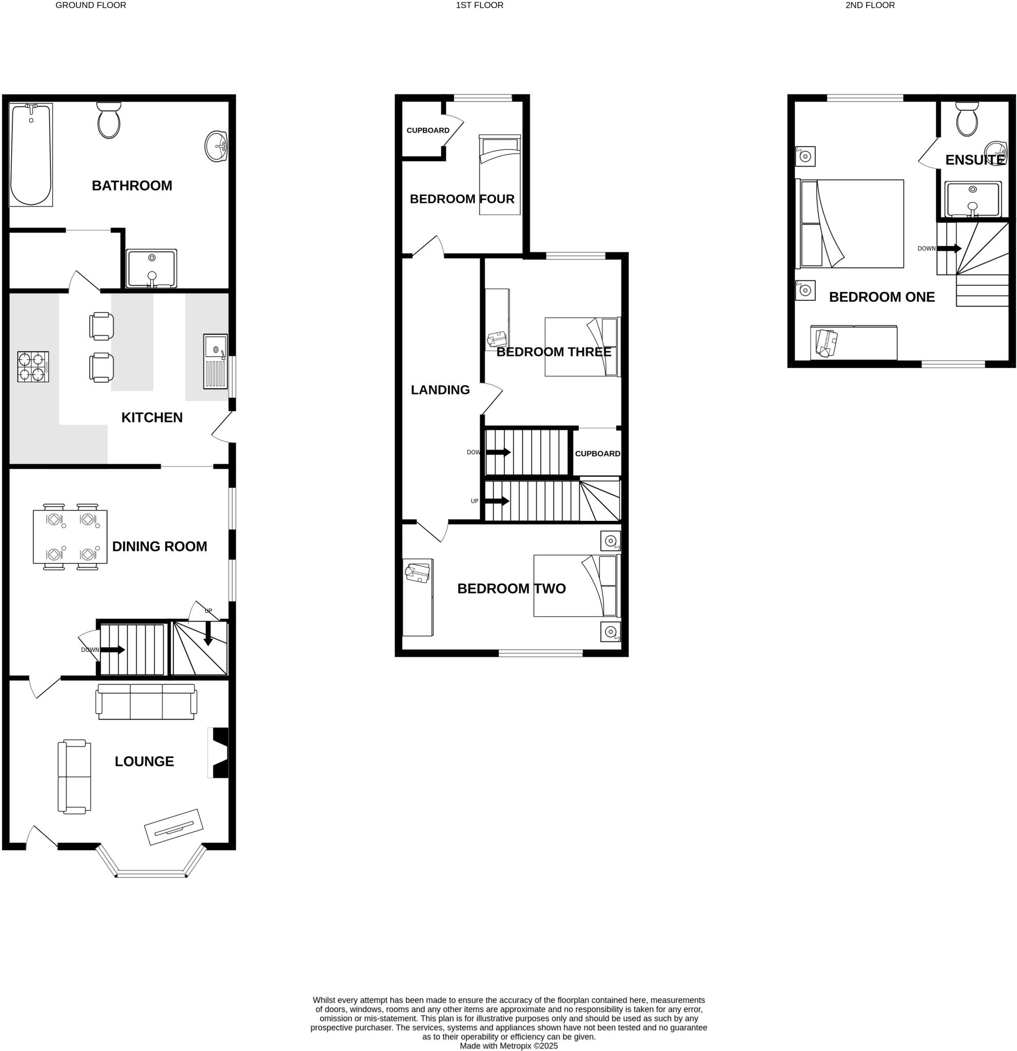
Set over THREE GENEROUSLY SIZED FLOORS, this FOUR BEDROOM PROPERTY offers versatile living space ideal for families or those looking for extra room to grow. NICELY PRESENTED THROUGHOUT, this home features a recently fitted kitchen and a stylish new bathroom, adding a fresh modern feel while retai...
Property Oracle says ..
Therefore, we give this property 6 / 10. *Disclaimer: This is our option and does constitute a recommendation or financial advice. Do your own research. *
- Price
- 7
- Condition
- 6
- Location
- 7
- Land
- 7
- Bedrooms
- 4
- Bathrooms
- 2
- Sqft (est)
- 864.00
The heatmap indicates the level of crime in the area. The color of the heatmap indicates the crime severity and recency.
Metrics Year-on-Year
- Average area value
- 313,271.00 £Decreased by 10.39 %
- Est sale value
- 249,696.00 £Increased by 25.65 %
- Average area rental value
- 821.00 £/moIncreased by 17.12 %
- Est letting value
- 0.00 £/mo
- Est rental Yield
- 3.14 %Increased by 30.29 %
- Crime Rate
- 4.00 %Unchanged by 0.00 %
from 349,592.00 £
from 198,720.00 £
from 701.00 £/mo
from 0.00 £/mo
from 2.41 %
from 4.00 %
Agent Activity
Boot & Son Chartered Surveyors created the listing.
Nearby Schools
| Name | Type | Ofsted | Distance |
|---|---|---|---|
| Chaselea Alternative Provision Academy | Academy Alternative Provision Sponsor Led | 0.52 KM | |
| Chase Grammar School | Other Independent School | 0.66 KM | |
| Chase Grammar School International Study Centre | Other Independent School | 0.66 KM | |
| Peak Education - Cannock | Other Independent Special School | 0.76 KM | |
| St Mary'S Catholic Primary School | Voluntary Aided School | Good | 0.78 KM |
Images
Nearby Streets
| Name | Average Price | Average Sqft | Distance |
|---|---|---|---|
| Maple Crescent | £ 325,000 | 0 | 0.00 KM |
| Chalfont Avenue | £ 0 | 0 | 0.00 KM |
| Market Place | £ 0 | 0 | 0.00 KM |
| Laburnum Avenue | £ 0 | 0 | 0.00 KM |
| Ringway | £ 97,500 | 0 | 0.00 KM |
Nearby Transport
| Name | NLC | TLC | Distance |
|---|---|---|---|
| Cannock | 1016 | CAO | 1.49 KM |
| Landywood | 1017 | LAW | 3.72 KM |
| Hednesford | 1148 | HNF | 4.57 KM |
| Bloxwich North | 1018 | BWN | 7.08 KM |
| Bloxwich | 1141 | BLX | 8.06 KM |
Nearby Listings
| Address | Price | Type | Score | Distance |
|---|---|---|---|---|
| Newhall Street, Cannock, Staffordshire, WS11 | £ 250,000 | BUY | 6 / 10 | 0.00 KM |
| Newhall Street, Cannock | £ 350,000 | BUY | 6 / 10 | 0.04 KM |
| Newhall Street, Cannock, WS11 | £ 350,000 | BUY | Unknown | 0.04 KM |
| Newhall Street, Cannock | £ 295,000 | BUY | 7 / 10 | 0.07 KM |
| Newhall Street, Cannock | £ 250,000 | BUY | 6 / 10 | 0.07 KM |
Nearby Properties
| Address | Price | Distance |
|---|---|---|
| 127 Newhall Street | £ 155,000 | 0.07 KM |
| 119 Newhall Street | £ 292,000 | 0.07 KM |
| 109 Newhall Street | £ 160,000 | 0.07 KM |
| 104 Newhall Street | £ 580,000 | 0.07 KM |
| 100 Newhall Street | £ 126,500 | 0.07 KM |