mile... says ..
Exceptional garden flat set on this great road in Kensal Rise
Property Oracle says ..
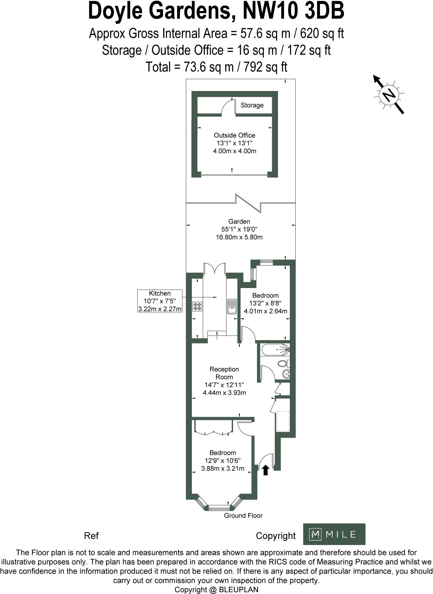
This two-bedroom ground floor flat in Doyle Gardens, Kensal Green, is presented in excellent condition. The property boasts a modern and stylish interior, with a contemporary kitchen and bathroom. The inclusion of a well-maintained garden adds considerably to its appeal, and the presence of a garden office further enhances its functionality and value. The location in Kensal Green offers access to excellent transport links, several reputable schools, and a thriving local area. While precise comparable pricing data is limited, the list price appears to fall within a reasonable range, especially considering the overall high quality of the property and its attractive features. Potential buyers should note the absence of a specific plot size in the information provided.
Therefore, we give this property 7 / 10. *Disclaimer: This is our option and does constitute a recommendation or financial advice. Do your own research. *
- Price
- 7
- Condition
- 9
- Location
- 8
- Land
- 7
- Bedrooms
- 2
- Bathrooms
- 1
- Sqft (est)
- 792.00
The heatmap indicates the level of crime in the area. The color of the heatmap indicates the crime severity and recency.
Metrics Year-on-Year
- Average area value
- 745,000.00 £Decreased by 11.71 %
- Est sale value
- 605,880.00 £Decreased by 15.09 %
- Average area rental value
- 2,378.00 £/moIncreased by 14.49 %
- Est letting value
- 1,584.00 £/moUnchanged by 0.00 %
- Est rental Yield
- 3.83 %Increased by 29.83 %
- Crime Rate
- 3.00 %Unchanged by 0.00 %
Agent Activity
mile... created the listing.
Nearby Schools
| Name | Type | Ofsted | Distance |
|---|---|---|---|
| College Green School And Services | Local Authority Nursery School | Outstanding | 0.19 KM |
| Princess Frederica Cofe Primary School | Voluntary Aided School | Good | 0.51 KM |
| Treetops Children'S Centre | Children's Centre | 0.57 KM | |
| Capital City Academy | Academy Sponsor Led | Good | 0.73 KM |
| Donnington Primary School | Community School | Good | 0.83 KM |
Images
Nearby Streets
| Name | Average Price | Average Sqft | Distance |
|---|---|---|---|
| Wrottesley Road | £ 0 | 0 | 0.00 KM |
| Wrottesley Road | £ 0 | 0 | 0.00 KM |
| Wrottesley Road | £ 0 | 0 | 0.00 KM |
| Wrottesley Road | £ 0 | 0 | 0.00 KM |
| Wrottesley Road | £ 0 | 0 | 0.00 KM |
Nearby Transport
| Name | NLC | TLC | Distance |
|---|---|---|---|
| Kensal Green | 1447 | KNL | 0.73 KM |
| Kensal Rise | 1448 | KNR | 1.01 KM |
| Willesden Junction | 1457 | WIJ | 1.76 KM |
| Brondesbury Park | 1438 | BSP | 2.15 KM |
| Queens Park (London) | 1419 | QPW | 2.66 KM |
Nearby Listings
| Address | Price | Type | Score | Distance |
|---|---|---|---|---|
| Doyle Gardens, London NW10 | £ 685,000 | BUY | 7 / 10 | 0.00 KM |
| Doyle Gardens, London, NW10 | £ 1,300,000 | BUY | 6 / 10 | 0.05 KM |
| Doyle Gardens, London, NW10 | £ 1,300,000 | BUY | Unknown | 0.06 KM |
| Herbert Gardens, NW10 | £ 850,000 | BUY | 8 / 10 | 0.09 KM |
| Doyle Gardens, London, NW10 | £ 1,450,000 | BUY | 7 / 10 | 0.10 KM |
Nearby Properties
| Address | Price | Distance |
|---|---|---|
| 59 Doyle Gardens | £ 142,500 | 0.05 KM |
| 21 Doyle Gardens | £ 705,000 | 0.05 KM |
| 67 Doyle Gardens | £ 993,000 | 0.05 KM |
| 43 Doyle Gardens | £ 580,000 | 0.05 KM |
| 65 Doyle Gardens | £ 425,000 | 0.05 KM |