St. Sampson Road, Crawley, RH11
By Move Revolution
£ 290,000
Reviews
3 out of 5 stars
Move Revolution says ..
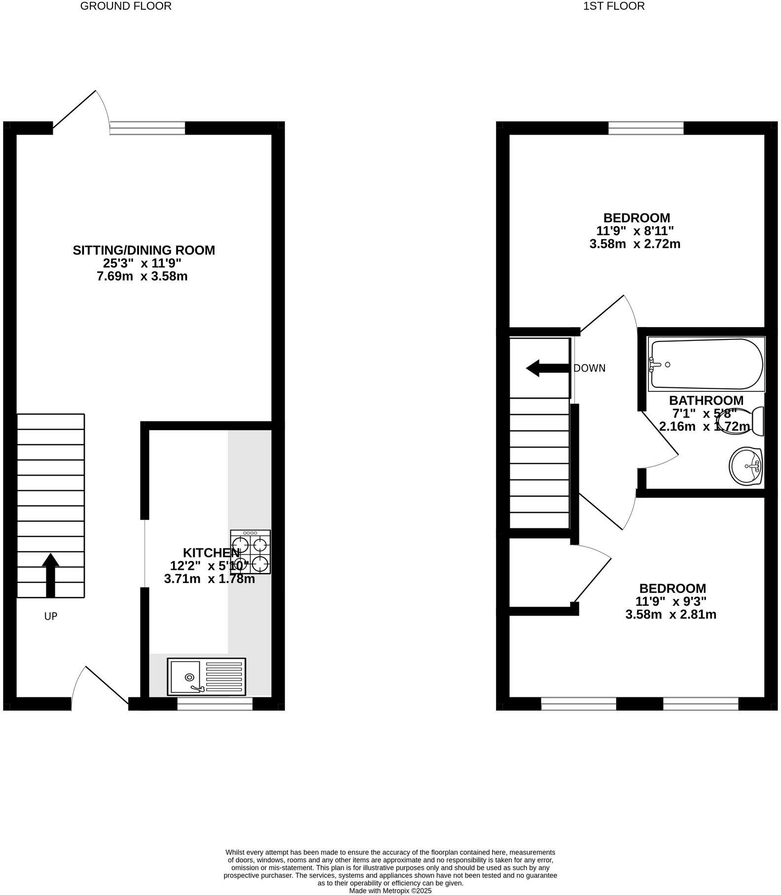
Guide Price £290,000 - £300,000 - Presenting a two bedroom house with garage and parking & within close proximity of access to M23 and Buchan Country Park.
Property Oracle says ..
The property is a 2-bedroom, 1-bathroom terraced house located in Broadfield, Crawley. It benefits from a small garden and is within proximity to local schools and transport links. The property appears to be in good condition, though some modernisation could enhance its appeal. The listed price seems slightly above average for the area, but could be justified by the garden and convenient location.
Therefore, we give this property 6 / 10. *Disclaimer: This is our option and does constitute a recommendation or financial advice. Do your own research. *
- Price
- 6
- Condition
- 7
- Location
- 7
- Land
- 4
- Bedrooms
- 2
- Bathrooms
- 1
- Sqft (est)
- 593.94
The heatmap indicates the level of crime in the area. The color of the heatmap indicates the crime severity and recency.
Metrics Year-on-Year
- Average area value
- 254,421.00 £Decreased by 2.55 %
- Est sale value
- 305,879.10 £Increased by 54.65 %
- Average area rental value
- 1,045.00 £/moDecreased by 1.69 %
- Est letting value
- 1,187.88 £/moIncreased by 100.00 %
- Est rental Yield
- 4.93 %Increased by 0.82 %
- Crime Rate
- 3.00 %Unchanged by 0.00 %
Agent Activity
Move Revolution created the listing.
Nearby Schools
| Name | Type | Ofsted | Distance |
|---|---|---|---|
| The Bewbush Academy | Academy Sponsor Led | Good | 0.56 KM |
| Bewbush Children And Family Centre | Children's Centre | 0.68 KM | |
| Broadfield Children And Family Centre | Children's Centre | 1.04 KM | |
| Holy Trinity Cofe Secondary School, Crawley | Voluntary Aided School | Good | 1.24 KM |
| Waterfield Primary School | Academy Converter | 1.26 KM |
Images
Nearby Streets
| Name | Average Price | Average Sqft | Distance |
|---|---|---|---|
| St Clement Road | £ 0 | 0 | 0.00 KM |
| Kingsley Road | £ 360,000 | 0 | 0.00 KM |
| Waldby Court | £ 300,000 | 0 | 0.00 KM |
| Sullivan Drive | £ 0 | 0 | 0.00 KM |
| Eden Road | £ 0 | 0 | 0.00 KM |
Nearby Transport
| Name | NLC | TLC | Distance |
|---|---|---|---|
| Ifield | 5495 | IFI | 1.91 KM |
| Crawley | 5484 | CRW | 3.83 KM |
| Faygate | 5493 | FGT | 4.93 KM |
| Three Bridges | 5491 | TBD | 6.65 KM |
| Gatwick Airport | 5416 | GTW | 9.03 KM |
Nearby Listings
| Address | Price | Type | Score | Distance |
|---|---|---|---|---|
| St. Sampson Road, Crawley, RH11 | £ 290,000 | BUY | 6 / 10 | 0.00 KM |
| Cottesmore Green, Crawley | £ 320,000 | BUY | Unknown | 0.00 KM |
| Millais Close, Crawley | £ 265,000 | BUY | 6 / 10 | 0.08 KM |
| Millais Close, Crawley, RH11 | £ 260,000 | BUY | 6 / 10 | 0.08 KM |
| St. Sampson Road, Cottesmore Green, Crawley, West Sussex, RH11 | £ 300,000 | BUY | 6 / 10 | 0.09 KM |
Nearby Properties
| Address | Price | Distance |
|---|---|---|
| 28 St Sampson Road | £ 236,000 | 0.01 KM |
| 4 St Sampson Road | £ 249,000 | 0.01 KM |
| 1 St Sampson Road | £ 188,000 | 0.01 KM |
| 9 St Sampson Road | £ 327,000 | 0.01 KM |
| 79 St Sampson Road | £ 135,000 | 0.01 KM |