JO
Valley Drive, Handforth, Wilmslow
By Jordan Fishwick
£ 589,950
Reviews
3 out of 5 stars
Jordan Fishwick says ..
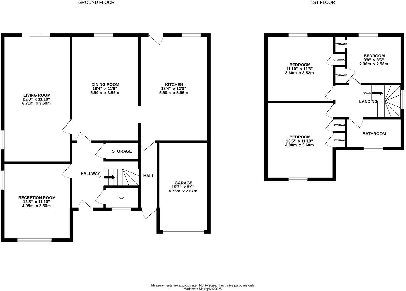
Jordan Fishwick are pleased to bring to the market this extended three bedroom detached property located within a highly regarded location in walking distance of Handforth Village. Handforth Village offers a number of local shopping facilities restaurants and a train station. Wilmslow, the larger...
Property Oracle says ..
Therefore, we give this property 7 / 10. *Disclaimer: This is our option and does constitute a recommendation or financial advice. Do your own research. *
- Price
- 7
- Condition
- 6
- Location
- 8
- Land
- 8
- Bedrooms
- 3
- Bathrooms
- 1
- Sqft (est)
- 1,368.74
The heatmap indicates the level of crime in the area. The color of the heatmap indicates the crime severity and recency.
Metrics Year-on-Year
- Average area value
- 530,000.00 £Increased by 33.61 %
- Est sale value
- 539,283.56 £Increased by 1.55 %
- Average area rental value
- 1,200.00 £/moIncreased by 0.08 %
- Est letting value
- 0.00 £/moDecreased by 100.00 %
- Est rental Yield
- 2.72 %Decreased by 25.07 %
- Crime Rate
- 2.00 %Unchanged by 0.00 %
from 396,666.00 £
from 531,071.12 £
from 1,199.00 £/mo
from 1,368.74 £/mo
from 3.63 %
from 2.00 %
Agent Activity
Jordan Fishwick created the listing.
Nearby Schools
| Name | Type | Ofsted | Distance |
|---|---|---|---|
| Handforth Grange Primary School | Academy Converter | 0.65 KM | |
| Oakenclough & Poynyon Children'S Centre | Children's Centre | 1.09 KM | |
| St Benedict'S Catholic Primary School | Voluntary Aided School | Good | 1.46 KM |
| Lacey Green Primary Academy | Academy Converter | 1.76 KM | |
| Royal School, Manchester | Non-maintained Special School | Outstanding | 1.78 KM |
Images
Nearby Streets
| Name | Average Price | Average Sqft | Distance |
|---|---|---|---|
| Bramble Road | £ 850,000 | 0 | 0.00 KM |
| Poppy Road | £ 704,983 | 0 | 0.00 KM |
| St. Andrews Crescent | £ 0 | 0 | 0.00 KM |
| Wentworth Street | £ 599,950 | 0 | 0.00 KM |
| Black Heath Drive | £ 319,950 | 0 | 0.00 KM |
Nearby Transport
| Name | NLC | TLC | Distance |
|---|---|---|---|
| Handforth | 2767 | HTH | 0.85 KM |
| Styal | 2868 | SYA | 2.13 KM |
| Wilmslow | 2774 | WML | 2.24 KM |
| Heald Green | 2860 | HDG | 3.07 KM |
| Cheadle Hulme | 2870 | CHU | 4.91 KM |
Nearby Listings
| Address | Price | Type | Score | Distance |
|---|---|---|---|---|
| Valley Drive, Handforth, Wilmslow | £ 589,950 | BUY | 7 / 10 | 0.00 KM |
| Clare Avenue, Wilmslow, SK9 | £ 550,000 | BUY | 6 / 10 | 0.04 KM |
| Valley Drive, Handforth, Wilmslow, Cheshire, SK9 | £ 625,000 | BUY | 6 / 10 | 0.06 KM |
| Valley Drive, Wilmslow, SK9 | £ 625,000 | BUY | 7 / 10 | 0.08 KM |
| Valley Drive, Wilmslow, SK9 | £ 575,000 | BUY | 7 / 10 | 0.08 KM |
Nearby Properties
| Address | Price | Distance |
|---|---|---|
| 11 Clare Avenue | £ 475,000 | 0.04 KM |
| 3 Clare Avenue | £ 312,000 | 0.04 KM |
| 2 Clare Avenue | £ 353,500 | 0.05 KM |
| 8 Clare Avenue | £ 238,518 | 0.05 KM |
| 30 Valley Drive | £ 277,000 | 0.08 KM |