WO
Linnell Road, Camberwell, SE5
By Wooster & Stock
£ 495,000
Reviews
3 out of 5 stars
Wooster & Stock says ..
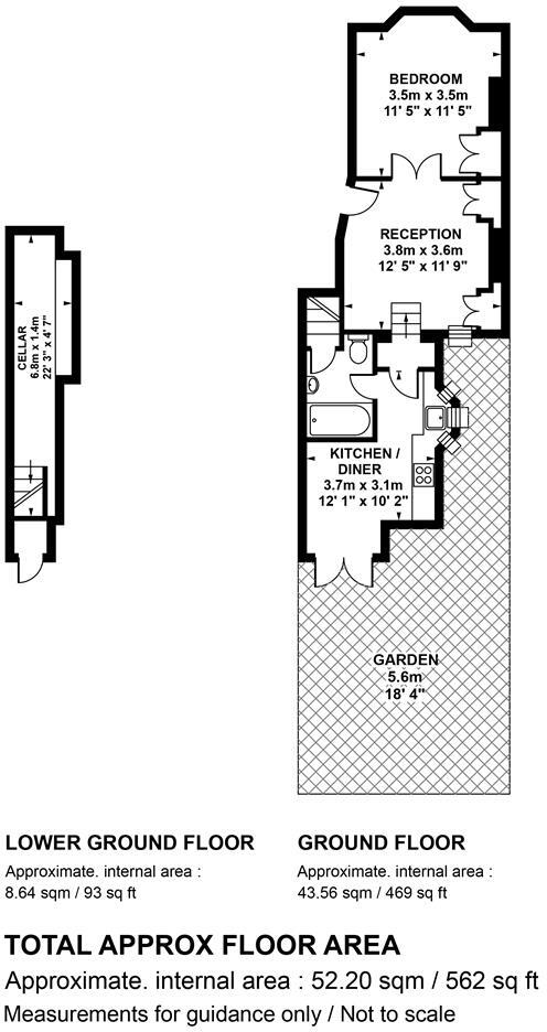
Elegant One Bedroom Period Garden Flat With Storage Cellar - CHAIN FREE. You'll just love this beautifully presented one bedroom period garden flat! Spread generously over the ground floor of a handsome period building along one of Camberwell's most popular streets, the property supplies...
Property Oracle says ..
Therefore, we give this property 6 / 10. *Disclaimer: This is our option and does constitute a recommendation or financial advice. Do your own research. *
- Price
- 5
- Condition
- 8
- Location
- 7
- Land
- 7
- Bedrooms
- 1
- Bathrooms
- 1
- Sqft (est)
- 505.04
The heatmap indicates the level of crime in the area. The color of the heatmap indicates the crime severity and recency.
Metrics Year-on-Year
- Average area value
- 723,750.00 £Decreased by 4.18 %
- Est sale value
- 530,292.00 £Increased by 33.59 %
- Average area rental value
- 2,649.00 £/moIncreased by 13.89 %
- Est letting value
- 1,515.12 £/moIncreased by 50.00 %
- Est rental Yield
- 4.39 %Increased by 18.65 %
- Crime Rate
- 5.00 %Unchanged by 0.00 %
from 755,351.00 £
from 396,961.44 £
from 2,326.00 £/mo
from 1,010.08 £/mo
from 3.70 %
from 5.00 %
Agent Activity
Wooster & Stock created the listing.
Nearby Schools
| Name | Type | Ofsted | Distance |
|---|---|---|---|
| Camberwell College Of Arts | Miscellaneous | 0.30 KM | |
| The Villa | Other Independent School | Good | 0.39 KM |
| Oliver Goldsmith Primary School | Community School | Requires improvement | 0.49 KM |
| Dog Kennel Hill School | Community School | Good | 0.70 KM |
| South Camberwell Children'S Centre | Children's Centre | 0.70 KM |
Images
Nearby Streets
| Name | Average Price | Average Sqft | Distance |
|---|---|---|---|
| Cross Road | £ 0 | 0 | 0.00 KM |
| Service Road 1 | £ 0 | 0 | 0.00 KM |
| Pelham Close | £ 0 | 0 | 0.00 KM |
| Muscatel Place | £ 0 | 0 | 0.00 KM |
| Southampton Way | £ 862,500 | 0 | 0.00 KM |
Nearby Transport
| Name | NLC | TLC | Distance |
|---|---|---|---|
| Denmark Hill | 5421 | DMK | 0.99 KM |
| East Dulwich | 5358 | EDW | 1.10 KM |
| Peckham Rye | 5423 | PMR | 1.29 KM |
| North Dulwich | 5429 | NDL | 2.03 KM |
| Loughborough Junction | 5082 | LGJ | 2.41 KM |
Nearby Listings
| Address | Price | Type | Score | Distance |
|---|---|---|---|---|
| Linnell Road, Camberwell, SE5 | £ 495,000 | BUY | 6 / 10 | 0.00 KM |
| Oswyth Road, London, SE5 | £ 925,000 | BUY | 5 / 10 | 0.06 KM |
| Oswyth Road, Camberwell, SE5 | £ 975,000 | BUY | 7 / 10 | 0.06 KM |
| Shenley Road, London | £ 695,000 | BUY | 5 / 10 | 0.08 KM |
| Shenley Road, London | £ 450,000 | BUY | 7 / 10 | 0.10 KM |
Nearby Properties
| Address | Price | Distance |
|---|---|---|
| 17 Oswyth Road | £ 757,500 | 0.05 KM |
| 18 Oswyth Road | £ 724,000 | 0.05 KM |
| 14 Oswyth Road | £ 685,000 | 0.05 KM |
| 30 Oswyth Road | £ 1,300,000 | 0.05 KM |
| 21 Oswyth Road | £ 925,000 | 0.05 KM |