Hill Close, Bransgore, Christchurch, Dorset, BH23
By Slades Estate Agents
£ 525,000
Reviews
3 out of 5 stars
Slades Estate Agents says ..
A WELL PROPORTIONED AND PLEASANTLY PRESENTED 4 BEDROOM DETACHED FAMILY HOUSE WITH A SOUTHERLY ASPECT REAR GARDEN, ENJOYING A TUCKED AWAY POSITION WITHIN A HIGHLY REGARDED VILLAGE LOCATION WITH EXCELLENT SCHOOL CATCHMENTS.
Property Oracle says ..
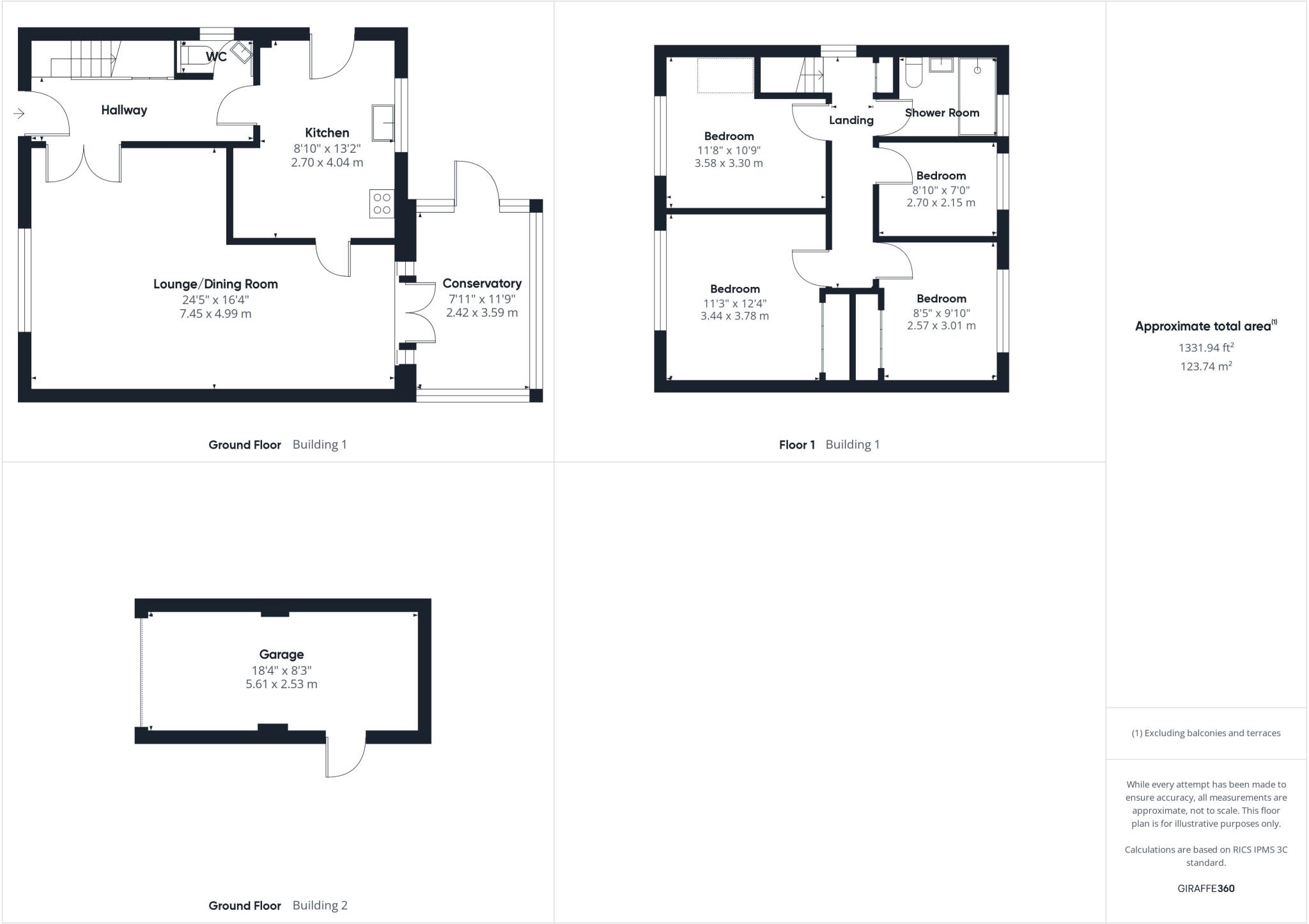
This property is a four-bedroom detached house located in Bransgore, Christchurch, Dorset. The location benefits from being relatively close to several primary schools, with the nearest being approximately 1.5km away. Train stations are also within a reasonable distance, with Hinton Admiral being approximately 4.23km away. The property itself appears to be in good condition based on the provided images. It features a well-maintained garden. The list price of £525,000 is higher than the average price for the area (£394,494), however, it is important to note that the average sqft in the area is significantly lower (922 sqft) compared to this property (1331.93 sqft). Considering the property’s condition, location, and size, the price may be justifiable within the context of the local market, although a detailed comparison with similar properties in the immediate vicinity would be needed to confirm this.
Therefore, we give this property 7 / 10. *Disclaimer: This is our option and does constitute a recommendation or financial advice. Do your own research. *
- Price
- 6
- Condition
- 8
- Location
- 7
- Land
- 7
- Bedrooms
- 4
- Bathrooms
- 1
- Sqft (est)
- 1,331.93
The heatmap indicates the level of crime in the area. The color of the heatmap indicates the crime severity and recency.
Metrics Year-on-Year
- Average area value
- 471,111.00 £Increased by 12.11 %
- Est sale value
- 717,910.27 £Increased by 34.75 %
- Average area rental value
- 1,283.00 £/moDecreased by 19.91 %
- Est letting value
- 1,331.93 £/moUnchanged by 0.00 %
- Est rental Yield
- 3.27 %Decreased by 28.45 %
- Crime Rate
- 19.00 %Unchanged by 0.00 %
Agent Activity
Slades Estate Agents created the listing.
Nearby Schools
| Name | Type | Ofsted | Distance |
|---|---|---|---|
| Bransgore Church Of England Primary School | Academy Converter | 1.50 KM | |
| The Fortune Centre Of Riding Therapy | Special Post 16 Institution | Good | 3.08 KM |
| Sopley Primary School | Community School | Good | 3.24 KM |
| Burton Church Of England Primary School | Voluntary Controlled School | Good | 3.56 KM |
| St Joseph'S Catholic Primary School, Christchurch | Voluntary Aided School | Good | 3.67 KM |
Images
Nearby Streets
| Name | Average Price | Average Sqft | Distance |
|---|---|---|---|
| Benson Close | £ 0 | 0 | 0.00 KM |
Nearby Transport
| Name | NLC | TLC | Distance |
|---|---|---|---|
| Hinton Admiral | 5880 | HNA | 4.23 KM |
| Christchurch | 5879 | CHR | 6.27 KM |
| New Milton | 5881 | NWM | 9.77 KM |
Nearby Listings
| Address | Price | Type | Score | Distance |
|---|---|---|---|---|
| Hill Close, Bransgore, Christchurch, Dorset, BH23 | £ 525,000 | BUY | 7 / 10 | 0.00 KM |
| Burley Road, Bransgore, Christchurch, Dorset, BH23 | £ 545,000 | BUY | 6 / 10 | 0.06 KM |
| Hill Close, Bransgore, Christchurch, Dorset, BH23 | £ 475,000 | BUY | 6 / 10 | 0.06 KM |
| Burley Road, Bransgore, Christchurch, Dorset, BH23 | £ 725,000 | BUY | 7 / 10 | 0.10 KM |
| West Road, Bransgore, Christchurch, Dorset, BH23 | £ 525,000 | BUY | 6 / 10 | 0.18 KM |
Nearby Properties
| Address | Price | Distance |
|---|---|---|
| 17 Hill Close | £ 485,000 | 0.02 KM |
| 10 Hill Close | £ 418,000 | 0.03 KM |
| 8 Hill Close | £ 575,000 | 0.03 KM |
| 12 Hill Close | £ 335,000 | 0.03 KM |
| 3 Hill Close | £ 244,000 | 0.03 KM |