Islwyn Street, Ynysddu, NP11
By Number One Real Estate
£ 160,000
Reviews
2 out of 5 stars
Number One Real Estate says ..
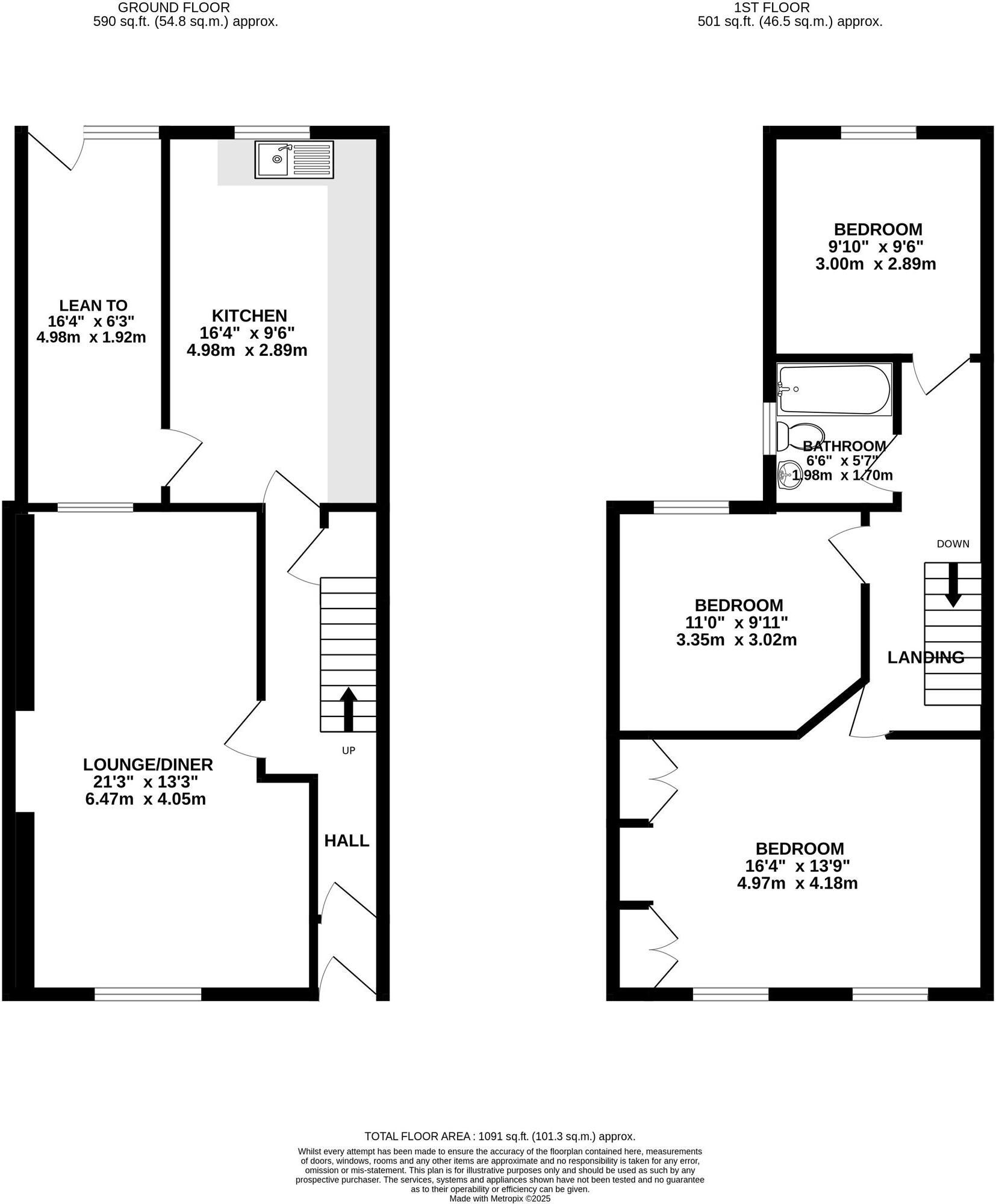
**NO ONWARD CHAIN**MID TERRACE PROPERTY**THREE DOUBLE BEDROOMS**LOUNGE/DINER**LARGE KITCHEN**LEAN TO**FAMILY BATHROOM**FRONT AND REAR GARDEN**PARKING AND GARAGE TO REAR**
Property Oracle says ..
This terraced property in Islwyn Street, Ynysddu, offers three bedrooms and one bathroom. Marketed by Number One Real Estate, the house is listed for £160,000. While the property requires renovation, it presents an opportunity for buyers to customize and modernize to their tastes. The location provides access to local schools and amenities, with transportation links available nearby. The inclusion of a garden and garage adds further value to the property. Considering the price point relative to the area’s average and the potential for improvement, this property could be an attractive investment.
Therefore, we give this property 5 / 10. *Disclaimer: This is our option and does constitute a recommendation or financial advice. Do your own research. *
- Price
- 7
- Condition
- 4
- Location
- 6
- Land
- 6
- Bedrooms
- 3
- Bathrooms
- 1
The heatmap indicates the level of crime in the area. The color of the heatmap indicates the crime severity and recency.
Metrics Year-on-Year
- Average area value
- 219,115.00 £Increased by 18.08 %
- Average area rental value
- 1,500.00 £/moIncreased by 50.30 %
- Est rental Yield
- 8.21 %Increased by 27.29 %
- Crime Rate
- 152.00 %Unchanged by 0.00 %
Agent Activity
Number One Real Estate created the listing.
Nearby Schools
| Name | Type | Ofsted | Distance |
|---|---|---|---|
| Cwmfelinfach Primary School | Welsh Establishment | 0.39 KM | |
| Ynysddu Primary School | Welsh Establishment | 1.13 KM | |
| Graig-Y-Rhacca Primary And Nursery Community School | Welsh Establishment | 2.86 KM | |
| Tyn - Y - Wern Primary | Welsh Establishment | 3.04 KM | |
| Bedwas High School | Welsh Establishment | 3.33 KM |
Images
Nearby Streets
| Name | Average Price | Average Sqft | Distance |
|---|---|---|---|
| Mill Street | £ 147,500 | 0 | 0.00 KM |
| Greenmeadow Road | £ 0 | 0 | 0.00 KM |
| Mount Pleasant | £ 0 | 0 | 0.00 KM |
| John Street | £ 0 | 0 | 0.00 KM |
| The Gardens | £ 0 | 0 | 0.00 KM |
Nearby Transport
| Name | NLC | TLC | Distance |
|---|---|---|---|
| Crosskeys | 9902 | CKY | 5.69 KM |
| Hengoed | 4028 | HNG | 6.13 KM |
| Llanbradach | 4018 | LNB | 6.34 KM |
| Newbridge | 9919 | NBE | 6.59 KM |
| Caerphilly | 3812 | CPH | 6.83 KM |
Nearby Listings
| Address | Price | Type | Score | Distance |
|---|---|---|---|---|
| Islwyn Street, Ynysddu, NP11 | £ 160,000 | BUY | 5 / 10 | 0.00 KM |
| Islwyn Street, Ynysddu, NP11 | £ 170,000 | BUY | 6 / 10 | 0.01 KM |
| Bridge View, Cwmfelinfach, | £ 175,000 | BUY | 6 / 10 | 0.07 KM |
| Melin Street, Ynysddu, NP11 | £ 199,000 | BUY | 7 / 10 | 0.10 KM |
| Stanley Street, Ynysddu, NP11 | £ 180,000 | BUY | 7 / 10 | 0.10 KM |
Nearby Properties
| Address | Price | Distance |
|---|---|---|
| 11 New Road | £ 119,000 | 0.09 KM |
| 7 New Road | £ 155,000 | 0.09 KM |
| 2 New Road | £ 110,000 | 0.09 KM |
| 13 New Road | £ 95,000 | 0.09 KM |
| 10 New Road | £ 155,000 | 0.09 KM |