Pearsons says ..
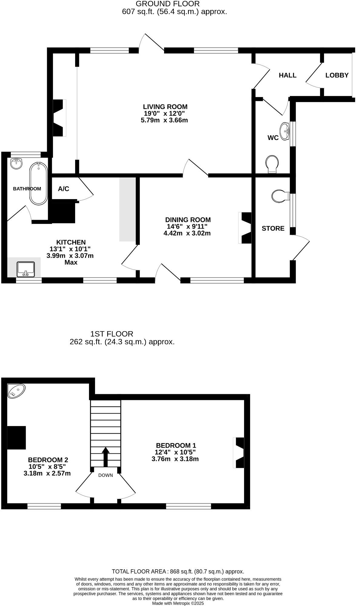
*FOR SALE BY AUCTION* on Wednesday 10th December 2025 at Silverlake Stadium, Eastleigh Football Club, Stoneham Lane, Eastleigh, SO50 9HT at 11:00am. This detached 2 bedroom cottage is in need of complete modernisation but has scope for improvement (subject to planning). The property is situated o...
Property Oracle says ..
This cottage, located in Hordle, New Forest, offers a blend of potential and challenges. Its location is advantageous, with proximity to schools and transportation. The property features a generously sized garden, adding to its appeal. However, the interior condition requires extensive renovation, as evidenced by the dated decor and visible damage. While the price per square foot is slightly above the local average, the land and potential for value addition make it a worthwhile consideration for those willing to undertake a renovation project. The property retains a traditional charm, making it suitable for buyers who appreciate character.
Therefore, we give this property 6 / 10. *Disclaimer: This is our option and does constitute a recommendation or financial advice. Do your own research. *
- Price
- 7
- Condition
- 3
- Location
- 7
- Land
- 8
- Bedrooms
- 2
- Bathrooms
- 1
- Sqft (est)
- 722.00
The heatmap indicates the level of crime in the area. The color of the heatmap indicates the crime severity and recency.
Metrics Year-on-Year
- Average area value
- 584,000.00 £Increased by 30.99 %
- Est sale value
- 294,576.00 £Increased by 2.26 %
- Average area rental value
- 3,500.00 £/moIncreased by 145.61 %
- Est letting value
- 1,444.00 £/moIncreased by 100.00 %
- Est rental Yield
- 7.19 %Increased by 87.24 %
- Crime Rate
- 30.00 %Unchanged by 0.00 %
Agent Activity
Pearsons created the listing.
Nearby Schools
| Name | Type | Ofsted | Distance |
|---|---|---|---|
| Ashley Infant School | Community School | Good | 0.27 KM |
| Ashley Junior School | Foundation School | Good | 0.69 KM |
| Hordle Cofe (Va) Primary School | Voluntary Aided School | Outstanding | 2.48 KM |
| Ballard School | Other Independent School | 2.71 KM | |
| Durlston Court School | Other Independent School | 2.77 KM |
Images
Nearby Streets
| Name | Average Price | Average Sqft | Distance |
|---|---|---|---|
| Springfield Gardens | £ 362,500 | 0 | 0.00 KM |
| The Parade | £ 0 | 0 | 0.00 KM |
| Caird Avenue | £ 477,500 | 0 | 0.00 KM |
| Lavender Gardens | £ 560,000 | 0 | 0.00 KM |
| Hermitage Close | £ 1,000,000 | 0 | 0.00 KM |
Nearby Transport
| Name | NLC | TLC | Distance |
|---|---|---|---|
| New Milton | 5881 | NWM | 2.50 KM |
| Sway | 5884 | SWY | 4.32 KM |
| Hinton Admiral | 5880 | HNA | 8.73 KM |
| Brockenhurst | 5886 | BCU | 9.68 KM |
Nearby Listings
| Address | Price | Type | Score | Distance |
|---|---|---|---|---|
| Hare Lane, New Milton | £ 315,000 | BUY | 6 / 10 | 0.00 KM |
| Andrew Lane, New Milton, Hampshire, BH25 | £ 395,000 | BUY | 7 / 10 | 0.09 KM |
| Lower Ashley Road, Ashley, New Milton | £ 425,000 | BUY | Unknown | 0.12 KM |
| Andrew Lane, Ashley, Hampshire, BH25 | £ 425,000 | BUY | 6 / 10 | 0.13 KM |
| Ash Tree Close, Ashley, New Milton, Hampshire, BH25 | £ 450,000 | BUY | 6 / 10 | 0.16 KM |
Nearby Properties
| Address | Price | Distance |
|---|---|---|
| 47 Thornham Road | £ 187,500 | 0.17 KM |
| 101 Thornham Road | £ 150,000 | 0.17 KM |
| 43 Thornham Road | £ 190,000 | 0.17 KM |
| 14 Thornham Road | £ 294,500 | 0.17 KM |
| 23 Thornham Road | £ 185,000 | 0.17 KM |