Chesters says ..
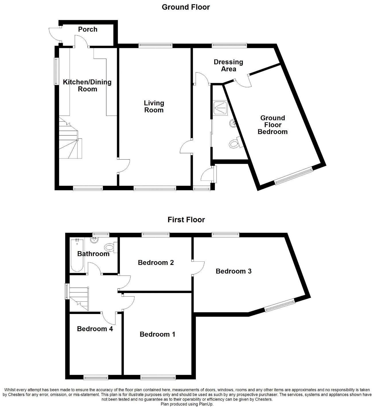
Chesters are delighted to offer for sale this extended detached property, located on a small cul-de-sac close to the village centre. Requires general modernisation throughout, and offers huge potential. Offered with no chain delay.
Property Oracle says ..
This four-bedroom, two-bathroom property situated on Norwood Close in Adlington, Chorley offers a blend of convenient location and potential. The exterior is presentable, showing a well-maintained brick façade. The surrounding area boasts good primary schools and easy access to the railway station and the M61 motorway. This makes it attractive for families and commuters alike.
However, the interior requires modernisation. The kitchen and bathrooms are visibly dated, and several rooms display signs of wear that would benefit from refurbishment. The overall condition is not poor, but it could be improved. The garden offers some outdoor space, although it does not appear to be very spacious.
In summary, the property presents a mixed bag. The location and potential are strong selling points, but potential buyers should factor in the cost of modernisation. The listing price, while reflecting the market value of similar properties in the area, may be slightly high considering the needed updates. Therefore, a thorough survey is essential before a purchase to assess all costs accurately.
Therefore, we give this property 5 / 10. *Disclaimer: This is our option and does constitute a recommendation or financial advice. Do your own research. *
- Price
- 7
- Condition
- 5
- Location
- 7
- Land
- 4
- Bedrooms
- 4
- Bathrooms
- 2
- Sqft (est)
- 1,200.00
The heatmap indicates the level of crime in the area. The color of the heatmap indicates the crime severity and recency.
Metrics Year-on-Year
- Average area value
- 429,985.00 £Increased by 38.99 %
- Est sale value
- 375,600.00 £Increased by 43.58 %
- Average area rental value
- 1,200.00 £/moIncreased by 23.33 %
- Est letting value
- 0.00 £/mo
- Est rental Yield
- 3.35 %Decreased by 11.14 %
- Crime Rate
- 30.00 %Unchanged by 0.00 %
Agent Activity
Chesters created the listing.
Nearby Schools
| Name | Type | Ofsted | Distance |
|---|---|---|---|
| Adlington St Paul'S Church Of England Primary School | Academy Sponsor Led | 0.29 KM | |
| Anderton Primary School | Community School | Good | 0.39 KM |
| Library Children'S Centre | Children's Centre | 0.46 KM | |
| St Joseph'S Catholic Primary School, Anderton | Voluntary Aided School | Good | 0.88 KM |
| Adlington Primary School | Community School | Good | 1.11 KM |
Images
Nearby Streets
| Name | Average Price | Average Sqft | Distance |
|---|---|---|---|
| Norwood Close | £ 320,000 | 0 | 0.00 KM |
| Lancaster Place | £ 0 | 0 | 0.00 KM |
| Belvedere Road | £ 0 | 0 | 0.00 KM |
| Grove Avenue | £ 0 | 0 | 0.00 KM |
| Melling Close | £ 325,000 | 0 | 0.00 KM |
Nearby Transport
| Name | NLC | TLC | Distance |
|---|---|---|---|
| Adlington (Lancashire) | 2641 | ADL | 0.65 KM |
| Blackrod | 2732 | BLK | 4.55 KM |
| Chorley | 2745 | CRL | 4.78 KM |
| Horwich Parkway | 8720 | HWI | 8.09 KM |
| Hindley | 2398 | HIN | 8.92 KM |
Nearby Listings
| Address | Price | Type | Score | Distance |
|---|---|---|---|---|
| Norwood Close, Adlington, PR6 | £ 320,000 | BUY | 5 / 10 | 0.00 KM |
| Norwood Close, Adlington, Chorley, Lancashire, PR6 | £ 270,000 | BUY | Unknown | 0.03 KM |
| Mount Pleasant, Adlington, Chorley, Lancashire, PR6 | £ 210,000 | BUY | 7 / 10 | 0.10 KM |
| Greenfield Road, Adlington | £ 84,950 | BUY | 5 / 10 | 0.10 KM |
| Broad Oak Close, Adlington, Lancashire, PR6 | £ 240,000 | BUY | 7 / 10 | 0.13 KM |
Nearby Properties
| Address | Price | Distance |
|---|---|---|
| 27 Greenfield Road | £ 220,000 | 0.10 KM |
| 40 Greenfield Road | £ 150,000 | 0.10 KM |
| 74 Chorley Road | £ 115,000 | 0.10 KM |
| 86 Chorley Road | £ 90,000 | 0.10 KM |
| 39 Greenfield Road | £ 95,000 | 0.10 KM |