Lagham Road, South Godstone, RH9
By Move Revolution
£ 385,000
Reviews
3 out of 5 stars
Move Revolution says ..
Guide price £385,000-£400,000. Charming Victorian 3-bed family home. Period features with modern convenience. Cosy living room, open plan kitchen/diner, offers a mix of elegance and functionality. Sought-after neighbourhood near school and mainline station.
Property Oracle says ..
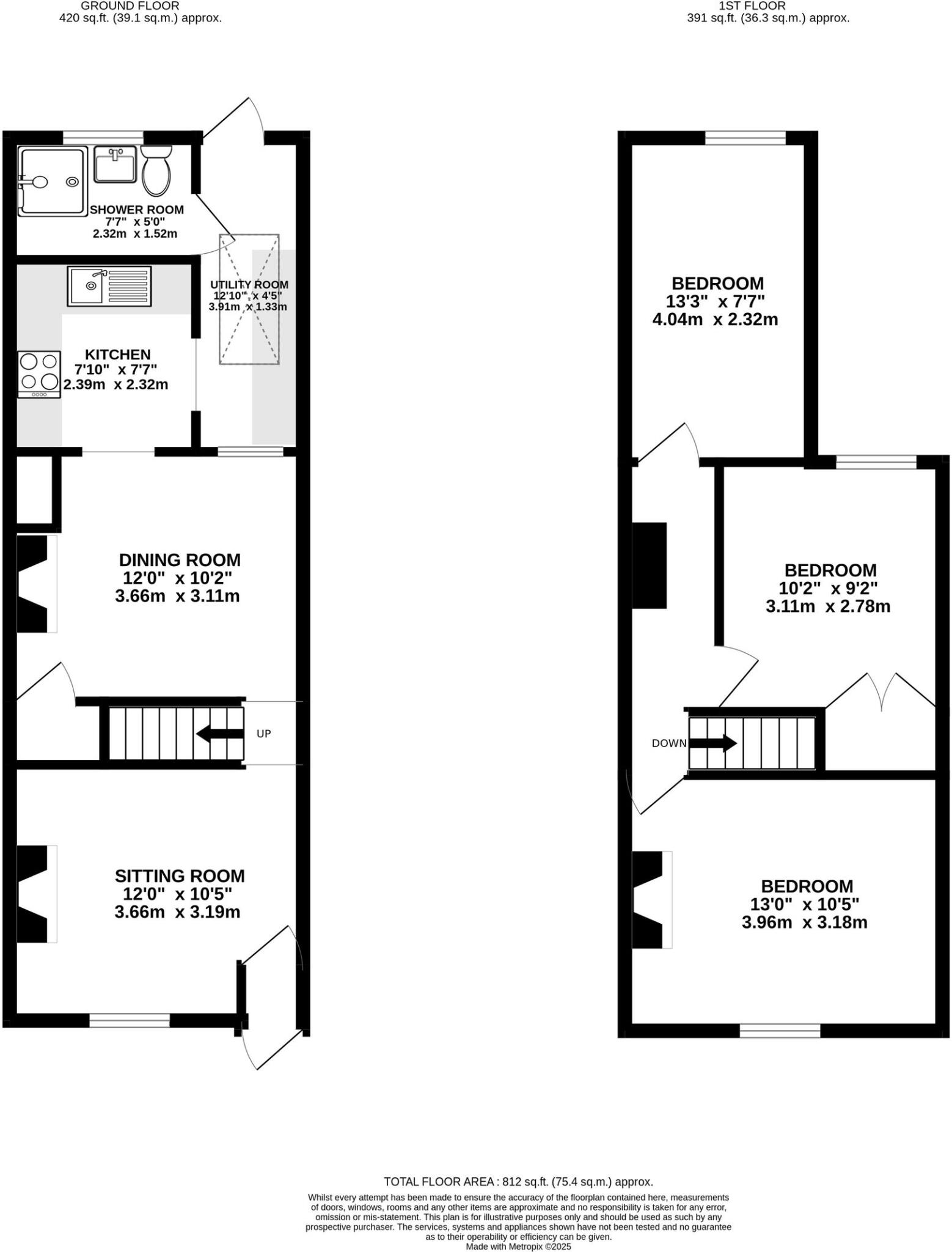
This is a three-bedroom terraced house on Lagham Road in South Godstone. The property benefits from its proximity to local amenities, including Godstone station and St Stephen’s Cofe Primary School. The house appears to be in good condition, with a modern kitchen and bathroom. The property also features a garden, providing outdoor space. The asking price of £385,000 seems reasonable given the location, condition, and size of the property.
Therefore, we give this property 7 / 10. *Disclaimer: This is our option and does constitute a recommendation or financial advice. Do your own research. *
- Price
- 8
- Condition
- 7
- Location
- 7
- Land
- 6
- Bedrooms
- 3
- Bathrooms
- 1
- Sqft (est)
- 812.00
The heatmap indicates the level of crime in the area. The color of the heatmap indicates the crime severity and recency.
Metrics Year-on-Year
- Average area value
- 535,833.00 £Decreased by 10.41 %
- Est sale value
- 568,400.00 £Increased by 34.87 %
- Average area rental value
- 1,875.00 £/moDecreased by 13.31 %
- Est letting value
- 1,624.00 £/moIncreased by 100.00 %
- Est rental Yield
- 4.20 %Decreased by 3.23 %
- Crime Rate
- 58.00 %Unchanged by 0.00 %
Agent Activity
Move Revolution created the listing.
Nearby Schools
| Name | Type | Ofsted | Distance |
|---|---|---|---|
| St Stephen'S Cofe Primary School | Academy Converter | 0.25 KM | |
| St Peter'S Cofe Infant School | Voluntary Aided School | Outstanding | 2.73 KM |
| Godstone Primary And Nursery School | Foundation School | Good | 3.96 KM |
| Orpheus Centre | Special Post 16 Institution | Good | 5.42 KM |
| Bletchingley Village Primary School | Academy Converter | Good | 5.70 KM |
Images
Nearby Streets
| Name | Average Price | Average Sqft | Distance |
|---|---|---|---|
| Brookside | £ 0 | 0 | 0.00 KM |
Nearby Transport
| Name | NLC | TLC | Distance |
|---|---|---|---|
| Godstone | 5474 | GDN | 0.42 KM |
| Hurst Green | 5463 | HUR | 6.26 KM |
| Oxted | 5377 | OXT | 6.34 KM |
| Lingfield | 5369 | LFD | 6.38 KM |
| Caterham | 5351 | CAT | 7.92 KM |
Nearby Listings
| Address | Price | Type | Score | Distance |
|---|---|---|---|---|
| Lagham Road, South Godstone, RH9 | £ 375,000 | BUY | 7 / 10 | 0.00 KM |
| Lagham Road, South Godstone, RH9 | £ 385,000 | BUY | 7 / 10 | 0.00 KM |
| Lagham Road, South Godstone, RH9 | £ 425,000 | BUY | 7 / 10 | 0.01 KM |
| Lagham Road, South Godstone, RH9 | £ 450,000 | BUY | 7 / 10 | 0.01 KM |
| Lagham Road, Godstone, RH9 | £ 575,000 | BUY | 7 / 10 | 0.04 KM |
Nearby Properties
| Address | Price | Distance |
|---|---|---|
| 56 Lagham Road | £ 325,000 | 0.05 KM |
| 62 Lagham Road | £ 245,000 | 0.05 KM |
| 58 Lagham Road | £ 310,000 | 0.05 KM |
| 52 Lagham Road | £ 335,000 | 0.05 KM |
| 16 Lagham Road | £ 370,000 | 0.05 KM |