Yopa says ..
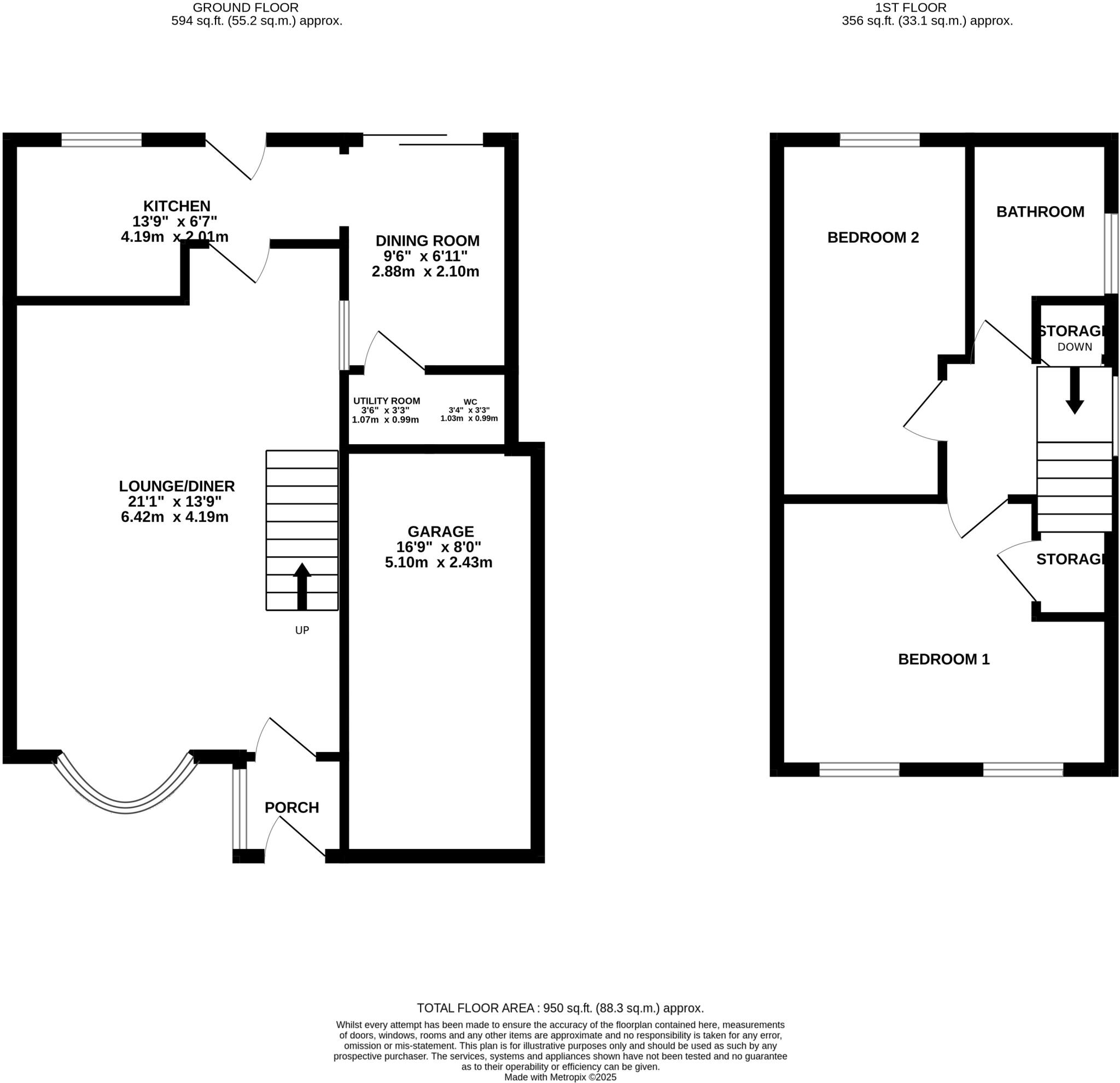
YOPA is proud to present this newly renovated two-bedroom, link-detached property in a quiet & sought-after cul-de-sac in Mount Pleasant. With a drive, Electric roller shutter garage door, extended, New bathroom, large garden, new kitchen & no chain. Enquire early! All offers & interest are invited.
Property Oracle says ..
Therefore, we give this property 7 / 10. *Disclaimer: This is our option and does constitute a recommendation or financial advice. Do your own research. *
- Price
- 8
- Condition
- 8
- Location
- 7
- Land
- 7
- Bedrooms
- 2
- Bathrooms
- 1
- Sqft (est)
- 904.99
The heatmap indicates the level of crime in the area. The color of the heatmap indicates the crime severity and recency.
Metrics Year-on-Year
- Average area value
- 366,818.00 £Increased by 13.90 %
- Est sale value
- 315,841.51 £Increased by 9.06 %
- Average area rental value
- 1,325.00 £/moIncreased by 34.25 %
- Est letting value
- 904.99 £/mo
- Est rental Yield
- 4.33 %Increased by 17.66 %
- Crime Rate
- 4.00 %Unchanged by 0.00 %
from 322,045.00 £
from 289,596.80 £
from 987.00 £/mo
from 0.00 £/mo
from 3.68 %
from 4.00 %
Agent Activity
Yopa created the listing.
Nearby Schools
| Name | Type | Ofsted | Distance |
|---|---|---|---|
| Mount Pleasant Primary | Welsh Establishment | 0.37 KM | |
| Rogerstone Primary School | Welsh Establishment | 1.22 KM | |
| High Cross Primary | Welsh Establishment | 1.92 KM | |
| Risca Community Comprehensive School | Welsh Establishment | 2.21 KM | |
| Bassaleg School | Welsh Establishment | 2.49 KM |
Images
Nearby Streets
| Name | Average Price | Average Sqft | Distance |
|---|---|---|---|
| Alwyn Close | £ 0 | 0 | 0.00 KM |
| Ruskin Avenue | £ 225,000 | 0 | 0.00 KM |
| Nash Close | £ 0 | 0 | 0.00 KM |
| Telford Close | £ 0 | 0 | 0.00 KM |
| Birch Grove | £ 230,000 | 0 | 0.00 KM |
Nearby Transport
| Name | NLC | TLC | Distance |
|---|---|---|---|
| Rogerstone | 9921 | ROR | 1.61 KM |
| Pye Corner | 1663 | PYE | 2.54 KM |
| Risca And Pontymister | 9920 | RCA | 4.53 KM |
| Newport (South Wales) | 3674 | NWP | 5.78 KM |
| Cwmbran | 3738 | CWM | 7.70 KM |
Nearby Listings
| Address | Price | Type | Score | Distance |
|---|---|---|---|---|
| Kent Close, Rogerstone, Newport, NP10 | £ 280,000 | BUY | 6 / 10 | 0.00 KM |
| Kent Close, Newport, NP10 | £ 300,000 | BUY | 7 / 10 | 0.00 KM |
| Kent Close, Newport, NP10 | £ 260,000 | BUY | 6 / 10 | 0.00 KM |
| Soane Close, Rogerstone, Newport | £ 90,000 | BUY | 6 / 10 | 0.04 KM |
| Ruskin Avenue, Newport | £ 480,000 | BUY | 6 / 10 | 0.25 KM |
Nearby Properties
| Address | Price | Distance |
|---|---|---|
| 18 Kent Close | £ 251,000 | 0.01 KM |
| 21 Kent Close | £ 295,000 | 0.01 KM |
| 5 Kent Close | £ 46,950 | 0.01 KM |
| 6 Kent Close | £ 60,000 | 0.01 KM |
| 8 Kent Close | £ 29,000 | 0.01 KM |