Thornlaw Road, West Norwood
By Oaks Estate Agents
£ 600,000
Reviews
4 out of 5 stars
Oaks Estate Agents says ..
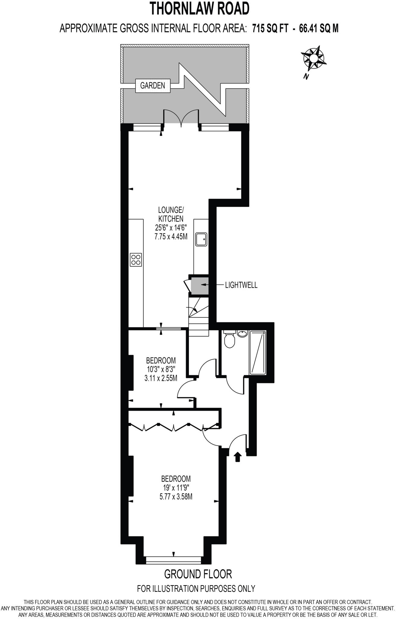
Oaks Estate Agents are delighted to present this exceptional ground-floor period conversion flat, complete with its own private garden.
Property Oracle says ..
This ground floor period conversion flat is located in West Norwood, a suburb of Lambeth, London. The property boasts a private garden, a desirable feature in a densely populated area like London. Based on the images, the property appears to be in excellent condition, having undergone a recent, high-quality renovation. The open-plan kitchen/living area is modern and well-designed, and the garden is well-maintained. The location is convenient, with West Norwood station within walking distance, providing easy access to central London. While the average price per square foot in the area is £751, this property is listed at a price that is significantly below the average price for the area. This suggests that the asking price could represent good value for money, especially considering the property’s condition and the inclusion of a private garden.
Therefore, we give this property 8 / 10. *Disclaimer: This is our option and does constitute a recommendation or financial advice. Do your own research. *
- Price
- 7
- Condition
- 9
- Location
- 8
- Land
- 10
- Bedrooms
- 2
- Bathrooms
- 1
- Sqft (est)
- 715.00
The heatmap indicates the level of crime in the area. The color of the heatmap indicates the crime severity and recency.
Metrics Year-on-Year
- Average area value
- 696,167.00 £Decreased by 17.95 %
- Est sale value
- 445,445.00 £Decreased by 14.42 %
- Average area rental value
- 2,133.00 £/moDecreased by 1.25 %
- Est letting value
- 715.00 £/moUnchanged by 0.00 %
- Est rental Yield
- 3.68 %Increased by 20.26 %
- Crime Rate
- 5.00 %Unchanged by 0.00 %
Agent Activity
Oaks Estate Agents created the listing.
Nearby Schools
| Name | Type | Ofsted | Distance |
|---|---|---|---|
| Crown Lane Primary School | Community School | Good | 0.50 KM |
| Crown Lane Primary School & Children'S Centre | Children's Centre | 0.52 KM | |
| Julian'S School | Foundation School | Good | 0.57 KM |
| Silburn Reid | Miscellaneous | 0.60 KM | |
| St Joseph'S College | Academy Converter | Good | 0.87 KM |
Images
Nearby Streets
| Name | Average Price | Average Sqft | Distance |
|---|---|---|---|
| Tredwell Road | £ 0 | 0 | 0.00 KM |
| Yeomans Close | £ 0 | 0 | 0.00 KM |
| Eden Road | £ 0 | 0 | 0.00 KM |
| Arnull's Road | £ 685,000 | 0 | 0.00 KM |
| Auckland Hill | £ 0 | 0 | 0.00 KM |
Nearby Transport
| Name | NLC | TLC | Distance |
|---|---|---|---|
| West Norwood | 5438 | WNW | 0.76 KM |
| Tulse Hill | 5390 | TUH | 1.40 KM |
| Streatham Hill | 5435 | SRH | 2.25 KM |
| Norbury | 5428 | NRB | 2.30 KM |
| Streatham | 5383 | STE | 2.44 KM |
Nearby Listings
| Address | Price | Type | Score | Distance |
|---|---|---|---|---|
| Thornlaw Road, West Norwood | £ 600,000 | BUY | 8 / 10 | 0.00 KM |
| Thornlaw Road, West Norwood, London, SE27 | £ 550,000 | BUY | 8 / 10 | 0.00 KM |
| Casewick Road, West Norwood, London, SE27 | £ 600,000 | BUY | 7 / 10 | 0.07 KM |
| Thornlaw Road, West Norwood, London, SE27 | £ 450,000 | BUY | 5 / 10 | 0.07 KM |
| Casewick Road, West Norwood, SE27 | £ 475,000 | BUY | 7 / 10 | 0.08 KM |
Nearby Properties
| Address | Price | Distance |
|---|---|---|
| 160 Casewick Road | £ 542,000 | 0.08 KM |
| 114 Casewick Road | £ 471,000 | 0.08 KM |
| 146 Casewick Road | £ 232,000 | 0.08 KM |
| 176 Casewick Road | £ 545,000 | 0.08 KM |
| 116 Casewick Road | £ 520,000 | 0.08 KM |