Mount Park Avenue, Harrow On the Hill
WI

Mount Park Avenue, Harrow On the Hill

By Wilson Hawkins

£ 1,995,000

Reviews

4 out of 5 stars

Wilson Hawkins says ..

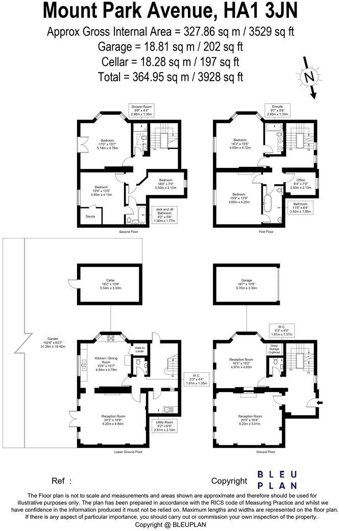
OPEN HOUSE EVENT- SATURDAY 3rd May 2025 between 11am- 12(noon)- (please call the office for your individual appointment . A beautiful locally Listed Arts & Crafts Residence with 3529 sq ft of accommodation situated near the summit of 'The Hill' and designed by the renowned architect, Charles For...

Property Oracle says ..

This property is a 6 bedroom, 4 bathroom semi-detached house located on Mount Park Avenue, Harrow on the Hill. The property benefits from a large garden and is conveniently located near several schools, including St Dominic’s Sixth Form College (Outstanding Ofsted rating) and Roxeth Primary School (Good Ofsted rating). Transport links are also good, with Harrow-on-the-Hill tube station within reasonable distance. The house itself is a period property, which appears to be well-maintained and in good condition. The property is listed at £1,995,000. While this is significantly higher than the average house price in the area (£663,070), the larger plot size (3,928.29 sqft) and the number of bedrooms and bathrooms, combined with the desirable location, could justify the higher price tag. More information on the condition of the property and comparable properties would assist in making a more informed assessment of the value.

Therefore, we give this property 8 / 10. *Disclaimer: This is our option and does constitute a recommendation or financial advice. Do your own research. *

Price
7
Condition
8
Location
9
Land
9
Bedrooms
6
Bathrooms
4
Sqft (est)
399.23
Lot (est)
3,928.29

The heatmap indicates the level of crime in the area. The color of the heatmap indicates the crime severity and recency.

Metrics Year-on-Year

Average area value
619,994.00 £
Increased by 17.76 %
from 526,507.00 £
Est sale value
254,309.51 £
Increased by 20.42 %
from 211,192.67 £
Average area rental value
2,235.00 £/mo
Increased by 14.67 %
from 1,949.00 £/mo
Est letting value
798.46 £/mo
Increased by 100.00 %
from 399.23 £/mo
Est rental Yield
4.33 %
Decreased by 2.48 %
from 4.44 %
Crime Rate
1.00 %
Unchanged by 0.00 %
from 1.00 %

Agent Activity

  • Wilson Hawkins created the listing.

Nearby Schools

NameTypeOfstedDistance
St Dominic'S Sixth Form CollegeFurther EducationOutstanding0.04 KM
Roxeth Primary SchoolCommunity SchoolGood0.38 KM
Orley Farm SchoolOther Independent School0.52 KM
The John Lyon SchoolOther Independent School0.55 KM
Roxeth Mead SchoolOther Independent SchoolGood0.55 KM

Images

Holm Oak, Mount Park Avenue - ixumqUFWfpjnpaDx5YYZ Holm Oak, Mount Park Avenue - BGnCsjVrvHnEXAW0LO0i Holm Oak, Mount Park Avenue - 7fJ29breBDtH2I1UuDPn Holm Oak, Mount Park Avenue - EqrzkwpqDiDoMEK71POC Revised stair photo holm oak.png Holm Oak, Mount Park Avenue - yby8q3RfAISLigQsGbaK Holm Oak, Mount Park Avenue - yCQOd9gOnP02hnUf5Qo5 Holm Oak, Mount Park Avenue - bqunq089o25cWh6sQurR Holm Oak, Mount Park Avenue - TqKEjs5EF5Av2bAB8eff Holm Oak, Mount Park Avenue - 8uoSi0e66y5r6dCgxSl7 Holm Oak, Mount Park Avenue - ACABQhKCWZwR339KuWDL Holm Oak, Mount Park Avenue - MG8tMuR1TTs8nrvPMjxX Holm Oak, Mount Park Avenue - bP98c7BeEA7keicYPG1j Holm Oak, Mount Park Avenue - Dqkbt10SFFI3eGDzzyVF Holm Oak, Mount Park Avenue - hbMvnvzpUxRkd2ctddwI Holm Oak, Mount Park Avenue - q2eWaWt8cUztK1cBawjD Holm Oak, Mount Park Avenue - pCp8lOvddposTb7H9aFl Holm Oak, Mount Park Avenue - ewPNU68KP1oPSw4qzkgo Holm Oak, Mount Park Avenue - dV1wi7smbry1tNuYdLEw Holm Oak, Mount Park Avenue - lKGgGSvp68s6cMIRGLEJ Holm Oak, Mount Park Avenue - lWGiuRcHoFjAQNX7s9H1 Holm Oak, Mount Park Avenue - oF9FQhFrTbHgaT0NSV3S Holm Oak, Mount Park Avenue - p0Fkegm6r6AjeDtIyPaY Holm Oak, Mount Park Avenue - s9EP8UGxTMy2dgf8H84Y Holm Oak, Mount Park Avenue - SnsJH7VUEUbohl0TEyQO Holm Oak, Mount Park Avenue - JOm2fglPpY7LKhPfUAjt Holm Oak, Mount Park Avenue - V1z4I84UhAw27SS51phh Holm Oak, Mount Park Avenue - front shot.jpg Holm Oak, Mount Park Avenue - xoD1BvDt6uqQWiehmOKL Holm Oak, Mount Park Avenue - xYycLTjC2fe0i9Gcytnv Holm Oak, Mount Park Avenue - MG8tMuR1TTs8nrvPMjxX Holm Oak, Mount Park Avenue - WfO90CYeDbccrIjDJtYr

Nearby Streets

NameAverage PriceAverage SqftDistance
Footpath 81 £ 000.00 KM
Bessborough Road £ 000.00 KM
Sackville Close £ 000.00 KM
Copperfields £ 000.00 KM
Pool Road £ 320,00000.00 KM

Nearby Transport

NameNLCTLCDistance
Sudbury Hill Harrow1484SDH1.12 KM
Harrow-On-The-Hill598HOH1.47 KM
Northolt Park1478NLT2.22 KM
Greenford3136GFD2.75 KM
Harrow And Wealdstone1397HRW2.94 KM

Nearby Listings

AddressPriceTypeScoreDistance
Mount Park Avenue, Harrow On the Hill £ 1,995,000BUY8 / 100.00 KM
Mount Park Road, Harrow on the Hill £ 1,395,950BUYUnknown0.06 KM
Mount Park Avenue, Harrow on the Hill, Harrow On The Hill, HA1 £ 1,995,000BUY8 / 100.07 KM
Langton House, Harrow £ 450,000BUY6 / 100.09 KM
Cottage Close, Harrow £ 475,000BUY6 / 100.09 KM

Nearby Properties

AddressPriceDistance
4 Elmfield Close £ 145,0000.09 KM
6 Elmfield Close £ 158,0000.09 KM
17 Elmfield Close £ 558,0000.09 KM
2 Elmfield Close £ 575,0000.09 KM
19 Elmfield Close £ 565,0000.09 KM