Hodders says ..
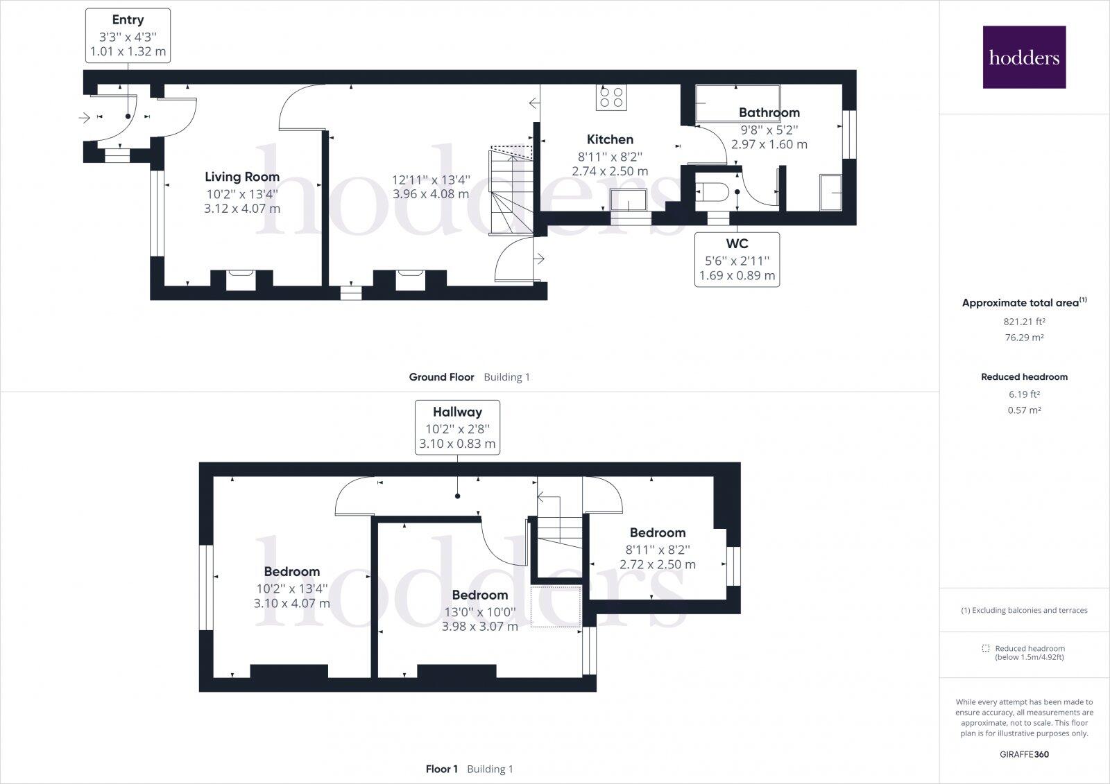
Located within easy reach of Chertsey Meads is this three-bedroom semi-detached cottage boasting off street parking to the front. The ground floor accommodation consists of a front facing reception room with wood burner, a further reception room with door onto the garden, kitchen with a range of ...
Property Oracle says ..
This is a three-bedroom semi-detached house in Chertsey Riverside. The property is in a good location, close to schools and transport links. However, the property requires some modernisation, particularly in the kitchen and bathroom. The property benefits from a good-sized garden. The price is slightly above the average for the area, considering the condition of the property.
Therefore, we give this property 6 / 10. *Disclaimer: This is our option and does constitute a recommendation or financial advice. Do your own research. *
- Price
- 6
- Condition
- 5
- Location
- 7
- Land
- 7
- Bedrooms
- 3
- Bathrooms
- 1
The heatmap indicates the level of crime in the area. The color of the heatmap indicates the crime severity and recency.
Metrics Year-on-Year
- Average area value
- 411,990.00 £Increased by 0.67 %
- Average area rental value
- 1,703.00 £/moIncreased by 10.80 %
- Est rental Yield
- 4.96 %Increased by 9.98 %
- Crime Rate
- 10.00 %Unchanged by 0.00 %
Agent Activity
Hodders created the listing.
Nearby Schools
| Name | Type | Ofsted | Distance |
|---|---|---|---|
| Stepgates Community School | Community School | Good | 0.49 KM |
| Chertsey High School | Free Schools | 0.56 KM | |
| Philip Southcote School | Community Special School | Good | 0.75 KM |
| St Anne'S Catholic Primary School | Academy Converter | Good | 0.83 KM |
| St George'S College Weybridge | Other Independent School | 1.97 KM |
Images
Nearby Streets
| Name | Average Price | Average Sqft | Distance |
|---|---|---|---|
| Foxglove Close | £ 474,975 | 0 | 0.00 KM |
| Ford Road | £ 275,000 | 0 | 0.00 KM |
| Ford Road | £ 0 | 0 | 0.00 KM |
| Chertsey Bridge | £ 0 | 0 | 0.00 KM |
| Chertsey Bridge Road | £ 0 | 0 | 0.00 KM |
Nearby Transport
| Name | NLC | TLC | Distance |
|---|---|---|---|
| Chertsey | 5553 | CHY | 1.76 KM |
| Addlestone | 5550 | ASN | 1.93 KM |
| Byfleet And New Haw | 5689 | BFN | 4.45 KM |
| Weybridge | 5577 | WYB | 4.91 KM |
| Staines | 5670 | SNS | 5.07 KM |
Nearby Listings
| Address | Price | Type | Score | Distance |
|---|---|---|---|---|
| Chertsey, Surrey, KT16 | £ 439,950 | BUY | 6 / 10 | 0.00 KM |
| Mead Lane, Chertsey, KT16 | £ 550,000 | BUY | 6 / 10 | 0.01 KM |
| Mead Lane, Chertsey, Surrey, KT16 | £ 430,000 | BUY | Unknown | 0.01 KM |
| lakeside Park, Chertsey | £ 100,000 | BUY | 6 / 10 | 0.04 KM |
| Abbey Road, Chertsey, Surrey, KT16 | £ 500,000 | BUY | 7 / 10 | 0.07 KM |
Nearby Properties
| Address | Price | Distance |
|---|---|---|
| 23 Mead Lane | £ 224,950 | 0.01 KM |
| 35 Mead Lane | £ 440,000 | 0.01 KM |
| 14 Mead Lane | £ 441,000 | 0.01 KM |
| 17 Mead Lane | £ 414,950 | 0.01 KM |
| 12 Mead Lane | £ 220,000 | 0.01 KM |