Noble Residential says ..
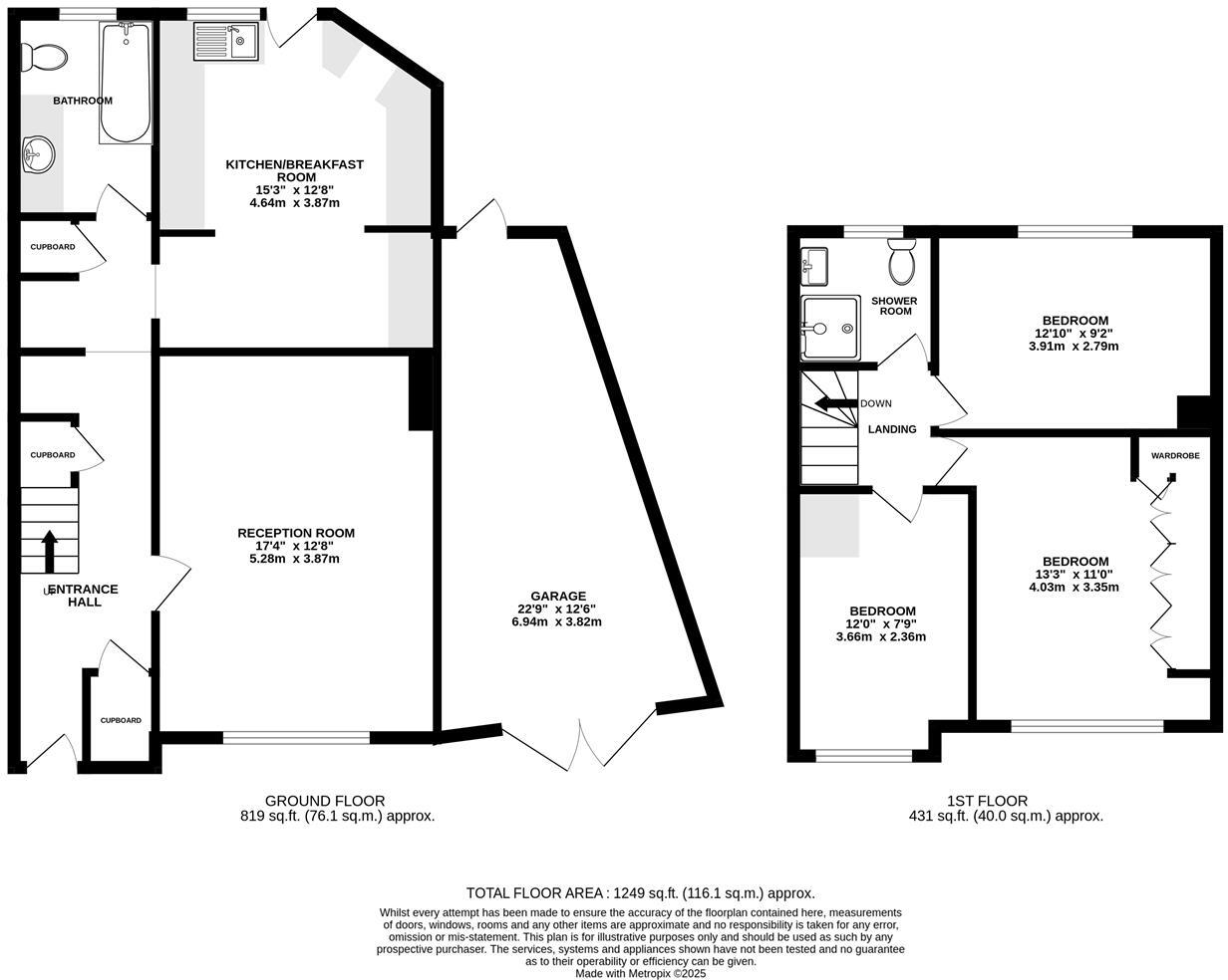
Offered for sale with no onward chain is this three bedroom semi detached home, the accommodation includes entrance hall, lounge, kitchen/breakfast room ground floor bathroom, three bedrooms and a first floor shower room. Externally there is a private driveway, garage and rear garden with summerh...
Property Oracle says ..
This three-bedroom semi-detached house is located in Dagenham, East London. The property benefits from being close to local schools, including Dorothy Barley Junior Academy and Becontree Primary School, both rated as ‘Good’ by Ofsted. Transport links are also relatively convenient, with several train stations within a reasonable distance, including Goodmayes and Seven Kings on the TfL Rail line. The property itself appears to be in reasonable condition, though some modernisation may be desirable. The kitchen and bathrooms appear dated but functional. The property includes a garden, which adds to its appeal. The list price of £475,000 is slightly above the average price for the area (£363,654), but considering the size (1,249.69 sqft) and inclusion of a garage and garden, it may be considered reasonable for the location. Nearby comparable properties show a range of prices, suggesting some variability in the market.
Therefore, we give this property 6 / 10. *Disclaimer: This is our option and does constitute a recommendation or financial advice. Do your own research. *
- Price
- 6
- Condition
- 7
- Location
- 7
- Land
- 7
- Bedrooms
- 3
- Bathrooms
- 2
- Sqft (est)
- 1,249.69
The heatmap indicates the level of crime in the area. The color of the heatmap indicates the crime severity and recency.
Metrics Year-on-Year
- Average area value
- 448,333.00 £Increased by 35.02 %
- Est sale value
- 626,094.69 £Increased by 24.01 %
- Average area rental value
- 1,840.00 £/moDecreased by 4.47 %
- Est letting value
- 2,499.38 £/moUnchanged by 0.00 %
- Est rental Yield
- 4.92 %Decreased by 29.31 %
- Crime Rate
- 12.00 %Unchanged by 0.00 %
Agent Activity
Noble Residential created the listing.
Nearby Schools
| Name | Type | Ofsted | Distance |
|---|---|---|---|
| Dorothy Barley Junior Academy | Academy Sponsor Led | Good | 0.36 KM |
| Dorothy Barley Infants' School | Community School | Good | 0.43 KM |
| Alamiyah School | Other Independent School | 0.70 KM | |
| Becontree Children'S Centre | Children's Centre | 0.72 KM | |
| Becontree Primary School | Community School | Good | 0.78 KM |
Images
Nearby Streets
| Name | Average Price | Average Sqft | Distance |
|---|---|---|---|
| College Way | £ 0 | 0 | 0.00 KM |
| Milner Road | £ 358,333 | 0 | 0.00 KM |
| Holly Lane | £ 0 | 0 | 0.00 KM |
| Lindisfarne Road | £ 225,000 | 0 | 0.00 KM |
| Rosedale Gardens | £ 0 | 0 | 0.00 KM |
Nearby Transport
| Name | NLC | TLC | Distance |
|---|---|---|---|
| Goodmayes | 6878 | GMY | 1.70 KM |
| Seven Kings | 6893 | SVK | 2.40 KM |
| Chadwell Heath | 6874 | CTH | 2.54 KM |
| Barking | 7492 | BKG | 3.88 KM |
| Dagenham Dock | 7440 | DDK | 4.47 KM |
Nearby Listings
| Address | Price | Type | Score | Distance |
|---|---|---|---|---|
| Lodge Avenue, Dagenham | £ 475,000 | BUY | 6 / 10 | 0.00 KM |
| Marlborough Road, Dagenham, RM8 | £ 390,000 | BUY | 6 / 10 | 0.10 KM |
| Marlborough Road, Dagenham | £ 220,000 | BUY | 6 / 10 | 0.13 KM |
| Marlborough Road, Dagenham, RM8 | £ 375,000 | BUY | 6 / 10 | 0.13 KM |
| Amidas Gardens, Dagenham | £ 375,000 | BUY | 7 / 10 | 0.15 KM |
Nearby Properties
| Address | Price | Distance |
|---|---|---|
| 36 Lodge Avenue | £ 163,000 | 0.08 KM |
| 16 Lodge Avenue | £ 162,000 | 0.08 KM |
| 15 Lodge Avenue | £ 185,000 | 0.08 KM |
| 1b Lodge Avenue | £ 60,000 | 0.08 KM |
| 11 Lodge Avenue | £ 220,000 | 0.08 KM |