Albright Gardens, Walton-On-Thames, KT12
By Curchods Estate Agents
£ 950,000
Reviews
3 out of 5 stars
Curchods Estate Agents says ..
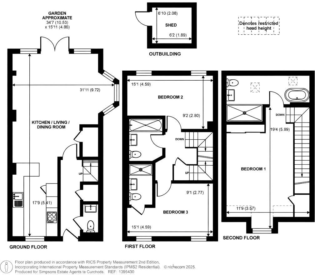
ONE OF A KIND – This exceptional home forms part of a landmark development by London Square, completed in 2023 and finished to their renowned, timeless specification. Arranged over three well-proportioned floors, this unique “Coleridge” style property is ideally suit...
Property Oracle says ..
This is a modern semi-detached property located in Walton-On-Thames, Surrey. The property benefits from three bedrooms and three bathrooms. The interior is in excellent condition, with modern fixtures and fittings throughout. The property includes a garden. The property is located close to local schools and transport links. The property is slightly overpriced.
Therefore, we give this property 7 / 10. *Disclaimer: This is our option and does constitute a recommendation or financial advice. Do your own research. *
- Price
- 6
- Condition
- 9
- Location
- 7
- Land
- 6
- Bedrooms
- 3
- Bathrooms
- 3
- Sqft (est)
- 220.44
- Lot (est)
- 52.31
The heatmap indicates the level of crime in the area. The color of the heatmap indicates the crime severity and recency.
Metrics Year-on-Year
- Average area value
- 730,000.00 £Increased by 2.95 %
- Est sale value
- 107,133.84 £Decreased by 18.59 %
- Average area rental value
- 2,207.00 £/moDecreased by 5.28 %
- Est letting value
- 220.44 £/moUnchanged by 0.00 %
- Est rental Yield
- 3.63 %Decreased by 7.87 %
- Crime Rate
- 3.00 %Unchanged by 0.00 %
Agent Activity
Curchods Estate Agents created the listing.
Nearby Schools
| Name | Type | Ofsted | Distance |
|---|---|---|---|
| Westward School | Other Independent School | 0.33 KM | |
| Ashley Church Of England Primary School | Academy Converter | 0.61 KM | |
| The Danesfield Manor School | Other Independent School | 1.04 KM | |
| Three Rivers Academy | Academy Converter | Good | 1.44 KM |
| Cleves School | Academy Converter | 1.51 KM |
Images
Nearby Streets
| Name | Average Price | Average Sqft | Distance |
|---|---|---|---|
| Tennis Close | £ 698,333 | 0 | 0.00 KM |
| Adelaide Road | £ 3,450,000 | 0 | 0.00 KM |
| Colby Road | £ 0 | 0 | 0.00 KM |
| Hewitts Way | £ 0 | 0 | 0.00 KM |
| Kings Gardens | £ 0 | 0 | 0.00 KM |
Nearby Transport
| Name | NLC | TLC | Distance |
|---|---|---|---|
| Walton-On-Thames | 5575 | WAL | 0.69 KM |
| Hersham | 5590 | HER | 2.77 KM |
| Shepperton | 5605 | SHP | 4.04 KM |
| Upper Halliford | 5613 | UPH | 4.17 KM |
| Sunbury | 5608 | SUU | 4.38 KM |
Nearby Listings
| Address | Price | Type | Score | Distance |
|---|---|---|---|---|
| Albright Gardens, Walton-On-Thames, KT12 | £ 950,000 | BUY | 7 / 10 | 0.00 KM |
| Albright Gardens, Walton On Thames, Surrey, KT12 | £ 1,225,000 | BUY | 7 / 10 | 0.00 KM |
| Albright Gardens, Walton On Thames, Surrey, KT12 | £ 440,000 | BUY | 5 / 10 | 0.00 KM |
| Albright Gardens, Walton On Thames, Surrey, KT12 | £ 1,000,000 | BUY | 7 / 10 | 0.00 KM |
| Albright Gardens, Walton-On-Thames, Surrey, KT12 | £ 440,000 | BUY | 7 / 10 | 0.00 KM |
Nearby Properties
| Address | Price | Distance |
|---|---|---|
| 26 Hersham Road | £ 1,100,000 | 0.18 KM |
| 2 Stompond Lane | £ 1,650,000 | 0.18 KM |
| 32 Stompond Lane | £ 960,000 | 0.18 KM |
| 26 Stompond Lane | £ 1,020,000 | 0.18 KM |
| 24 Stompond Lane | £ 260,000 | 0.18 KM |