Stafford Street, Heath Hayes, Cannock
Lovett&Co. Estate Agents logo

Stafford Street, Heath Hayes, Cannock

By Lovett&Co. Estate Agents

£ 295,000

Reviews

3 out of 5 stars

Lovett&Co. Estate Agents says ..

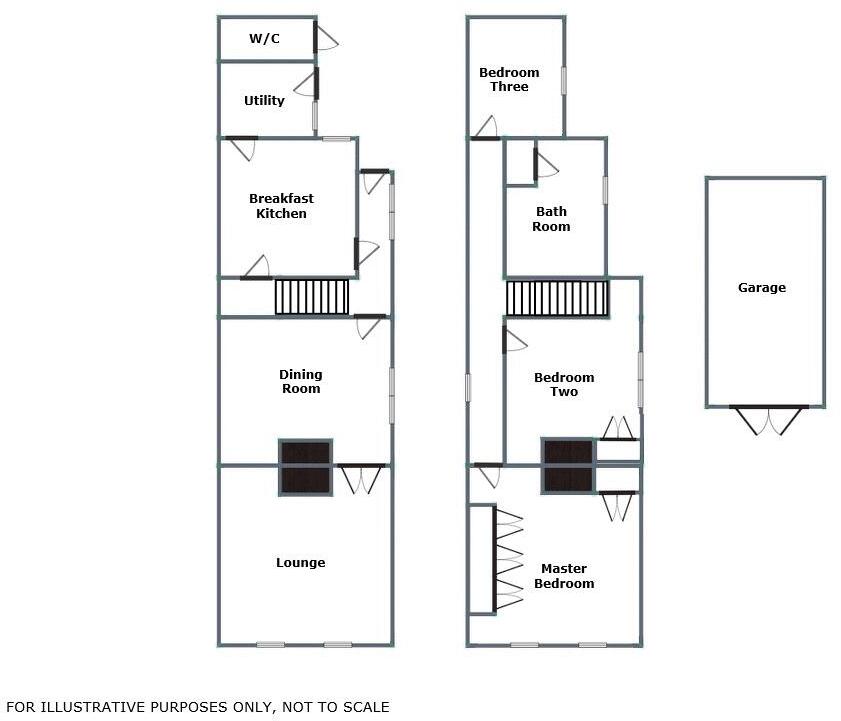
Lovett&Co. Estate Agents are delighted to present for sale this deceptively spacious three-bedroom detached family home, occupying a generous plot with ample parking and a large, private rear garden. Internally, the property offers a well-designed layout comprising: a spacious front lounge, a ...

Property Oracle says ..

The property is a 3-bedroom, 1-bathroom detached house located on Stafford Street in Heath Hayes, Cannock. It’s situated in the Cannock Chase district of Staffordshire, England. The list price is £295,000, and the property has 820 square feet of living space. The plot size is not specified. The property appears to be in reasonable condition, although some updating might enhance its appeal. The kitchen and bathrooms show signs of age but are functional. The interior decor is dated in places, but generally well maintained. The exterior is presentable, and benefits from a garden and outbuildings. The location is good, with nearby primary schools rated ‘Good’ by Ofsted. Several train stations are within a reasonable distance, providing convenient access to other areas. Considering the average price of similar properties in the area (£278,682) and the average price per square foot (£289), the list price of £295,000 seems slightly on the higher side, particularly given the relatively small size of the property (820 sqft) and the average sqft in the area is 961 sqft. However, the presence of a garden and outbuildings could justify a slightly premium price. More information on the plot size would help to determine the overall value more accurately.

Therefore, we give this property 7 / 10. *Disclaimer: This is our option and does constitute a recommendation or financial advice. Do your own research. *

Price
7
Condition
7
Location
8
Land
6
Bedrooms
3
Bathrooms
1
Sqft (est)
820.00

The heatmap indicates the level of crime in the area. The color of the heatmap indicates the crime severity and recency.

Metrics Year-on-Year

Average area value
283,000.00 £
Increased by 5.02 %
from 269,469.00 £
Est sale value
266,500.00 £
Increased by 41.30 %
from 188,600.00 £
Average area rental value
695.00 £/mo
Decreased by 19.75 %
from 866.00 £/mo
Est letting value
0.00 £/mo
from 0.00 £/mo
Est rental Yield
2.95 %
Decreased by 23.58 %
from 3.86 %
Crime Rate
23.00 %
Unchanged by 0.00 %
from 23.00 %

Agent Activity

  • Lovett&Co. Estate Agents created the listing.

Nearby Schools

NameTypeOfstedDistance
Heath Hayes Primary AcademyAcademy Sponsor LedGood0.48 KM
Five Ways Primary SchoolCommunity SchoolGood0.81 KM
Gorsemoor Primary SchoolCommunity SchoolGood1.09 KM
St Peter'S Cofe Primary AcademyAcademy Converter1.91 KM
Norton Canes High SchoolCommunity SchoolGood2.02 KM

Images

Photo 18 Photo 20 Photo 3 Photo 22 Photo 10 Photo 4 Photo 1 Photo 13 Photo 19 Photo 12 Photo 14 Photo 21 Photo 2 Photo 23 Photo 28 Photo 16 Photo 15 Photo 8 Photo 11 Photo 17 Photo 5 Photo 6 Photo 7 Photo 9 Photo 25 Photo 24 Photo 26 Photo 27 Photo 24 Photo 30 Photo 31 Photo 32 Photo 26 Photo 27 Photo 29 Photo 25 Photo 28

Nearby Streets

NameAverage PriceAverage SqftDistance
Rutland Road £ 230,00000.00 KM
The Coppice £ 180,00000.00 KM
Avenue Road £ 332,50000.00 KM
Albany Drive £ 500,00000.00 KM
Brickworks Road £ 000.00 KM

Nearby Transport

NameNLCTLCDistance
Hednesford1148HNF3.18 KM
Cannock1016CAO4.57 KM
Landywood1017LAW5.78 KM
Bloxwich North1018BWN8.28 KM
Rugeley Town1135RGT8.64 KM

Nearby Listings

AddressPriceTypeScoreDistance
Stafford Street, Heath Hayes, Cannock £ 295,000BUY7 / 100.00 KM
Stafford Street, Heath Hayes, Cannock, Staffordshire, WS12 £ 190,000BUY7 / 100.04 KM
Stafford Street, Cannock £ 320,000BUY7 / 100.04 KM
Stafford Street, Cannock £ 159,950BUY6 / 100.08 KM
Dorsett Road, Heath Hayes, Cannock, WS12 2EF £ 230,000BUY6 / 100.10 KM

Nearby Properties

AddressPriceDistance
67 Stafford Street £ 108,0000.01 KM
12 Stafford Street £ 175,0000.01 KM
25 Stafford Street £ 188,0000.01 KM
44 Stafford Street £ 110,0000.01 KM
11 Stafford Street £ 250,0000.01 KM