haart says ..
Gated 4 bedroom detached family home, perfectly located for families with great local schools, an abundance of amenities and top transport links
Property Oracle says ..
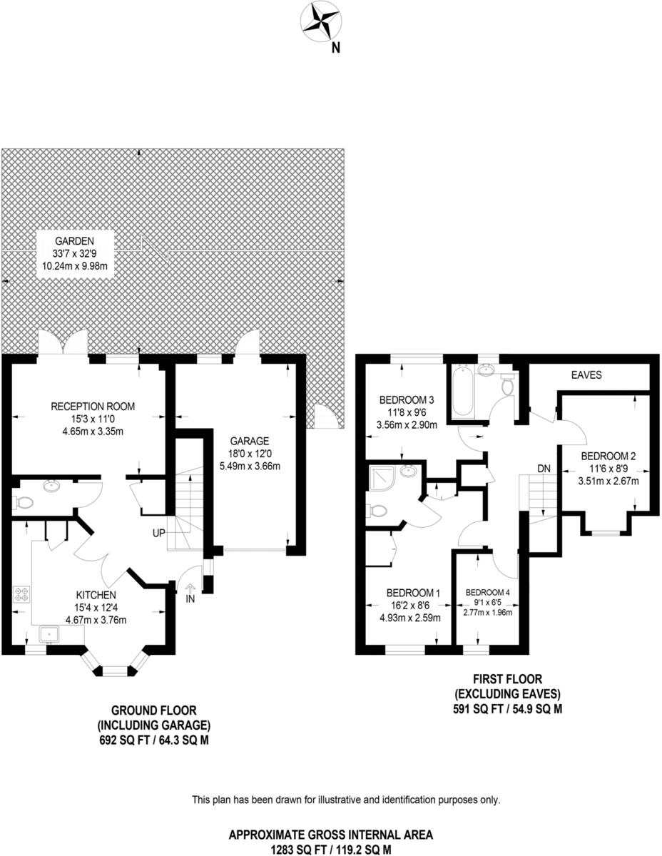
This four-bedroom, two-bathroom detached house in Sutton North is located conveniently close to Sutton Common station, offering good transport links into central London. The property benefits from being in an area with well-regarded schools like Glenthorne High School. However, the property’s interior, as shown in the provided images, suggests a need for modernisation and significant decluttering. The kitchen and living areas in particular appear cluttered and require a thorough refresh. The bathrooms appear functional but could benefit from some upgrades. The exterior shots show a garden, although it’s hard to gauge its size and condition from the provided photographs. The overall impression is that while the location is favourable, the property would require significant effort and investment to fully realise its potential. Given the absence of key details such as square footage and plot size, a full assessment of price-per-square-foot value is impossible. Buyers should approach this property with a keen eye for potential but also a realistic budget for refurbishment. Further professional inspections are recommended to fully understand any structural or maintenance issues.
Therefore, we give this property 5 / 10. *Disclaimer: This is our option and does constitute a recommendation or financial advice. Do your own research. *
- Price
- 6
- Condition
- 4
- Location
- 7
- Land
- 5
- Bedrooms
- 4
- Bathrooms
- 2
The heatmap indicates the level of crime in the area. The color of the heatmap indicates the crime severity and recency.
Metrics Year-on-Year
- Average area value
- 364,000.00 £Decreased by 29.95 %
- Average area rental value
- 1,700.00 £/moDecreased by 10.62 %
- Est rental Yield
- 5.60 %Increased by 27.56 %
- Crime Rate
- 2.00 %Unchanged by 0.00 %
Agent Activity
haart created the listing.
Nearby Schools
| Name | Type | Ofsted | Distance |
|---|---|---|---|
| All Saints Benhilton Cofe Primary School | Voluntary Aided School | Good | 0.70 KM |
| Westbourne Primary School | Academy Converter | 0.70 KM | |
| Glenthorne High School | Academy Converter | Outstanding | 0.80 KM |
| Abbey Primary School | Academy Converter | 1.03 KM | |
| Robin Hood Junior School | Community School | Good | 1.04 KM |
Images
Nearby Streets
| Name | Average Price | Average Sqft | Distance |
|---|---|---|---|
| All Saints Road | £ 400,000 | 0 | 0.00 KM |
| Vale Road | £ 0 | 0 | 0.00 KM |
| Anderson Close | £ 0 | 0 | 0.00 KM |
| Bushey Road | £ 0 | 0 | 0.00 KM |
| Anton Crescent | £ 0 | 0 | 0.00 KM |
Nearby Transport
| Name | NLC | TLC | Distance |
|---|---|---|---|
| Sutton Common | 5436 | SUC | 0.15 KM |
| West Sutton | 5293 | WSU | 1.29 KM |
| St Helier | 5290 | SIH | 1.69 KM |
| Sutton | 5385 | SUO | 1.84 KM |
| Morden South | 5291 | MDS | 2.39 KM |
Nearby Listings
| Address | Price | Type | Score | Distance |
|---|---|---|---|---|
| Farrier Place, Sutton | £ 700,000 | BUY | 5 / 10 | 0.00 KM |
| Ref: SM - Sutton Common Road, Sutton, SM1 3HN | £ 775,000 | BUY | Unknown | 0.02 KM |
| Sutton Common Road, Sutton | £ 250,000 | BUY | 7 / 10 | 0.07 KM |
| Farrier Place, Sutton | £ 550,000 | BUY | 7 / 10 | 0.08 KM |
| Blenheim Road, Sutton, SM1 | £ 475,000 | BUY | 7 / 10 | 0.08 KM |
Nearby Properties
| Address | Price | Distance |
|---|---|---|
| 6 Farrier Place | £ 223,875 | 0.02 KM |
| 3 Farrier Place | £ 397,500 | 0.02 KM |
| 75 Sutton Common Road | £ 200,000 | 0.03 KM |
| 91 Sutton Common Road | £ 420,000 | 0.03 KM |
| 89 Sutton Common Road | £ 279,950 | 0.03 KM |