By Design says ..
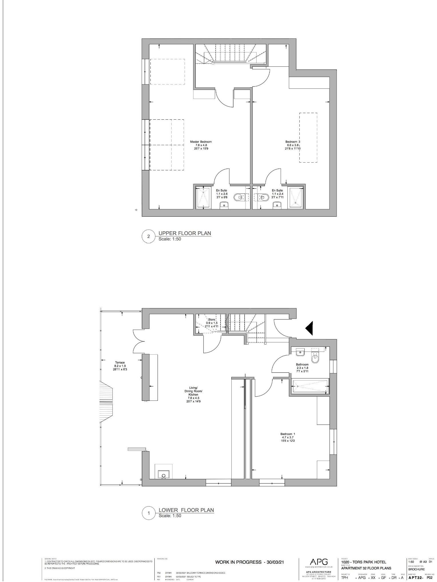
The Overwater Penthouse at Tors Park is a rare coastal gem. 1,221 sq ft of light-filled luxury with three bedrooms, & three bathrooms, and panoramic views over the wooded River Lyn Valley. A turnkey home or holiday let in one of Exmoor’s most captivating settings.
Property Oracle says ..
A modern, recently renovated 3-bedroom maisonette in the desirable Tors Park area of Lynmouth, North Devon. The property boasts stunning views and is located close to local amenities, including a primary school. While the price per square foot is above the local average, the recent renovations and desirable location may justify the premium.
Therefore, we give this property 7 / 10. *Disclaimer: This is our option and does constitute a recommendation or financial advice. Do your own research. *
- Price
- 6
- Condition
- 9
- Location
- 8
- Land
- 5
- Bedrooms
- 3
- Bathrooms
- 3
- Sqft (est)
- 1,509.75
The heatmap indicates the level of crime in the area. The color of the heatmap indicates the crime severity and recency.
Metrics Year-on-Year
- Average area value
- 661,000.00 £Increased by 29.29 %
- Est sale value
- 818,284.50 £Increased by 47.28 %
- Average area rental value
- 2,410.00 £/moIncreased by 120.90 %
- Est letting value
- 1,509.75 £/mo
- Est rental Yield
- 4.38 %Increased by 71.09 %
- Crime Rate
- 43.00 %Unchanged by 0.00 %
Agent Activity
By Design created the listing.
Nearby Schools
| Name | Type | Ofsted | Distance |
|---|---|---|---|
| Lynton Church Of England Primary School | Voluntary Aided School | Good | 0.99 KM |
| Parracombe Church Of England Primary School | Voluntary Controlled School | Good | 9.77 KM |
Images
Nearby Streets
| Name | Average Price | Average Sqft | Distance |
|---|---|---|---|
| Queen Street | £ 0 | 0 | 0.00 KM |
| Cross Street | £ 285,000 | 0 | 0.00 KM |
Nearby Listings
| Address | Price | Type | Score | Distance |
|---|---|---|---|---|
| Tors Park Lynmouth N. Devon | £ 463,000 | BUY | Unknown | 0.00 KM |
| Tors Park, Lynmouth, N.Devon | £ 872,000 | BUY | 7 / 10 | 0.00 KM |
| Tors Park Lynmouth N.Devon | £ 545,000 | BUY | 6 / 10 | 0.04 KM |
| Lorna Doone House, Lynmouth | £ 630,000 | BUY | 5 / 10 | 0.11 KM |
| Tors Road, Lynmouth, Devon, EX35 | £ 260,000 | BUY | 6 / 10 | 0.11 KM |
Nearby Properties
| Address | Price | Distance |
|---|---|---|
| 7 Tors Road | £ 305,000 | 0.12 KM |
| 22 Tors Road | £ 353,000 | 0.12 KM |
| 15 Tors Road | £ 380,000 | 0.12 KM |
| 10a Tors Road | £ 249,000 | 0.12 KM |
| 14 Tors Road | £ 280,000 | 0.12 KM |