Nevill Road, Hove
By The Weatherill Property Group
£ 700,000
Reviews
3 out of 5 stars
The Weatherill Property Group says ..
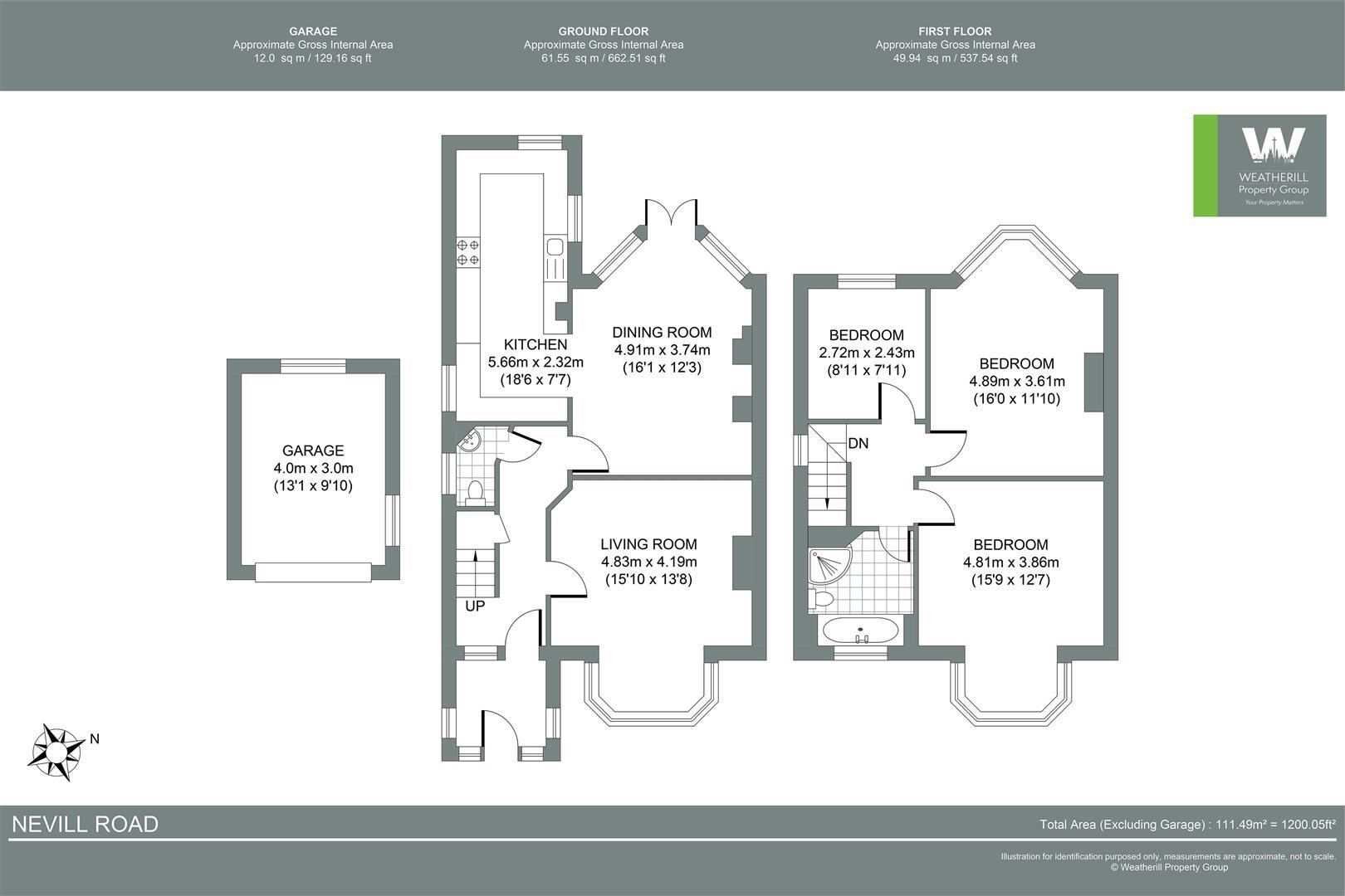
PRICE GUIDE *** £700,000 TO £725,000 *** WPG are very pleased to present this EXTENDED semi-detached family home with benefits including a family sized open plan kitchen dining arrangement, off street parking to the front, a garage and a WEST FACING REAR GARDEN, being located close to Waitrose w...
Property Oracle says ..
This three-bedroom semi-detached house in Hove Park, Brighton & Hove offers a potentially appealing family home. The property boasts a recently modernised kitchen and bathroom, suggesting that some elements have been updated recently. The open-plan kitchen/dining area is a desirable feature in modern homes, creating a good space for family living. The house benefits from a west-facing rear garden, and the location is positive due to its proximity to several well-regarded schools and train stations providing good links for commuting. The property has off street parking to the front and a garage. However, further information on the exact plot size and a more comprehensive comparison with similar recently sold properties in Nevill Road are necessary for a more precise market valuation. The available photos present a relatively modern and well maintained interior, although the garden may require some work. The list price appears reasonable based on the limited comparable data, but further analysis is needed to verify this.
For potential buyers, a thorough survey is crucial to assess the property’s overall condition, beyond the aspects visible in the provided photos. Additional information concerning the property’s energy efficiency and other relevant details is also recommended to make a fully informed decision. The size of the plot is also missing in the data, this may impact value.
Therefore, we give this property 6 / 10. *Disclaimer: This is our option and does constitute a recommendation or financial advice. Do your own research. *
- Price
- 7
- Condition
- 7
- Location
- 7
- Land
- 4
- Bedrooms
- 3
- Bathrooms
- 1
- Sqft (est)
- 1,200.07
The heatmap indicates the level of crime in the area. The color of the heatmap indicates the crime severity and recency.
Metrics Year-on-Year
- Average area value
- 1,133,750.00 £Increased by 20.02 %
- Est sale value
- 886,851.73 £Increased by 31.49 %
- Average area rental value
- 2,298.00 £/moDecreased by 9.42 %
- Est letting value
- 1,200.07 £/moUnchanged by 0.00 %
- Est rental Yield
- 2.43 %Decreased by 24.53 %
- Crime Rate
- 5.00 %Unchanged by 0.00 %
Agent Activity
The Weatherill Property Group created the listing.
Nearby Schools
| Name | Type | Ofsted | Distance |
|---|---|---|---|
| Aldrington Cofe Primary School | Voluntary Aided School | Good | 0.25 KM |
| Hove Park School And Sixth Form Centre | Community School | Good | 0.34 KM |
| Bilingual Primary School - Brighton & Hove | Free Schools | Good | 0.37 KM |
| Blatchington Mill School | Community School | Good | 0.46 KM |
| Conway Court Children'S Centre | Children's Centre | 0.95 KM |
Images
Nearby Streets
| Name | Average Price | Average Sqft | Distance |
|---|---|---|---|
| Poynter Road | £ 0 | 0 | 0.00 KM |
| Nevill Close | £ 800,000 | 0 | 0.00 KM |
| St Josephs Close | £ 725,000 | 0 | 0.00 KM |
| Howard Court | £ 0 | 0 | 0.00 KM |
| Newtown Road | £ 498,267 | 0 | 0.00 KM |
Nearby Transport
| Name | NLC | TLC | Distance |
|---|---|---|---|
| Aldrington | 5280 | AGT | 1.02 KM |
| Hove | 5273 | HOV | 1.18 KM |
| Preston Park | 5285 | PRP | 2.51 KM |
| Portslade | 5276 | PLD | 3.17 KM |
| Brighton | 5268 | BTN | 4.32 KM |
Nearby Listings
| Address | Price | Type | Score | Distance |
|---|---|---|---|---|
| Nevill Road, Hove | £ 675,000 | BUY | Unknown | 0.01 KM |
| Nevill Road, Hove, East Sussex, BN3 | £ 300,000 | BUY | 6 / 10 | 0.18 KM |
| Nevill Road, Hove, East Sussex, BN3 | £ 425,000 | BUY | 6 / 10 | 0.18 KM |
| Nevill Road, Hove, East Sussex, BN3 | £ 425,000 | BUY | 7 / 10 | 0.18 KM |
| Woodland Drive, Hove | £ 875,000 | BUY | 7 / 10 | 0.18 KM |
Nearby Properties
| Address | Price | Distance |
|---|---|---|
| 88 Nevill Road | £ 320,000 | 0.03 KM |
| 116 Nevill Road | £ 530,000 | 0.03 KM |
| 120 Nevill Road | £ 347,000 | 0.03 KM |
| 130 Nevill Road | £ 385,550 | 0.03 KM |
| 96 Nevill Road | £ 245,000 | 0.03 KM |