Beatrice Street, Ashington, NE63
By Bowes Mitchell
£ 45,000
Reviews
3 out of 5 stars
Bowes Mitchell says ..
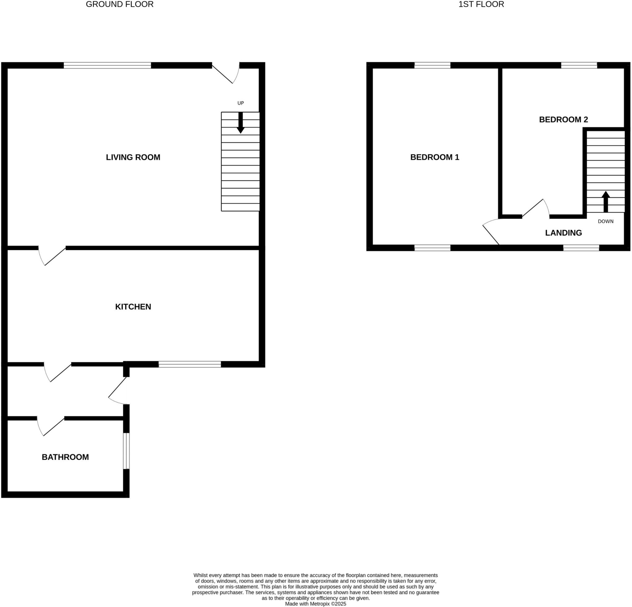
LIVE ONLINE AUCTION - 17/12/2025 - 9:00 - Two Bed Terraced Home Located on Beatrice Street, Ashington
Property Oracle says ..
This two-bedroom terraced house on Beatrice Street, Ashington, presents a mixed bag. The location is adequate, with access to local amenities, though school ratings are varied. The property’s condition appears to be a blend of modern and dated, suggesting some renovation may be desired. It benefits from a garden, adding to its appeal. The asking price of £45,000 is notably lower than the area’s average, potentially offering good value for those prepared to undertake improvements. Overall, this property could be a worthwhile investment for the right buyer.
Therefore, we give this property 6 / 10. *Disclaimer: This is our option and does constitute a recommendation or financial advice. Do your own research. *
- Price
- 8
- Condition
- 5
- Location
- 5
- Land
- 6
- Bedrooms
- 2
- Bathrooms
- 1
- Sqft (est)
- 745.00
The heatmap indicates the level of crime in the area. The color of the heatmap indicates the crime severity and recency.
Metrics Year-on-Year
- Average area value
- 625,000.00 £Increased by 9.15 %
- Est sale value
- 493,190.00 £Increased by 24.67 %
- Average area rental value
- 1,525.00 £/moIncreased by 1.26 %
- Est letting value
- 745.00 £/moUnchanged by 0.00 %
- Est rental Yield
- 2.93 %Decreased by 7.28 %
- Crime Rate
- 22.00 %Unchanged by 0.00 %
Agent Activity
Bowes Mitchell created the listing.
Nearby Schools
| Name | Type | Ofsted | Distance |
|---|---|---|---|
| Central Primary School | Foundation School | Requires improvement | 0.61 KM |
| Ashington/Morpeth Children'S Centre | Children's Centre | 0.64 KM | |
| Ncea Thomas Bewick C Of E Primary School | Academy Converter | 1.20 KM | |
| Rosewood Independent School | Other Independent School | 1.21 KM | |
| Ncea James Knott Cofe Primary School | Academy Converter | 1.37 KM |
Images
Nearby Streets
| Name | Average Price | Average Sqft | Distance |
|---|---|---|---|
| Hawthorn Road | £ 0 | 0 | 0.00 KM |
| Tweed Street | £ 0 | 0 | 0.00 KM |
| Fifth Avenue | £ 75,000 | 0 | 0.00 KM |
| Wellback Terrace | £ 134,950 | 0 | 0.00 KM |
| Ariel Street | £ 140,000 | 0 | 0.00 KM |
Nearby Transport
| Name | NLC | TLC | Distance |
|---|---|---|---|
| Widdrington | 7695 | WDD | 8.85 KM |
| Pegswood | 7685 | PEG | 9.14 KM |
Nearby Listings
| Address | Price | Type | Score | Distance |
|---|---|---|---|---|
| Beatrice Street, Ashington, NE63 | £ 45,000 | BUY | 6 / 10 | 0.00 KM |
| Beatrice Street, Ashington | £ 35,000 | BUY | 4 / 10 | 0.04 KM |
| Beatrice Street, Ashington, Northumberland, NE63 | £ 70,000 | BUY | 5 / 10 | 0.05 KM |
| Portia Street, Ashington, Northumberland, NE63 9DL | £ 77,000 | BUY | 6 / 10 | 0.06 KM |
| Katherine Street, Ashington | £ 74,950 | BUY | 6 / 10 | 0.07 KM |
Nearby Properties
| Address | Price | Distance |
|---|---|---|
| 4 Beatrice Street | £ 38,000 | 0.00 KM |
| 8 Beatrice Street | £ 50,000 | 0.00 KM |
| 14 Beatrice Street | £ 39,999 | 0.01 KM |
| 18 Beatrice Street | £ 73,500 | 0.01 KM |
| 6 Beatrice Street | £ 40,000 | 0.01 KM |