Moss Bank Road, St Helens, WA11
By J B B Leach
£ 375,000
Reviews
4 out of 5 stars
J B B Leach says ..
A most impressive three bedroom detached dormer bungalow offering immaculate and well thought out interiors and versatile living accommodation. Our clients have created a very comfortable home in the centre of the very pleasant tree lined Moss Bank.
Property Oracle says ..
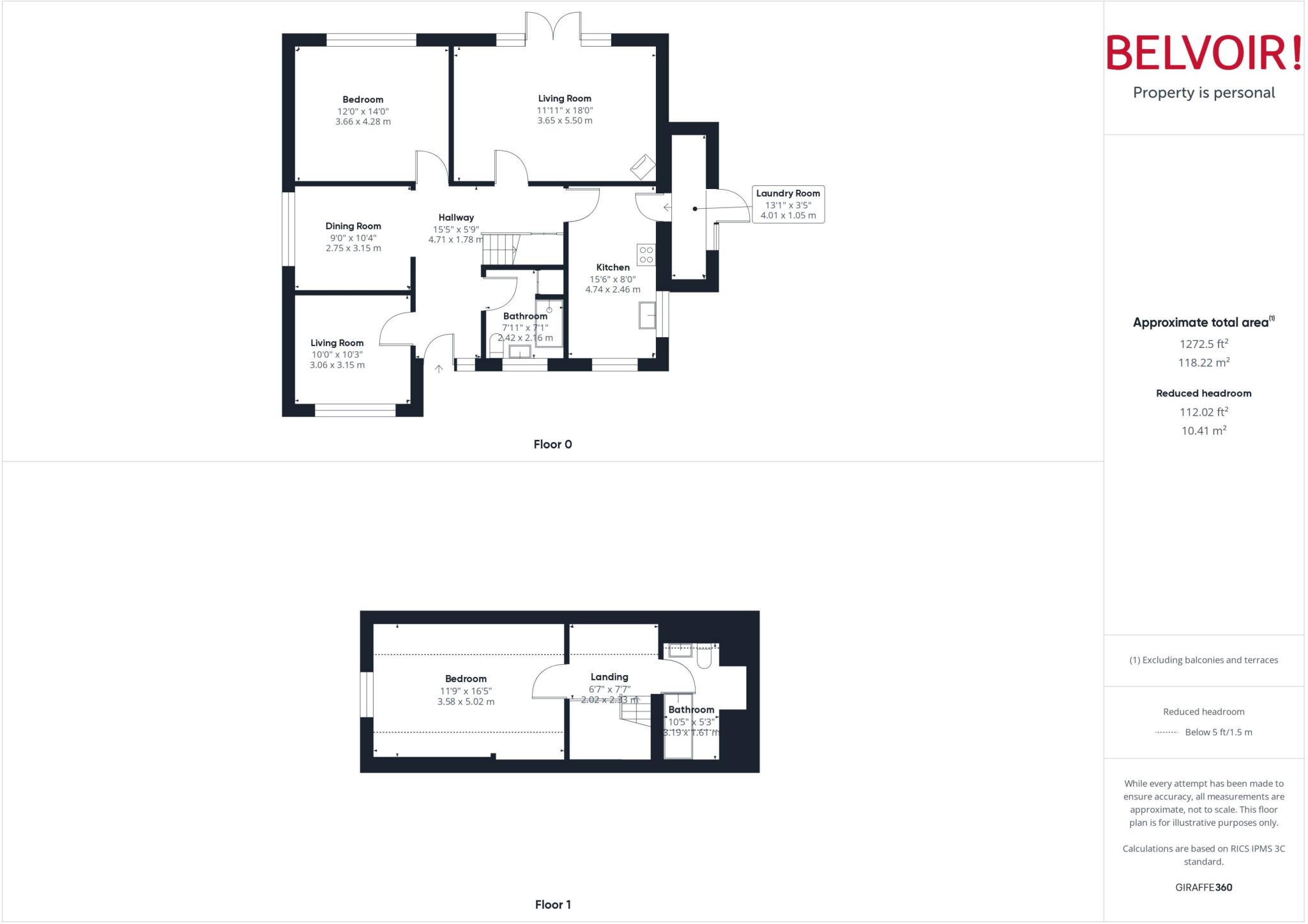
Moss Bank Road, St Helens, WA11 is a three-bedroom detached dormer bungalow. The property boasts immaculate interiors and versatile living accommodation, situated on a tree-lined street. Based on the provided photographs, the property appears to be in excellent condition, with recently updated interiors and a modern kitchen and bathrooms. The property also benefits from a sizable garden, offering additional outdoor space. While specific pricing data per square foot is unavailable, the list price of £375,000 seems reasonable considering the property’s condition, location, and the size of the garden. Nearby properties on Moss Bank Road have sold for similar prices, suggesting the listing price is in line with market values. The presence of good schools and relatively close proximity to St Helens Central train station further enhances the property’s desirability and justifies its price point. The property is located in Moss Bank, St Helens. Nearby amenities include several well-regarded primary schools, such as St Peter And St Paul Catholic Primary School and Carr Mill Primary School, both rated as ‘Outstanding’ or ‘Good’ by Ofsted. Transportation links are also readily available, with St Helens Central train station approximately 2.87km away. This makes the location convenient for families and commuters alike.
Therefore, we give this property 8 / 10. *Disclaimer: This is our option and does constitute a recommendation or financial advice. Do your own research. *
- Price
- 8
- Condition
- 9
- Location
- 8
- Land
- 7
- Bedrooms
- 3
- Bathrooms
- 2
- Sqft (est)
- 1,481.87
The heatmap indicates the level of crime in the area. The color of the heatmap indicates the crime severity and recency.
Metrics Year-on-Year
- Average area value
- 543,800.00 £Increased by 17.00 %
- Est sale value
- 795,764.19 £Increased by 32.27 %
- Average area rental value
- 1,669.00 £/moDecreased by 26.99 %
- Est letting value
- 1,481.87 £/moDecreased by 50.00 %
- Est rental Yield
- 3.68 %Decreased by 37.63 %
- Crime Rate
- 3.00 %Unchanged by 0.00 %
Agent Activity
J B B Leach created the listing.
Nearby Schools
| Name | Type | Ofsted | Distance |
|---|---|---|---|
| St Peter And St Paul Catholic Primary School | Voluntary Aided School | Outstanding | 1.32 KM |
| Carr Mill Primary School | Community School | Good | 1.45 KM |
| Moss Bank Children'S Centre | Children's Centre Linked Site | 1.51 KM | |
| St Mary'S Catholic Primary School | Voluntary Aided School | Outstanding | 2.27 KM |
| Cowley International College | Community School | Good | 2.36 KM |
Images
Nearby Streets
| Name | Average Price | Average Sqft | Distance |
|---|---|---|---|
| Kingsway | £ 0 | 0 | 0.00 KM |
| Windermere Place | £ 150,000 | 0 | 0.00 KM |
| Kestrel Close | £ 0 | 0 | 0.00 KM |
| Wright Close | £ 0 | 0 | 0.00 KM |
| City Road | £ 0 | 0 | 0.00 KM |
Nearby Transport
| Name | NLC | TLC | Distance |
|---|---|---|---|
| St Helens Central | 2341 | SNH | 2.87 KM |
| Thatto Heath | 2264 | THH | 5.49 KM |
| Upholland | 2364 | UPL | 5.59 KM |
| Lea Green | 2339 | LEG | 5.85 KM |
| St Helens Junction | 2340 | SHJ | 6.21 KM |
Nearby Listings
| Address | Price | Type | Score | Distance |
|---|---|---|---|---|
| Moss Bank Road, St Helens, WA11 | £ 375,000 | BUY | 8 / 10 | 0.00 KM |
| Moss Bank Road, Moss Bank, St Helens, WA11 | £ 465,000 | BUY | Unknown | 0.00 KM |
| Plots of Land at Club Street, Moss Bank, St. Helens, Merseyside WA11 7DZ | £ 25,000 | BUY | 5 / 10 | 0.05 KM |
| Plots of Land at Club Street, Moss Bank, St. Helens, Merseyside WA11 7DZ | £ 40,000 | BUY | 7 / 10 | 0.05 KM |
| Oakwood Gardens, St. Helens | £ 320,000 | BUY | 7 / 10 | 0.07 KM |
Nearby Properties
| Address | Price | Distance |
|---|---|---|
| 93 Moss Bank Road | £ 48,000 | 0.00 KM |
| 125 Moss Bank Road | £ 125,000 | 0.00 KM |
| 97 Moss Bank Road | £ 280,000 | 0.00 KM |
| 103 Moss Bank Road | £ 55,000 | 0.00 KM |
| 101 Moss Bank Road | £ 148,500 | 0.00 KM |