Barrack Hill, Newport, NP20
By Bluestone Sales and Lettings
£ 177,500
Reviews
3 out of 5 stars
Bluestone Sales and Lettings says ..
*IDEAL FIRST-TIME BUY* Bluestone Estate & Letting Agents present this attractive home ideal for first-time buyers, boasting two great-sized double bedrooms and offering easy access to the M4.
Property Oracle says ..
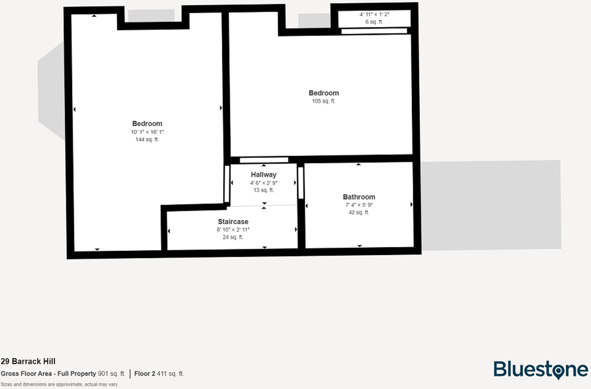
This is a two-bedroom terraced house located in Shaftesbury, Newport. The property is in reasonable condition, with a modern kitchen and bathroom. It has a decent-sized garden. The property is located close to schools and transportation links. The front garden is overgrown and needs attention. The property is listed at £177,500, which seems reasonable given its size, condition, and location.
Therefore, we give this property 6 / 10. *Disclaimer: This is our option and does constitute a recommendation or financial advice. Do your own research. *
- Price
- 7
- Condition
- 6
- Location
- 6
- Land
- 7
- Bedrooms
- 2
- Bathrooms
- 1
- Sqft (est)
- 400.00
The heatmap indicates the level of crime in the area. The color of the heatmap indicates the crime severity and recency.
Metrics Year-on-Year
- Average area value
- 592,760.00 £Decreased by 27.61 %
- Est sale value
- 279,200.00 £Decreased by 16.90 %
- Average area rental value
- 2,532.00 £/moDecreased by 6.77 %
- Est letting value
- 800.00 £/moUnchanged by 0.00 %
- Est rental Yield
- 5.13 %Increased by 28.89 %
- Crime Rate
- 3.00 %Unchanged by 0.00 %
Agent Activity
Bluestone Sales and Lettings created the listing.
Nearby Schools
| Name | Type | Ofsted | Distance |
|---|---|---|---|
| St Mary'S R.C. Primary School | Welsh Establishment | 0.70 KM | |
| Crindau Junior & Infant School | Welsh Establishment | 0.83 KM | |
| St Woolos Primary School | Welsh Establishment | 1.49 KM | |
| Newport High School | Welsh Establishment | 1.80 KM | |
| Maindee C.P. School | Welsh Establishment | 1.82 KM |
Images
Nearby Streets
| Name | Average Price | Average Sqft | Distance |
|---|---|---|---|
| Bolton Street | £ 0 | 0 | 0.00 KM |
| Prospect Street | £ 160,000 | 0 | 0.00 KM |
| Queen's Close | £ 235,714 | 0 | 0.00 KM |
| Canal Street | £ 230,000 | 0 | 0.00 KM |
| Queen's Croft | £ 224,000 | 0 | 0.00 KM |
Nearby Transport
| Name | NLC | TLC | Distance |
|---|---|---|---|
| Newport (South Wales) | 3674 | NWP | 0.94 KM |
| Pye Corner | 1663 | PYE | 4.24 KM |
| Cwmbran | 3738 | CWM | 6.80 KM |
| Rogerstone | 9921 | ROR | 7.00 KM |
| Risca And Pontymister | 9920 | RCA | 9.88 KM |
Nearby Listings
| Address | Price | Type | Score | Distance |
|---|---|---|---|---|
| Barrack Hill, Newport, NP20 | £ 177,500 | BUY | 6 / 10 | 0.00 KM |
| Lambert Street, Newport | £ 110,000 | BUY | 5 / 10 | 0.08 KM |
| Lambert Street, Newport | £ 200,000 | BUY | 7 / 10 | 0.08 KM |
| Upper Power Street, Newport, NP20 | £ 150,000 | BUY | 6 / 10 | 0.12 KM |
| 32 Upper Power Street, Newport, Gwent, NP20 5FT | £ 68,000 | BUY | 5 / 10 | 0.12 KM |
Nearby Properties
| Address | Price | Distance |
|---|---|---|
| 21 Barrack Hill | £ 245,000 | 0.01 KM |
| 31 Barrack Hill | £ 137,500 | 0.01 KM |
| 52 Barrack Hill | £ 119,950 | 0.01 KM |
| 29 Barrack Hill | £ 118,000 | 0.01 KM |
| 27 Barrack Hill | £ 44,500 | 0.01 KM |