Lux Homes says ..
Lux Homes are excited to bring to the market this beautifully presented three bedroom semi-detached chalet bungalow located on Burnway, allowing easy access to Langton's Primary School. Offering a stylish kitchen with a separate spacious lounge in addition to being well presented.
Property Oracle says ..
This three-bedroom semi-detached chalet bungalow in Burnway, Hornchurch, presents itself well in the provided photographs. The interior is tastefully decorated and shows a modern kitchen and updated bathrooms. The property benefits from a good-sized rear garden, adding to its appeal. The location is favorable, with Emerson Park station relatively close by and several schools nearby. While the images showcase a well-maintained property, it’s important to conduct a thorough in-person inspection to fully ascertain its condition. The asking price falls within the range of similar properties in the vicinity; however, the lack of precise square footage data for comparable properties makes a definitive price-per-square-foot analysis impossible. Overall, this property appears to be a reasonable option for buyers looking for a family home in a convenient location, offering a combination of contemporary features and established neighborhood appeal. Further due diligence is recommended before any purchase decision.
Therefore, we give this property 7 / 10. *Disclaimer: This is our option and does constitute a recommendation or financial advice. Do your own research. *
- Price
- 7
- Condition
- 8
- Location
- 7
- Land
- 6
- Bedrooms
- 3
- Bathrooms
- 2
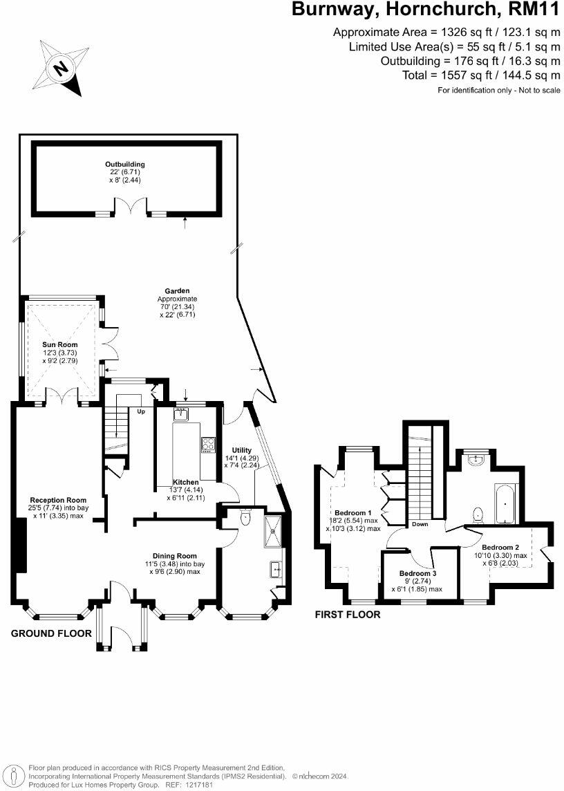
- Sqft (est)
- 1,557.00
The heatmap indicates the level of crime in the area. The color of the heatmap indicates the crime severity and recency.
Metrics Year-on-Year
- Average area value
- 453,211.00 £Increased by 18.30 %
- Est sale value
- 913,959.00 £Increased by 51.29 %
- Average area rental value
- 1,750.00 £/moIncreased by 15.97 %
- Est letting value
- 3,114.00 £/moIncreased by 100.00 %
- Est rental Yield
- 4.63 %Decreased by 2.11 %
- Crime Rate
- 4.00 %Unchanged by 0.00 %
Agent Activity
Lux Homes marked this listing as sold.
Lux Homes created the listing.
Nearby Schools
| Name | Type | Ofsted | Distance |
|---|---|---|---|
| Olive Ap Academy - Havering | Academy Alternative Provision Sponsor Led | Requires improvement | 0.40 KM |
| Langtons Junior Academy | Academy Sponsor Led | Good | 0.56 KM |
| Langtons Infant School & Nursery | Community School | Good | 0.56 KM |
| Hacton Primary School | Academy Converter | Outstanding | 1.26 KM |
| Towers Infant School | Community School | Outstanding | 1.67 KM |
Images
Nearby Streets
| Name | Average Price | Average Sqft | Distance |
|---|---|---|---|
| Glamis Drive | £ 0 | 0 | 0.00 KM |
| Beverley Close | £ 0 | 0 | 0.00 KM |
| Ravenscourt Drive | £ 612,500 | 0 | 0.00 KM |
| Highfield Crescent | £ 675,000 | 0 | 0.00 KM |
| Minster Court | £ 0 | 0 | 0.00 KM |
Nearby Transport
| Name | NLC | TLC | Distance |
|---|---|---|---|
| Emerson Park | 7473 | EMP | 0.77 KM |
| Upminster | 7464 | UPM | 2.83 KM |
| Gidea Park | 6877 | GDP | 2.91 KM |
| Harold Wood | 6879 | HRO | 3.19 KM |
| Romford | 6886 | RMF | 4.85 KM |
Nearby Listings
| Address | Price | Type | Score | Distance |
|---|---|---|---|---|
| Burnway, Hornchurch | £ 550,000 | BUY | 7 / 10 | 0.00 KM |
| Burnway, Hornchurch, RM11 | £ 500,000 | BUY | 6 / 10 | 0.01 KM |
| Glebe Way, Hornchurch, RM11 | £ 800,000 | BUY | 8 / 10 | 0.06 KM |
| Burnway, Hornchurch, RM11 | £ 600,000 | BUY | 7 / 10 | 0.09 KM |
| Burnway, Hornchurch, RM11 | £ 625,000 | BUY | 7 / 10 | 0.09 KM |
Nearby Properties
| Address | Price | Distance |
|---|---|---|
| 133 Burnway | £ 466,500 | 0.01 KM |
| 121 Burnway | £ 430,000 | 0.01 KM |
| 107 Burnway | £ 482,500 | 0.01 KM |
| 97 Burnway | £ 485,000 | 0.01 KM |
| 101 Burnway | £ 465,000 | 0.01 KM |