Carnwath Road, Carluke
AB

Carnwath Road, Carluke

By AB Properties

£ 245,000

Reviews

3 out of 5 stars

AB Properties says ..

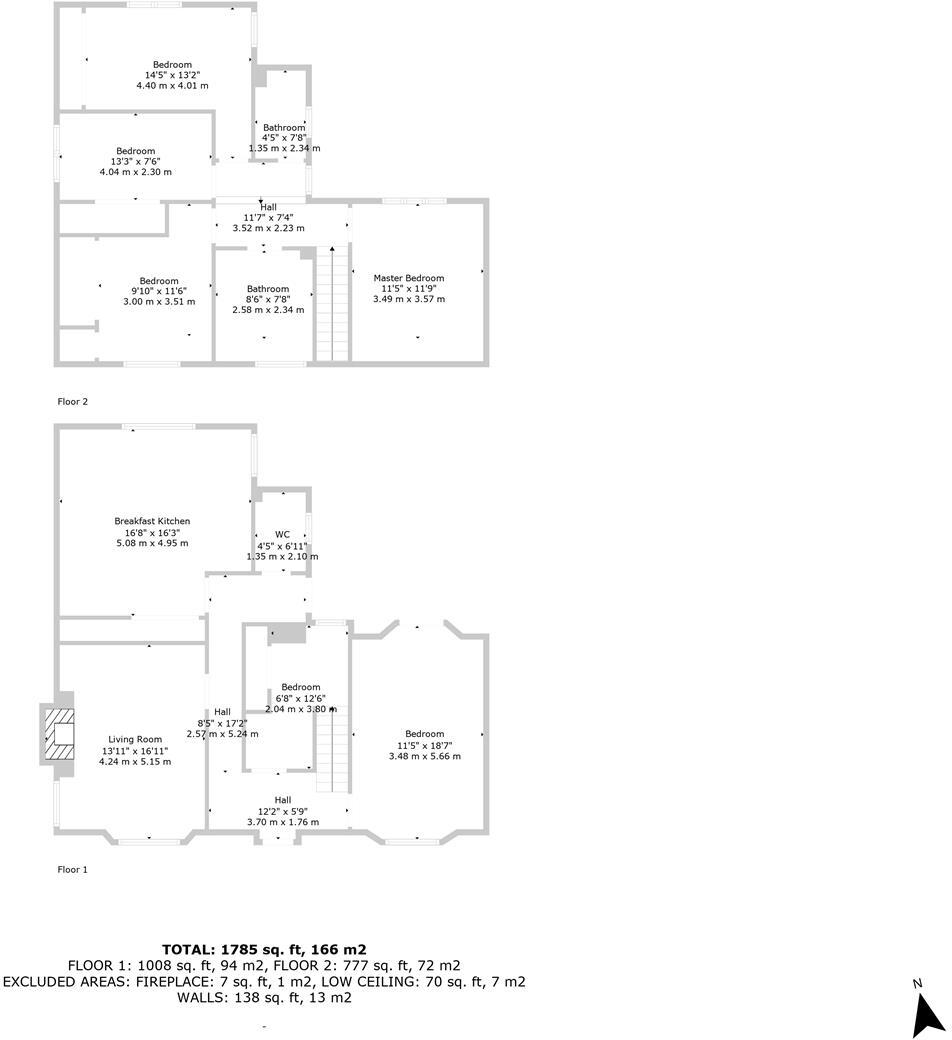
Deceptively generous detached sandstone villa situated within a central and sought after location in the popular town of Carluke. The flexible accommodation is arranged over tow levels with the ground floor comprising of a welcoming entrance hallway, a formal lounge with feature log...

Property Oracle says ..

Therefore, we give this property 7 / 10. *Disclaimer: This is our option and does constitute a recommendation or financial advice. Do your own research. *

Price
9
Condition
7
Location
6
Land
7
Bedrooms
5
Bathrooms
2
Sqft (est)
1,768.00

The heatmap indicates the level of crime in the area. The color of the heatmap indicates the crime severity and recency.

Metrics Year-on-Year

Average area value
300,000.00 £
Decreased by 54.85 %
from 664,444.00 £
Est sale value
899,912.00 £
Increased by 92.08 %
from 468,520.00 £
Average area rental value
1,007.00 £/mo
Decreased by 25.41 %
from 1,350.00 £/mo
Est letting value
1,768.00 £/mo
from 0.00 £/mo
Est rental Yield
4.03 %
Increased by 65.16 %
from 2.44 %
Crime Rate
0.00 %
from 0.00 %

Agent Activity

  • AB Properties created the listing.

Images

A-35.jpg A-31.jpg A-1.jpg A-2.jpg A-3.jpg A-5.jpg A-6.jpg A-7.jpg A-8.jpg A-16.jpg A-17.jpg A-18.jpg A-19.jpg A-9.jpg A-10.jpg A-11.jpg A-20.jpg A-15.jpg A-21.jpg A-22.jpg A-23.jpg A-24.jpg A-25.jpg A-26.jpg A-27.jpg A-28.jpg A-29.jpg A-30.jpg A-33.jpg

Nearby Streets

NameAverage PriceAverage SqftDistance
Strathlachlan Avenue £ 139,00000.00 KM
Stanistone Road £ 000.00 KM
Brookbank Terrace £ 104,99500.00 KM
Parkandarroch Crescent £ 111,66300.00 KM
King's Crescent £ 134,75000.00 KM

Nearby Transport

NameNLCTLCDistance
Carluke9702CLU2.31 KM
Hartwood9246HTW8.66 KM
Lanark9710LNK9.08 KM
Shotts9739SHS9.94 KM

Nearby Listings

AddressPriceTypeScoreDistance
Carnwath Road, Carluke £ 245,000BUY7 / 100.00 KM
Carnwath Road, Carluke, ML8 £ 285,000BUY6 / 100.10 KM
Cairneymount Road, Carluke £ 78,000BUY7 / 100.22 KM
Carnwath Road, Carluke, South Lanarkshire, ML8 £ 350,000BUY7 / 100.23 KM
Carnwath Road, Carluke £ 299,995BUY7 / 100.29 KM