Silkmore Lane, West Horsley
By Henshaws Estate Agents
£ 1,395,000
Reviews
3 out of 5 stars
Henshaws Estate Agents says ..
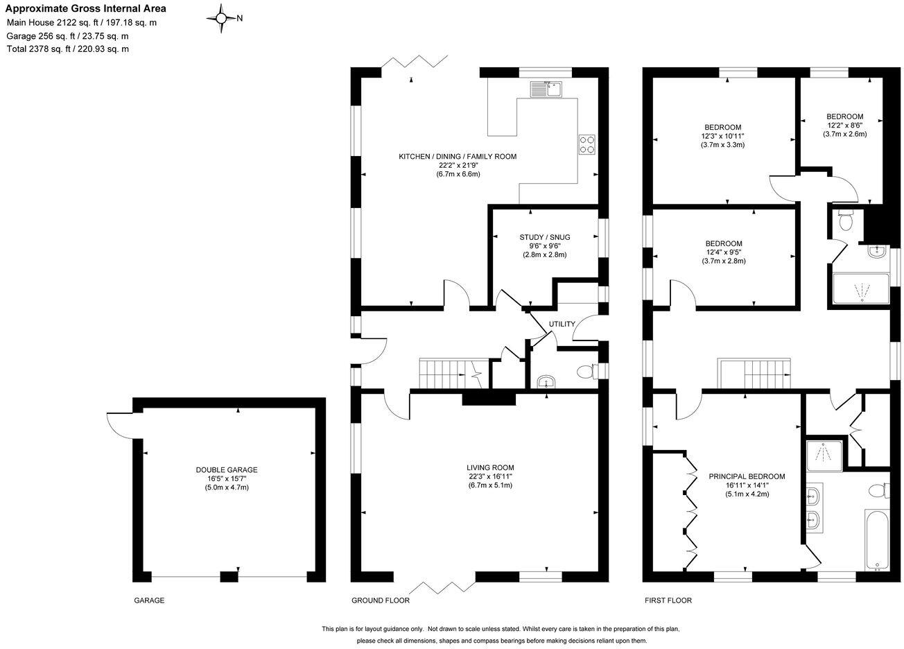
This immaculate 4 bedroom, 2 bathroom family home sits on a secluded ¼ acre plot behind timber gates and offers a blend of style, comfort and elegant design. The garden wraps around two sides of the house with a west facing outdoor entertainment area with terraces, a gazebo, and raised ...
Property Oracle says ..
This is a detached property located on Silkmore Lane, West Horsley, in Surrey. Marketed by Henshaws Estate Agents, the house features four bedrooms and two bathrooms, with a total square footage of 2,378. The property is listed at £1,395,000. The house appears to be well-maintained, with a modern kitchen and bathrooms. It also benefits from a large garden and a double garage. The location is desirable, with proximity to good schools and transportation links. Overall, this property offers a blend of comfortable living space, outdoor amenities, and a convenient location, making it an attractive option for families and professionals alike.
Therefore, we give this property 7 / 10. *Disclaimer: This is our option and does constitute a recommendation or financial advice. Do your own research. *
- Price
- 6
- Condition
- 8
- Location
- 7
- Land
- 9
- Bedrooms
- 4
- Bathrooms
- 2
- Sqft (est)
- 2,378.00
The heatmap indicates the level of crime in the area. The color of the heatmap indicates the crime severity and recency.
Metrics Year-on-Year
- Average area value
- 1,206,061.00 £Decreased by 2.53 %
- Est sale value
- 2,187,760.00 £Increased by 91.67 %
- Average area rental value
- 2,978.00 £/moDecreased by 21.32 %
- Est letting value
- 4,756.00 £/moIncreased by 100.00 %
- Est rental Yield
- 2.96 %Decreased by 19.35 %
- Crime Rate
- 22.00 %Unchanged by 0.00 %
Agent Activity
Henshaws Estate Agents created the listing.
Nearby Schools
| Name | Type | Ofsted | Distance |
|---|---|---|---|
| Cranmore School | Other Independent School | 0.98 KM | |
| The Raleigh School | Academy Converter | Outstanding | 1.76 KM |
| Glenesk School | Other Independent School | 2.39 KM | |
| Ripley Court School | Other Independent School | 4.90 KM | |
| Clandon Cofe Aided Primary School | Voluntary Aided School | Requires improvement | 5.38 KM |
Images
Nearby Streets
| Name | Average Price | Average Sqft | Distance |
|---|---|---|---|
| Fulkes Cottage | £ 0 | 0 | 0.00 KM |
| Mount Pleasant | £ 665,000 | 0 | 0.00 KM |
| Meadows Reach | £ 762,500 | 0 | 0.00 KM |
| Allingham Meadow | £ 995,000 | 0 | 0.00 KM |
| Walnut Tree Gardens | £ 0 | 0 | 0.00 KM |
Nearby Transport
| Name | NLC | TLC | Distance |
|---|---|---|---|
| Horsley | 5562 | HSY | 2.59 KM |
| Effingham Junction | 5642 | EFF | 4.73 KM |
| Clandon | 5555 | CLA | 5.14 KM |
| Gomshall | 5298 | GOM | 5.83 KM |
| Bookham | 5626 | BKA | 8.31 KM |
Nearby Listings
| Address | Price | Type | Score | Distance |
|---|---|---|---|---|
| Silkmore Lane, West Horsley | £ 1,395,000 | BUY | 7 / 10 | 0.00 KM |
| Silkmore Lane, West Horsley, Leatherhead, Surrey, KT24 | £ 800,000 | BUY | 6 / 10 | 0.09 KM |
| Silkmore Lane, West Horsley, KT24 | £ 825,000 | BUY | 6 / 10 | 0.09 KM |
| Tintells Lane, West Horsley, KT24 | £ 995,000 | BUY | Unknown | 0.10 KM |
| West Horsley | £ 1,275,000 | BUY | Unknown | 0.15 KM |