Milton Road, Hanwell, London, W7 1LE
By Tuffin & Wren
£ 849,950
Reviews
3 out of 5 stars
Tuffin & Wren says ..
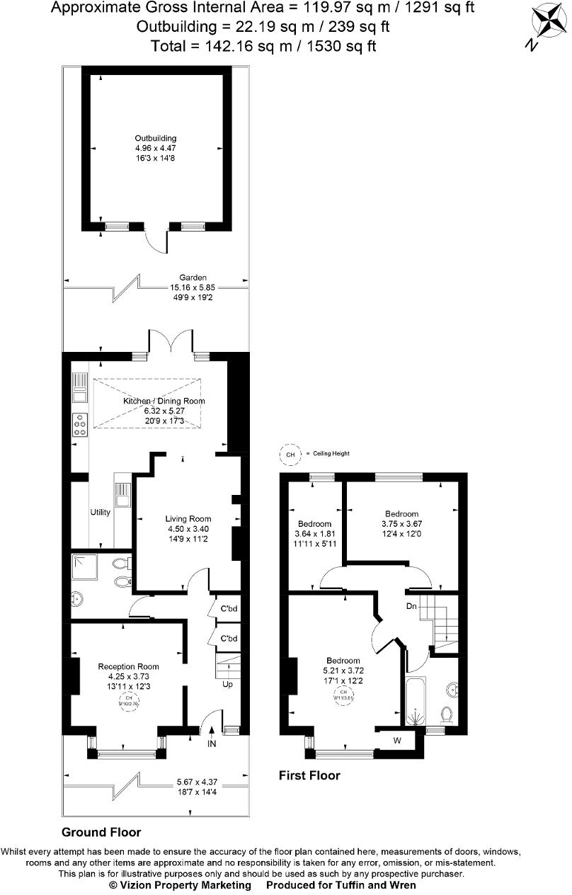
Tuffin & Wren are delighted to offer for sale this deceptively spacious, Edwardian family home situated in the sought after 'Poets Corner' enclave of Hanwell and just moments from its Eliz...
Property Oracle says ..
This three-bedroom, two-bathroom property located on Milton Road in Hanwell, London, presents a blend of appealing features and areas needing attention. The home benefits from a modern kitchen extension with a skylight, which is a significant selling point, showcasing a spacious and well-lit area. The extension also leads to the garden, providing a useful indoor-outdoor flow. The property also has a rear garden space. The rest of the property displays mixed presentation, which shows signs of age in multiple areas. Some rooms require refurbishment or decoration. There is an abundance of storage including built-in wardrobes.
The location in Hanwell offers excellent access to transportation through nearby train stations, which provide quick commutes to Central London. The presence of several well-regarded schools in the vicinity adds to the property’s family-friendliness.
Ultimately, while the property presents advantages in terms of location and some renovations, potential buyers should factor in the cost of further improvements and consider whether the current asking price aligns with their budget and expectations. A thorough survey is highly recommended before committing to a purchase.
Therefore, we give this property 6 / 10. *Disclaimer: This is our option and does constitute a recommendation or financial advice. Do your own research. *
- Price
- 7
- Condition
- 7
- Location
- 8
- Land
- 4
- Bedrooms
- 3
- Bathrooms
- 2
- Sqft (est)
- 1,530.20
The heatmap indicates the level of crime in the area. The color of the heatmap indicates the crime severity and recency.
Metrics Year-on-Year
- Average area value
- 488,738.00 £Decreased by 13.43 %
- Est sale value
- 1,643,434.80 £Increased by 78.11 %
- Average area rental value
- 2,037.00 £/moIncreased by 29.66 %
- Est letting value
- 6,120.80 £/moIncreased by 300.00 %
- Est rental Yield
- 5.00 %Increased by 49.70 %
- Crime Rate
- 5.00 %Unchanged by 0.00 %
Agent Activity
Tuffin & Wren marked this listing as sold.
Tuffin & Wren created the listing.
Nearby Schools
| Name | Type | Ofsted | Distance |
|---|---|---|---|
| Drayton Manor High School | Academy Converter | Outstanding | 0.46 KM |
| Springhallow School | Community Special School | Good | 0.60 KM |
| Hobbayne Primary School | Community School | Requires improvement | 0.63 KM |
| St Joseph'S Catholic Primary School | Voluntary Aided School | Good | 0.70 KM |
| Jubilee Hall Children'S Centre | Children's Centre Linked Site | 0.70 KM |
Images
Nearby Streets
| Name | Average Price | Average Sqft | Distance |
|---|---|---|---|
| Park Road | £ 812,500 | 0 | 0.00 KM |
| Aria Mews | £ 0 | 0 | 0.00 KM |
| York Avenue | £ 0 | 0 | 0.00 KM |
| Filanco Court | £ 600,000 | 0 | 0.00 KM |
| Spring Meadows | £ 0 | 0 | 0.00 KM |
Nearby Transport
| Name | NLC | TLC | Distance |
|---|---|---|---|
| Drayton Green | 3099 | DRG | 0.40 KM |
| Hanwell | 3191 | HAN | 0.73 KM |
| Castle Bar Park | 3098 | CBP | 1.04 KM |
| West Ealing | 3188 | WEA | 1.34 KM |
| South Greenford | 3138 | SGN | 2.29 KM |
Nearby Listings
| Address | Price | Type | Score | Distance |
|---|---|---|---|---|
| Milton Road, Hanwell, London, W7 1LE | £ 849,950 | BUY | 6 / 10 | 0.00 KM |
| Allingham Close, Hanwell | £ 410,000 | BUY | 6 / 10 | 0.04 KM |
| Milton Road, Hanwell, London, W7 1LG | £ 1,200,000 | BUY | 7 / 10 | 0.07 KM |
| Allingham Close, London, W7 | £ 650,000 | BUY | 7 / 10 | 0.07 KM |
| Shakespeare Road, Hanwell | £ 450,000 | BUY | 7 / 10 | 0.09 KM |
Nearby Properties
| Address | Price | Distance |
|---|---|---|
| 119 Milton Road | £ 855,000 | 0.04 KM |
| 111a Milton Road | £ 390,000 | 0.04 KM |
| 123 Milton Road | £ 925,000 | 0.04 KM |
| 101 Milton Road | £ 800,000 | 0.04 KM |
| 131 Milton Road | £ 475,000 | 0.04 KM |