Foxtons says ..
A modern and spacious 1 bedroom ground floor maisonette boasting a fantastic private garden, garage and off-street parking and within easy reach of Woking Town Centre.
Property Oracle says ..
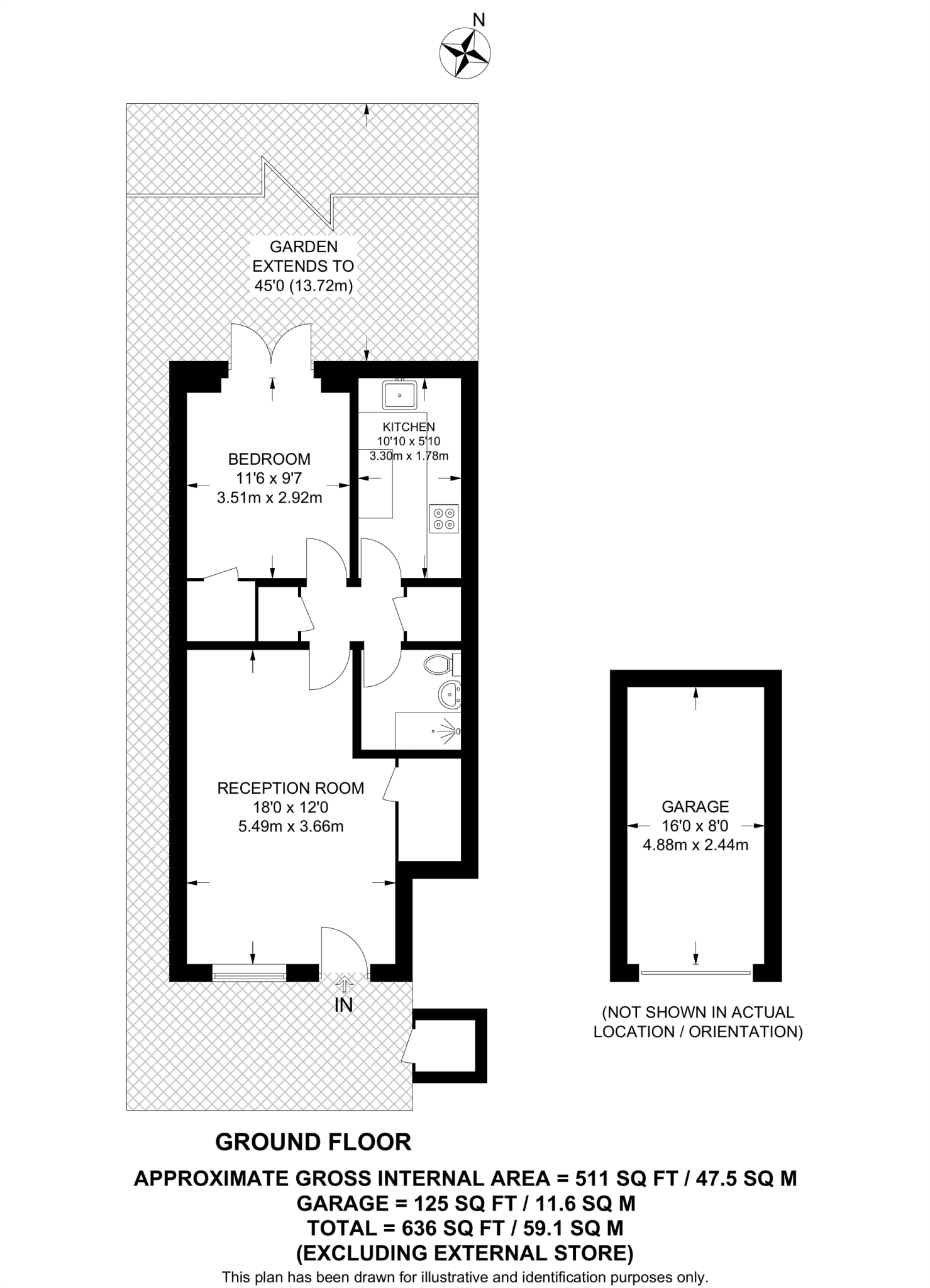
The property is located in Hallington Close, Goldsworth Park, Woking, Surrey. It is a 1-bedroom, 1-bathroom property with a total area of 636.15 sqft and a plot size of 0.00 sqft. The list price is £265,000.
Based on the provided images, the property appears to be in relatively good condition, although some minor cosmetic updates might enhance its appeal. The kitchen and bathroom seem recently updated. The garden, while present, requires some attention and landscaping.
The location in Goldsworth Park offers proximity to Woking town centre and its amenities, including Woking train station which provides easy access to London. Several primary schools are within a reasonable distance, making it potentially attractive to families.
Considering the average house price in the area is £407,969 and the average price per sqft is £466, the list price of £265,000 for this 636.15 sqft property seems relatively low, especially given the recent updates to the kitchen and bathroom. However, the lack of plot size and the need for some garden maintenance might explain the lower price. Nearby comparable properties on Hallington Close range from £125,000 to £250,000, supporting the idea that the listed price is within the reasonable range for this area, given the property’s features and condition.
Therefore, we give this property 6 / 10. *Disclaimer: This is our option and does constitute a recommendation or financial advice. Do your own research. *
- Price
- 7
- Condition
- 7
- Location
- 8
- Land
- 4
- Bedrooms
- 1
- Bathrooms
- 1
- Sqft (est)
- 636.15
The heatmap indicates the level of crime in the area. The color of the heatmap indicates the crime severity and recency.
Metrics Year-on-Year
- Average area value
- 350,000.00 £Decreased by 4.27 %
- Est sale value
- 445,941.15 £Increased by 53.39 %
- Average area rental value
- 2,283.00 £/moIncreased by 41.19 %
- Est letting value
- 2,544.60 £/moIncreased by 100.00 %
- Est rental Yield
- 7.83 %Increased by 47.46 %
- Crime Rate
- 23.00 %Unchanged by 0.00 %
Agent Activity
Foxtons created the listing.
Nearby Schools
| Name | Type | Ofsted | Distance |
|---|---|---|---|
| Goldsworth Primary School | Academy Converter | 0.62 KM | |
| Sythwood Primary School | Academy Converter | Good | 0.65 KM |
| Sythwood Sure Start Children'S Centre | Children's Centre | 0.66 KM | |
| Horsell Cofe Aided Junior School | Voluntary Aided School | Good | 0.94 KM |
| The Horsell Village School | Academy Converter | 1.06 KM |
Images
Nearby Streets
| Name | Average Price | Average Sqft | Distance |
|---|---|---|---|
| Eastmead Connector | £ 0 | 0 | 0.00 KM |
| Parley Drive | £ 0 | 0 | 0.00 KM |
| Julian Close | £ 0 | 0 | 0.00 KM |
| Langdale Close | £ 699,950 | 0 | 0.00 KM |
| Russell Close | £ 535,000 | 0 | 0.00 KM |
Nearby Transport
| Name | NLC | TLC | Distance |
|---|---|---|---|
| Woking | 5685 | WOK | 2.60 KM |
| Worplesdon | 5686 | WPL | 3.32 KM |
| Brookwood | 5687 | BKO | 6.34 KM |
| Longcross | 5674 | LNG | 7.55 KM |
| West Byfleet | 5684 | WBY | 8.60 KM |
Nearby Listings
| Address | Price | Type | Score | Distance |
|---|---|---|---|---|
| Hallington Close, Woking, GU21 | £ 265,000 | BUY | 6 / 10 | 0.00 KM |
| Hallington Close, Woking, Surrey, GU21 | £ 220,000 | BUY | 5 / 10 | 0.03 KM |
| Hallington Close, Goldsworth Park, Woking, Surrey, GU21 | £ 230,000 | BUY | 5 / 10 | 0.05 KM |
| Merrivale Gardens, Woking, Surrey, GU21 | £ 575,000 | BUY | 6 / 10 | 0.13 KM |
| Woking, Surrey, GU21 | £ 1,100,000 | BUY | 7 / 10 | 0.18 KM |
Nearby Properties
| Address | Price | Distance |
|---|---|---|
| 17 Hallington Close | £ 235,000 | 0.01 KM |
| 39 Hallington Close | £ 237,000 | 0.01 KM |
| 47 Hallington Close | £ 244,000 | 0.01 KM |
| 32 Hallington Close | £ 235,000 | 0.01 KM |
| 25 Hallington Close | £ 250,000 | 0.01 KM |