Henry Adams says ..
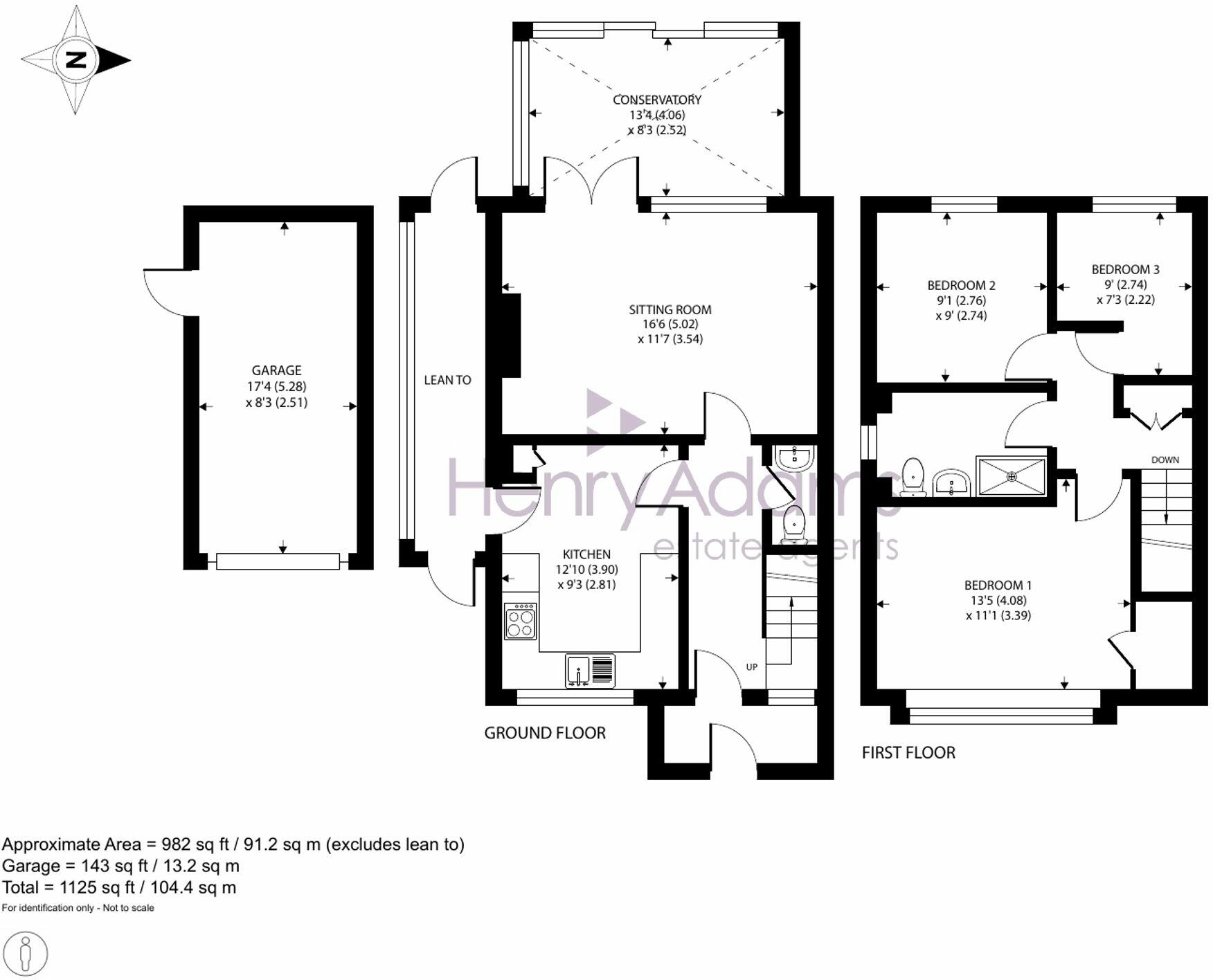
A well presented SEMI-DETACHED HOUSE situated in a mature CUL-DE-SAC location close to local amenities and train station. THREE BEDROOMS, WEST FACING sitting room and garden. DETACHED SINGLE GARAGE in nearby courtyard. EPC-E
Property Oracle says ..
This three-bedroom, one-bathroom semi-detached house in Bosham, West Sussex is listed at £350,000. The property presents a comfortable living space with a well-maintained interior and a garden with patio, offering potential for outdoor living. The kitchen and bathroom appear functional but could benefit from some modern updates. The property’s decor shows some age but is overall clean and in reasonable order. A notable feature is its close proximity to Bosham train station and the well-regarded Bosham Primary School. The lack of precise plot size and detailed comparable sales data somewhat limits the precise assessment of its market value. However, based on the available information, the listing price appears to be reasonably competitive within the Bosham housing market. Potential buyers should consider the condition of some aspects of the property and the lack of extensive land.
Therefore, we give this property 6 / 10. *Disclaimer: This is our option and does constitute a recommendation or financial advice. Do your own research. *
- Price
- 7
- Condition
- 6
- Location
- 7
- Land
- 4
- Bedrooms
- 3
- Bathrooms
- 1
- Sqft (est)
- 1,123.75
The heatmap indicates the level of crime in the area. The color of the heatmap indicates the crime severity and recency.
Metrics Year-on-Year
- Average area value
- 780,625.00 £Increased by 37.31 %
- Est sale value
- 634,918.75 £Increased by 9.92 %
- Average area rental value
- 1,888.00 £/moDecreased by 8.84 %
- Est letting value
- 1,123.75 £/moUnchanged by 0.00 %
- Est rental Yield
- 2.90 %Decreased by 33.64 %
- Crime Rate
- 53.00 %Unchanged by 0.00 %
Agent Activity
Henry Adams created the listing.
Nearby Schools
| Name | Type | Ofsted | Distance |
|---|---|---|---|
| Bosham Primary School | Community School | Good | 1.03 KM |
| Funtington Primary School | Community School | Good | 2.09 KM |
| Oakwood School | Other Independent School | 2.37 KM | |
| Chidham Parochial Primary School | Voluntary Controlled School | Good | 3.38 KM |
| Fishbourne Cofe Primary School | Voluntary Controlled School | Good | 3.58 KM |
Images
Nearby Streets
| Name | Average Price | Average Sqft | Distance |
|---|---|---|---|
| Harbour Court | £ 695,000 | 0 | 0.00 KM |
| The Drive | £ 900,000 | 0 | 0.00 KM |
| Mouthey's Lane | £ 535,000 | 0 | 0.00 KM |
| Church Meadow | £ 2,000,000 | 0 | 0.00 KM |
| Windward Road | £ 0 | 0 | 0.00 KM |
Nearby Transport
| Name | NLC | TLC | Distance |
|---|---|---|---|
| Bosham | 5254 | BOH | 0.34 KM |
| Fishbourne (Sussex) | 5261 | FSB | 3.26 KM |
| Nutbourne | 5262 | NUT | 4.28 KM |
| Chichester | 5255 | CCH | 7.02 KM |
| Southbourne | 5263 | SOB | 7.08 KM |
Nearby Listings
| Address | Price | Type | Score | Distance |
|---|---|---|---|---|
| Arnold Way, Bosham, PO18 | £ 350,000 | BUY | 6 / 10 | 0.00 KM |
| Arnold Way, Bosham, PO18 | £ 347,900 | BUY | 7 / 10 | 0.05 KM |
| Arnold Way, Bosham, Chichester, West Sussex, PO18 | £ 375,000 | BUY | 6 / 10 | 0.05 KM |
| Williams Road, Bosham | £ 490,000 | BUY | Unknown | 0.07 KM |
| Williams Road, Bosham, Chichester, West Sussex | £ 324,000 | BUY | 7 / 10 | 0.12 KM |
Nearby Properties
| Address | Price | Distance |
|---|---|---|
| 17b Mtongue Avenue | £ 205,000 | 0.12 KM |
| 7 Mtongue Avenue | £ 163,500 | 0.12 KM |
| 17 Mtongue Avenue | £ 318,000 | 0.12 KM |
| 12 M'tongue Avenue | £ 420,000 | 0.12 KM |
| 11 Mtongue Avenue | £ 269,000 | 0.12 KM |