Hatton Road, Alperton, Wembley, HA0
By Foxtons
£ 400,000
Reviews
4 out of 5 stars
Foxtons says ..
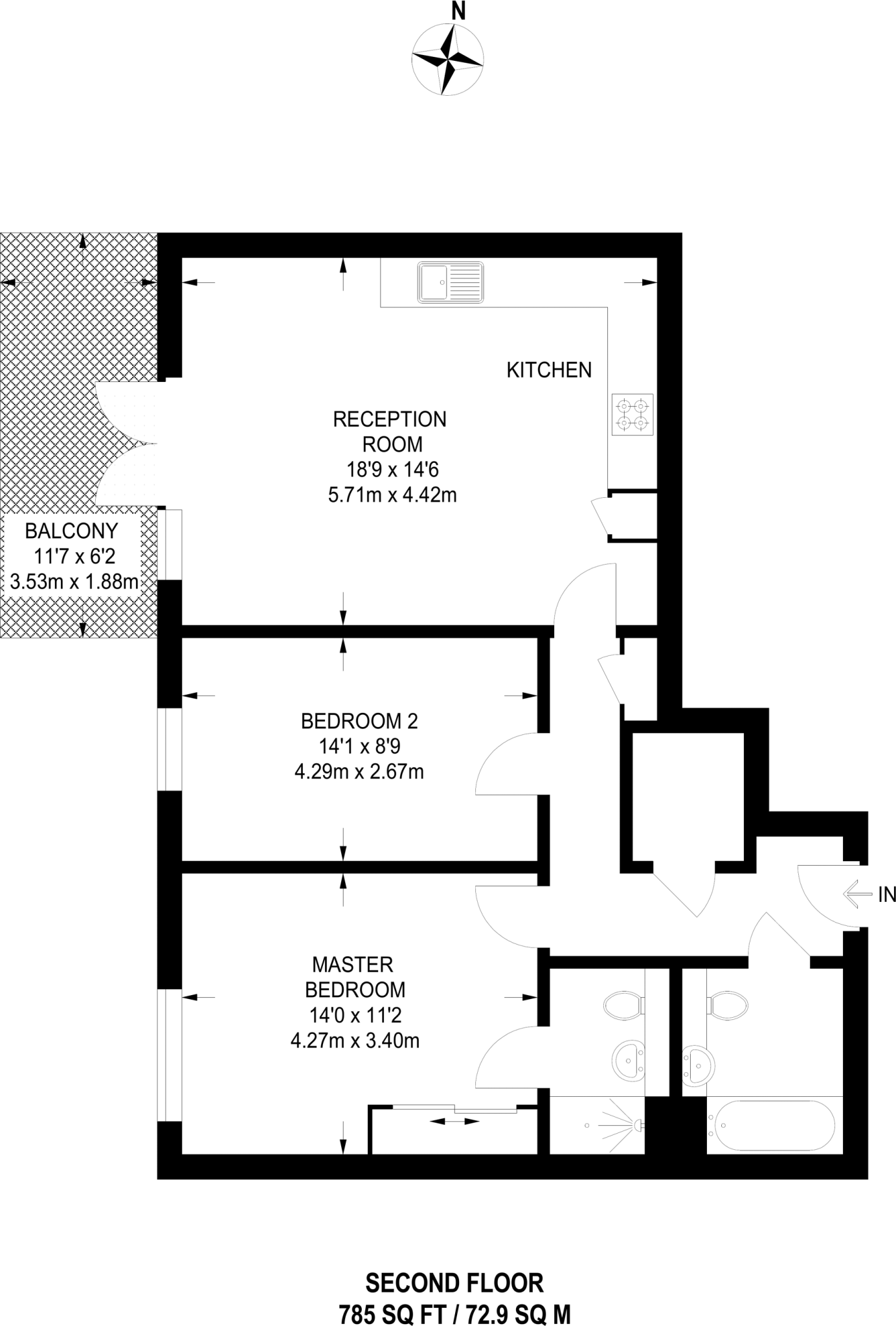
Beautifully arranged on the second floor, this recently built 2 bedroom flat features bright and open-plan living accommodation, access to a west facing private balcony and fantastic communal areas.
Property Oracle says ..
This property is a 2 bedroom 2 bathroom flat located in Alperton, Wembley. The flat is part of a modern development and is in excellent condition. It benefits from a private balcony and communal gardens. The property is well located for transport links with Wembley Central station being approximately 1.5km away. There are also a number of schools within a close proximity to the property. The list price of £400,000 seems reasonable considering the average price for properties in the area is £646,726 and the average price per sqft is £837. However, more information on comparable properties would be needed to confirm this.
Therefore, we give this property 8 / 10. *Disclaimer: This is our option and does constitute a recommendation or financial advice. Do your own research. *
- Price
- 7
- Condition
- 10
- Location
- 8
- Land
- 7
- Bedrooms
- 2
- Bathrooms
- 2
- Sqft (est)
- 715.00
- Lot (est)
- 785.00
The heatmap indicates the level of crime in the area. The color of the heatmap indicates the crime severity and recency.
Metrics Year-on-Year
- Average area value
- 533,714.00 £Increased by 17.79 %
- Est sale value
- 422,565.00 £Increased by 1.90 %
- Average area rental value
- 2,277.00 £/moIncreased by 0.71 %
- Est letting value
- 1,430.00 £/moUnchanged by 0.00 %
- Est rental Yield
- 5.12 %Decreased by 14.52 %
- Crime Rate
- 2.00 %Unchanged by 0.00 %
Agent Activity
Foxtons created the listing.
Nearby Schools
| Name | Type | Ofsted | Distance |
|---|---|---|---|
| Alperton Community School | Academy Converter | Good | 0.39 KM |
| Lyon Park Primary School | Community School | Requires improvement | 0.63 KM |
| Alperton Children'S Centre | Children's Centre | 0.81 KM | |
| The Corner School | Other Independent Special School | Good | 0.89 KM |
| Elsley Primary School | Community School | Good | 1.16 KM |
Images
Nearby Streets
| Name | Average Price | Average Sqft | Distance |
|---|---|---|---|
| Mount Pleasant | £ 404,052 | 0 | 0.00 KM |
| Woodside Avenue | £ 550,000 | 0 | 0.00 KM |
| Woodside Close | £ 412,500 | 0 | 0.00 KM |
| Clifton Way | £ 0 | 0 | 0.00 KM |
| Egerton Road | £ 400,000 | 0 | 0.00 KM |
Nearby Transport
| Name | NLC | TLC | Distance |
|---|---|---|---|
| Wembley Central | 1423 | WMB | 1.46 KM |
| Wembley Stadium | 1509 | WCX | 1.78 KM |
| Stonebridge Park | 1454 | SBP | 1.89 KM |
| North Wembley | 1422 | NWB | 2.84 KM |
| Ealing Broadway | 3190 | EAL | 2.97 KM |
Nearby Listings
| Address | Price | Type | Score | Distance |
|---|---|---|---|---|
| Hatton Road, Alperton, Wembley, HA0 | £ 450,000 | BUY | Unknown | 0.00 KM |
| Abbey Estate | £ 500,000 | BUY | 5 / 10 | 0.12 KM |
| Liberty Wharf, Waterfront Heights, 152A Mount Pleasant, WEMBLEY, HA0 | £ 437,250 | BUY | Unknown | 0.15 KM |
| Carlyon Road, Alperton, Wembley, Middlesex, HA0 | £ 560,000 | BUY | 6 / 10 | 0.18 KM |
| Carlyon Road, Wembley, Middlesex, HA0 | £ 580,000 | BUY | Unknown | 0.18 KM |
Nearby Properties
| Address | Price | Distance |
|---|---|---|
| 12 Woodside Place | £ 273,000 | 0.11 KM |
| 1 Woodside Place | £ 220,000 | 0.14 KM |
| 130 Mount Pleasant | £ 355,000 | 0.14 KM |
| 136 Mount Pleasant | £ 140,000 | 0.14 KM |
| 138 Mount Pleasant | £ 249,950 | 0.14 KM |