BR
Haldon Road, St Davids, Exeter, Devon
By Bradleys
£ 135,000
Reviews
2 out of 5 stars
Bradleys says ..
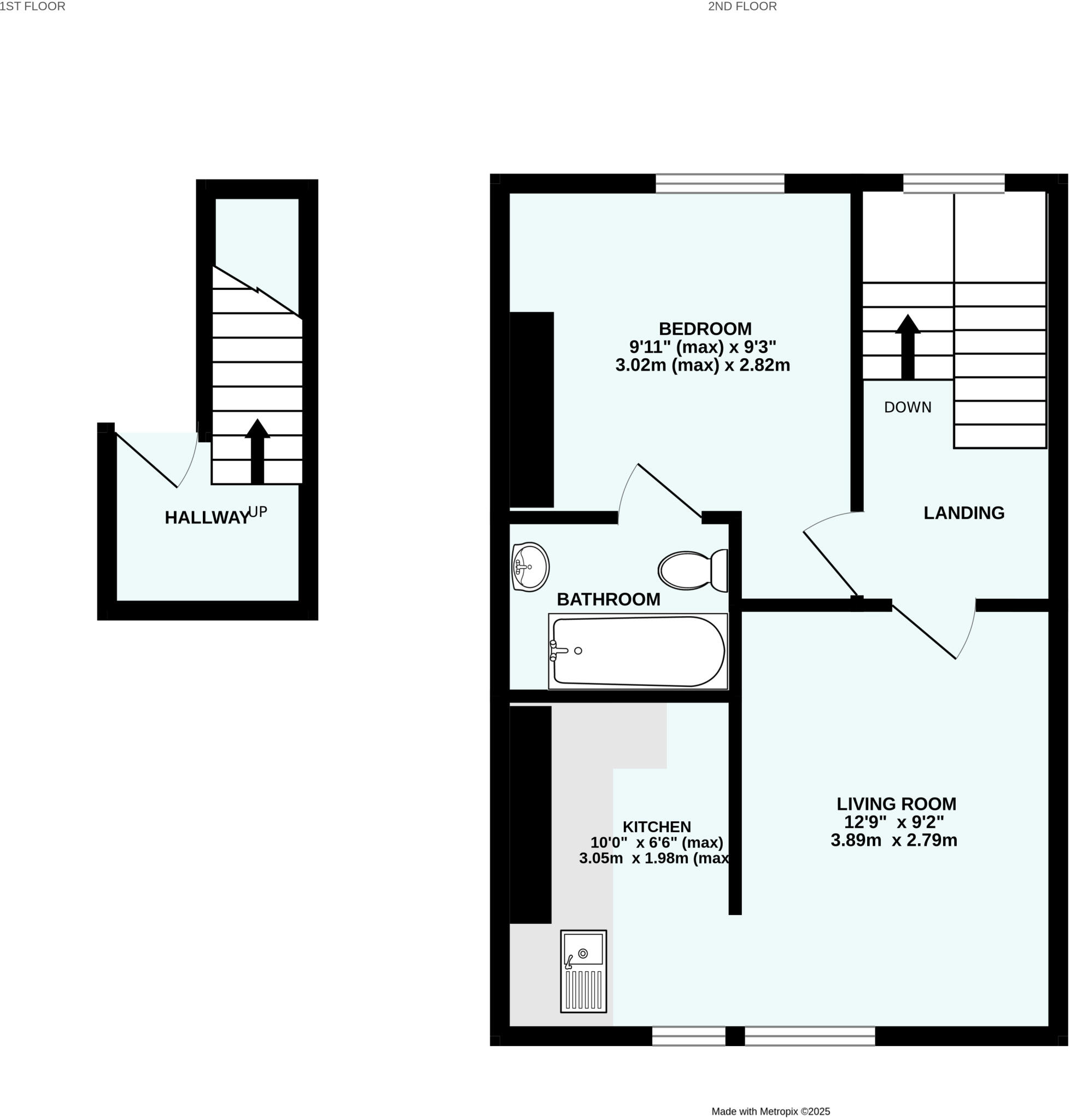
**EXCELLENT VALUE** 1-BEDROOMED TOP FLOOR FLAT Situated in this sought after locality and being within easy reach of Exeter City Centre is this 1-double bedroomed flat. The property occupies the entire top floor of this substantial 3 storey property and enjoys an open aspect to th...
Property Oracle says ..
Therefore, we give this property 5 / 10. *Disclaimer: This is our option and does constitute a recommendation or financial advice. Do your own research. *
- Price
- 6
- Condition
- 5
- Location
- 8
- Land
- 1
- Bedrooms
- 1
- Bathrooms
- 1
- Sqft (est)
- 273.51
The heatmap indicates the level of crime in the area. The color of the heatmap indicates the crime severity and recency.
Metrics Year-on-Year
- Average area value
- 332,222.00 £Decreased by 5.67 %
- Est sale value
- 127,729.17 £Increased by 26.56 %
- Average area rental value
- 1,355.00 £/moIncreased by 23.29 %
- Est letting value
- 273.51 £/moUnchanged by 0.00 %
- Est rental Yield
- 4.89 %Increased by 30.75 %
- Crime Rate
- 3.00 %Unchanged by 0.00 %
from 352,200.00 £
from 100,925.19 £
from 1,099.00 £/mo
from 273.51 £/mo
from 3.74 %
from 3.00 %
Agent Activity
Bradleys created the listing.
Nearby Schools
| Name | Type | Ofsted | Distance |
|---|---|---|---|
| St Wilfrid'S School | Other Independent School | Good | 0.07 KM |
| St David'S Cofe Primary School | Academy Converter | Good | 0.14 KM |
| Exeter College | Further Education | Outstanding | 0.36 KM |
| Exeter Mathematics School | Free Schools 16 To 19 | Outstanding | 0.98 KM |
| Exeter Cathedral School | Other Independent School | 0.98 KM |
Images
Nearby Streets
| Name | Average Price | Average Sqft | Distance |
|---|---|---|---|
| Hele Road | £ 105,000 | 0 | 0.00 KM |
| Barbican Steps | £ 822,500 | 0 | 0.00 KM |
| St Davids | £ 0 | 0 | 0.00 KM |
| Emmanuel Close | £ 0 | 0 | 0.00 KM |
| St Edmunds Court | £ 0 | 0 | 0.00 KM |
Nearby Transport
| Name | NLC | TLC | Distance |
|---|---|---|---|
| Exeter Central | 5755 | EXC | 0.60 KM |
| Exeter St David'S | 3410 | EXD | 0.71 KM |
| Exeter St Thomas | 3414 | EXT | 0.88 KM |
| St James Park (Exeter) | 5751 | SJP | 1.95 KM |
| Polsloe Bridge | 3422 | POL | 4.10 KM |
Nearby Listings
| Address | Price | Type | Score | Distance |
|---|---|---|---|---|
| Haldon Road, St Davids, Exeter, Devon | £ 135,000 | BUY | 5 / 10 | 0.00 KM |
| Haldon Road, Exeter, Devon, EX4 | £ 265,000 | BUY | Unknown | 0.04 KM |
| Haldon Road | £ 170,000 | BUY | 5 / 10 | 0.05 KM |
| 11 Haldon Road, Exeter | £ 120,000 | BUY | 4 / 10 | 0.05 KM |
| Haldon Road, Exeter | £ 165,000 | BUY | 5 / 10 | 0.05 KM |
Nearby Properties
| Address | Price | Distance |
|---|---|---|
| 31 Haldon Road | £ 200,000 | 0.06 KM |
| 13 Haldon Road | £ 125,000 | 0.06 KM |
| 33 Haldon Road | £ 335,000 | 0.06 KM |
| 16 Haldon Road | £ 287,500 | 0.06 KM |
| 17 Haldon Road | £ 115,500 | 0.06 KM |