The Limes, Halesowen road, Lydiate Ash, Bromsgrove
By Michelle & Co
£ 695,000
Reviews
3 out of 5 stars
Michelle & Co says ..
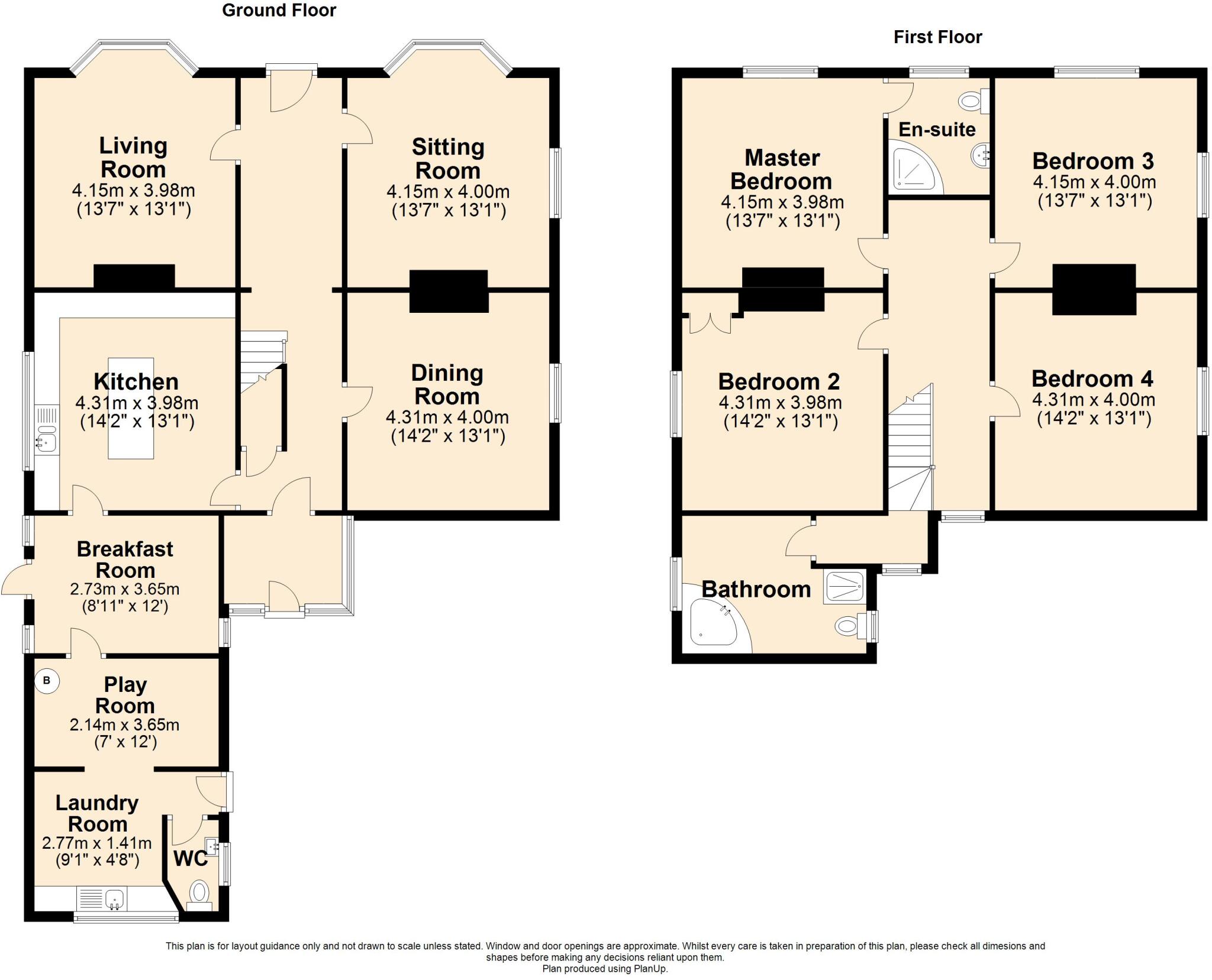
Michelle and Co are pleased to present for sale Lydiate Ashe's hidden gem. A charming four bedroomed detached Victorian residence with no upper chain, the opportunity to buy 8 acres of adjoining land and set within a generous plot of more than half an acre itself. Well located within the hamlet o...
Property Oracle says ..
The property is a character property located in a suburban area with nearby schools and transport links. The interior is well-maintained with modern updates, while retaining period features. The garden is of reasonable size. However, the plot size is relatively small for the price, and the list price is significantly higher than the average for the area, suggesting it may not be good value for money.
Therefore, we give this property 6 / 10. *Disclaimer: This is our option and does constitute a recommendation or financial advice. Do your own research. *
- Price
- 4
- Condition
- 8
- Location
- 7
- Land
- 5
- Bedrooms
- 4
- Bathrooms
- 2
- Sqft (est)
- 1,846.12
The heatmap indicates the level of crime in the area. The color of the heatmap indicates the crime severity and recency.
Metrics Year-on-Year
- Average area value
- 579,091.00 £Increased by 13.92 %
- Est sale value
- 707,063.96 £Decreased by 34.42 %
- Average area rental value
- 964.00 £/moDecreased by 19.53 %
- Est letting value
- 0.00 £/moDecreased by 100.00 %
- Est rental Yield
- 2.00 %Decreased by 29.33 %
- Crime Rate
- 3.00 %Unchanged by 0.00 %
Agent Activity
Michelle & Co created the listing.
Nearby Schools
| Name | Type | Ofsted | Distance |
|---|---|---|---|
| Catshill First School | Community School | Good | 1.92 KM |
| Tulip Tree Children'S Centre | Children's Centre | 1.97 KM | |
| Catshill Middle School | Community School | Good | 2.33 KM |
| Waseley Hills High School | Academy Converter | Requires improvement | 2.39 KM |
| Chadsgrove School | Community Special School | Outstanding | 2.46 KM |
Images
Nearby Streets
| Name | Average Price | Average Sqft | Distance |
|---|---|---|---|
| Chepstow Drive | £ 475,000 | 0 | 0.00 KM |
| Birmingham Road | £ 565,000 | 0 | 0.00 KM |
| Epsom Road | £ 230,000 | 0 | 0.00 KM |
| Alexander Close | £ 325,000 | 0 | 0.00 KM |
| Green Lane | £ 290,000 | 0 | 0.00 KM |
Nearby Transport
| Name | NLC | TLC | Distance |
|---|---|---|---|
| Bromsgrove | 4715 | BMV | 5.86 KM |
| Barnt Green | 1096 | BTG | 6.02 KM |
| Longbridge | 1110 | LOB | 7.45 KM |
| Alvechurch | 1198 | ALV | 9.14 KM |
| Northfield | 1111 | NFD | 9.51 KM |
Nearby Listings
| Address | Price | Type | Score | Distance |
|---|---|---|---|---|
| The Limes, Halesowen road, Lydiate Ash, Bromsgrove | £ 695,000 | BUY | 6 / 10 | 0.00 KM |
| Birmingham Road, Lydiate Ash, Near Marlbrook, Worcestershire, B61 | £ 725,000 | BUY | 7 / 10 | 0.24 KM |
| Birmingham Road, Lydiate Ash, Bromsgrove, Worcestershire, B61 | £ 650,000 | BUY | 6 / 10 | 0.25 KM |
| Birmingham Road, Marlbrook, Bromsgrove, Worcestershire, B61 | £ 425,000 | BUY | 6 / 10 | 0.59 KM |
| Birmingham Road, Marlbrook, B61 | £ 525,000 | BUY | 7 / 10 | 0.64 KM |
Nearby Properties
| Address | Price | Distance |
|---|---|---|
| 27 Halesowen Road | £ 283,500 | 0.13 KM |
| 39 Halesowen Road | £ 288,000 | 0.13 KM |
| 41 Halesowen Road | £ 70,000 | 0.13 KM |
| 55 Halesowen Road | £ 205,000 | 0.13 KM |
| 57 Halesowen Road | £ 190,000 | 0.13 KM |