Anglesey Close, CRAWLEY, West Sussex, RH11
CH

Anglesey Close, CRAWLEY, West Sussex, RH11

By Choices

£ 375,000

Reviews

3 out of 5 stars

Choices says ..

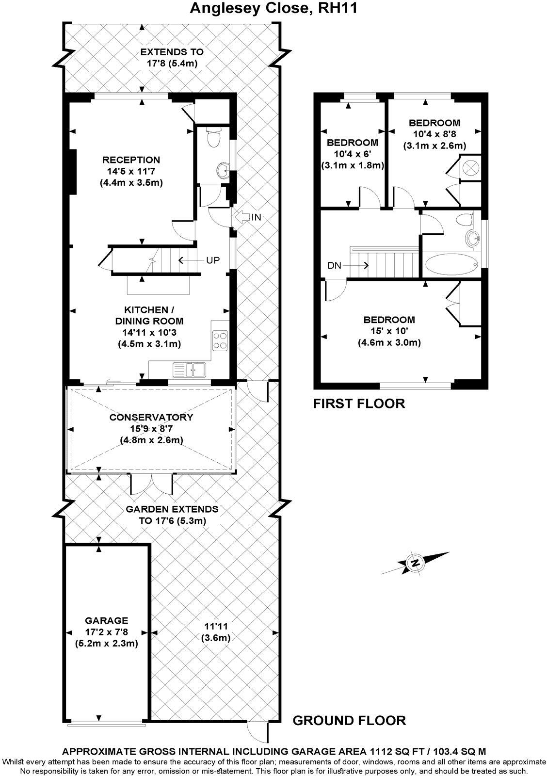
*GUIDE PRICE £375,000 - £400,000* A fantastic opportunity to purchase this beautiful three bedroom semi detached family home with a garage to the rear. The spacious accommodation is well presented throughout and offers on the ground floor; welcoming entrance hall...

Property Oracle says ..

The property is a 3 bedroom, 2 bathroom semi-detached house located in Anglesey Close, Crawley, West Sussex.

It is listed at £375,000 and has a floor area of 1,267.99 sqft. The plot size is not specified.

The property appears to be in good condition, with a recently modernised kitchen and a conservatory. The interior decor is dated in some areas, but the property is generally well-maintained and clean. There is evidence of a garden, which appears to be of a reasonable size.

Crawley is a town with good transport links, including proximity to Gatwick Airport and several railway stations. There are also a number of schools nearby, including several rated \‘Good\’ by Ofsted. The location is therefore considered to be convenient and family-friendly.

Considering the average house price in the area is £429,541 and the average price per sqft is £352, the asking price of £375,000 seems reasonable, especially given the property’s good condition, the inclusion of a conservatory, and its location. The property is slightly below the average price for the area, suggesting it may represent good value for money. However, the lack of plot size information prevents a more definitive assessment of the price-to-size ratio.

Therefore, we give this property 7 / 10. *Disclaimer: This is our option and does constitute a recommendation or financial advice. Do your own research. *

Price
7
Condition
8
Location
7
Land
6
Bedrooms
3
Bathrooms
2
Sqft (est)
1,267.99

The heatmap indicates the level of crime in the area. The color of the heatmap indicates the crime severity and recency.

Metrics Year-on-Year

Average area value
356,564.00 £
Decreased by 5.86 %
from 378,741.00 £
Est sale value
779,813.85 £
Increased by 47.84 %
from 527,483.84 £
Average area rental value
1,600.00 £/mo
Increased by 42.22 %
from 1,125.00 £/mo
Est letting value
2,535.98 £/mo
Increased by 100.00 %
from 1,267.99 £/mo
Est rental Yield
5.38 %
Increased by 51.12 %
from 3.56 %
Crime Rate
1.00 %
Unchanged by 0.00 %
from 1.00 %

Agent Activity

  • Choices created the listing.

Nearby Schools

NameTypeOfstedDistance
Broadfield Primary AcademyAcademy Sponsor LedGood0.19 KM
Atelier21 Future SchoolOther Independent School0.47 KM
Hilltop Primary SchoolAcademy ConverterGood0.69 KM
Thomas Bennett Community CollegeAcademy ConverterRequires improvement0.86 KM
Seymour Primary SchoolAcademy ConverterGood0.89 KM

Images

Picture No. 14 Picture No. 12 Picture No. 07 Picture No. 09 Picture No. 01 Picture No. 04 Picture No. 03 Picture No. 08 Picture No. 16 Picture No. 10 Picture No. 05 Picture No. 02 Picture No. 06 Picture No. 11 Picture No. 17 Picture No. 13 Picture No. 20 Picture No. 21 Picture No. 22 Picture No. 26 Picture No. 23 Picture No. 25

Nearby Streets

NameAverage PriceAverage SqftDistance
Stonebridge Court £ 000.00 KM
Marlborough Close £ 000.00 KM
Broadfield Drive £ 000.00 KM
Lambeth Close £ 210,00000.00 KM
Finsbury Close £ 000.00 KM

Nearby Transport

NameNLCTLCDistance
Crawley5484CRW1.87 KM
Ifield5495IFI2.50 KM
Three Bridges5491TBD4.52 KM
Faygate5493FGT7.16 KM
Gatwick Airport5416GTW7.51 KM

Nearby Listings

AddressPriceTypeScoreDistance
Anglesey Close, CRAWLEY, West Sussex, RH11 £ 370,000BUYUnknown0.00 KM
Anglesey Close, CRAWLEY, West Sussex, RH11 £ 375,000BUY7 / 100.00 KM
Anglesey Close, Broadfield, Crawley, West Sussex, RH11 £ 375,000BUY7 / 100.06 KM
Hayling Court, Broadfield, Crawley, West Sussex £ 220,000BUY5 / 100.15 KM
Broadfield, Crawley £ 218,000BUYUnknown0.18 KM

Nearby Properties

AddressPriceDistance
9 Lundy Close £ 249,9500.06 KM
26 Lundy Close £ 320,0000.06 KM
1 Lundy Close £ 108,2500.06 KM
6 Lundy Close £ 210,0000.06 KM
11 Lundy Close £ 229,9500.06 KM